Szigetszentmiklós

22.9 millió Ft
974 468 Ft/m²
Alapterület
21m2
Telek
438 m²
Szobák
1

Prémium hitelajánlat

Önrész
info
4 580 000 Ft
+
Hitelösszeg
info
18 320 000 Ft
=
Havi törlesztő
info
142 286 Ft/hó

Eladó Üdülő (Üdülőházas nyaraló)

Alapterület
21 m²
Telekterület
438 m²
Erkély terület
5 m²
Tartozik hozzá kert
Van
Szobák száma
1
Fűtés
Elektromos kazán
Ingatlan állapota
Közepes állapotú
Építés éve
2000
Épület szintjei
2 szintes
Pince
Nincs
Lift
Nincs
Napelem
Nincs
Szigetelés
Nincs
Parkolóhely
Udvari beálló
Kilátás
Kertre néző
Légkondicionált
Nem
Tájolás
Észak-keleti
Panelprogramos
Nem

Leírás

Befektetők figyelmébe: DUNA-KÖZELI, BELTERÜLETI telek hétvégi házzal, LK2 övezetben, 30% BEÉPÍTHETŐSÉGGEL

Eladó egy 438 nm-es, belterületi TELEK a központhoz és a Duna-parthoz KÖZEL. A felszín dombos, fenyőfákkal beültetett, ami rendezett környezetet biztosít a jelenlegi és jövőbeli hasznosításhoz. Az ingatlan LK2 építési övezetbe tartozik, 30% BEÉPÍTHETŐSÉGGEL; (a helyi előírások betartásával).

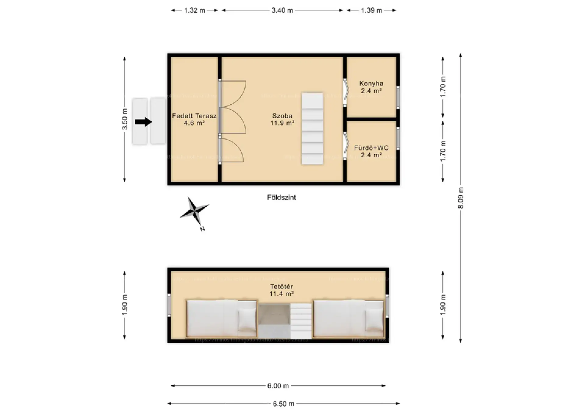
A telken található egy könnyűszerkezetes hétvégi ház: alapterület 21 nm, bruttó lakóterület 33 nm. Földszint: 12 nm-es szoba, konyha, fürdőszoba WC-vel. Tetőtér: két hálófülke beépített szekrényekkel és ágyakkal. KÖZMŰVEK: vezetékes víz, csatorna és villany BEVEZETVE; GÁZ AZ UTCÁBAN. Fűtés elektromosan megoldható, a meleg vizet VILLANYBOJLER biztosítja. A melléképület tárolásra vagy GARÁZSNAK használható.

Befektetési szempontból RUGALMAS HASZNOSÍTÁS: a meglévő épület hétvégi házként használható vagy ÉRTÉKNÖVELŐ FELÚJÍTÁSRA alkalmas; bontás és tereprendezés után az övezeti szabályok szerint ÁLLANDÓ LAKHATÁSRA alkalmas új ház építhető. A DUNA-KÖZELI, KÖZPONTHOZ KÖZELI elhelyezkedés és a KÖZMŰVESÍTETT telek együttesen JÓ FEJLESZTÉSI ALAPOT biztosítanak.

További információ és megtekintési időpont egyeztetés telefonon.

Térkép

Szigetszentmiklós

Bűnügyi térkép

Ruzsits Andrea Referens
Telefonszám +3630715
abcd