Gödöllő

150 millió Ft
964 630 Ft/m²
Alapterület
148m2
Telek
350 m²
Szobák
5

Prémium hitelajánlat

Önrész
info
30 000 000 Ft
+
Hitelösszeg
info
120 000 000 Ft
=
Havi törlesztő
info
968 943 Ft/hó

Eladó ház (ikerház)

Alapterület
148 m²
Telekterület
350 m²
Erkély terület
15 m²
Tartozik hozzá kert
Van
Szobák száma
5
Fűtés
Gázkazán
Energetikai tanúsítvány
A+
Ingatlan állapota
Új építésű
Építés éve
2025
Épület szintjei
Földszintes
Pince
Nincs
Tetőtér
Beépített
Lift
Nincs
Napelem
Nincs
Szigetelés
Van
Parkolóhely
Udvari beálló
Kilátás
Udvari
Légkondicionált
Nem
Tájolás
Észak-keleti
Panelprogramos
Nem

Leírás

Ez az ingatlan nemcsak tágas és kényelmes, hanem egy kiváló, tapasztalt kivitelező által készül, aki nagy gondot fordít a minőségre és a részletekre.

Műszaki információk röviden:
A ház erős, vastag klímatéglafalakkal épül, amelyek jól tartanak és szigetelnek, így télen meleg, nyáron hűvös marad. Az épületet modern hőszigeteléssel látják el, ami csökkenti a rezsit. A nyílászárók korszerű, többkamrás műanyag ablakok, amik jól zárnak és bent tartják a meleget. A fűtést gazdaságos, modern gázkazán biztosítja, ami megbízható és energiatakarékos működést nyújt.

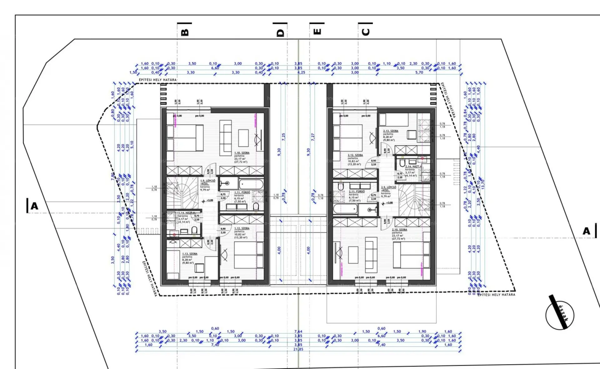
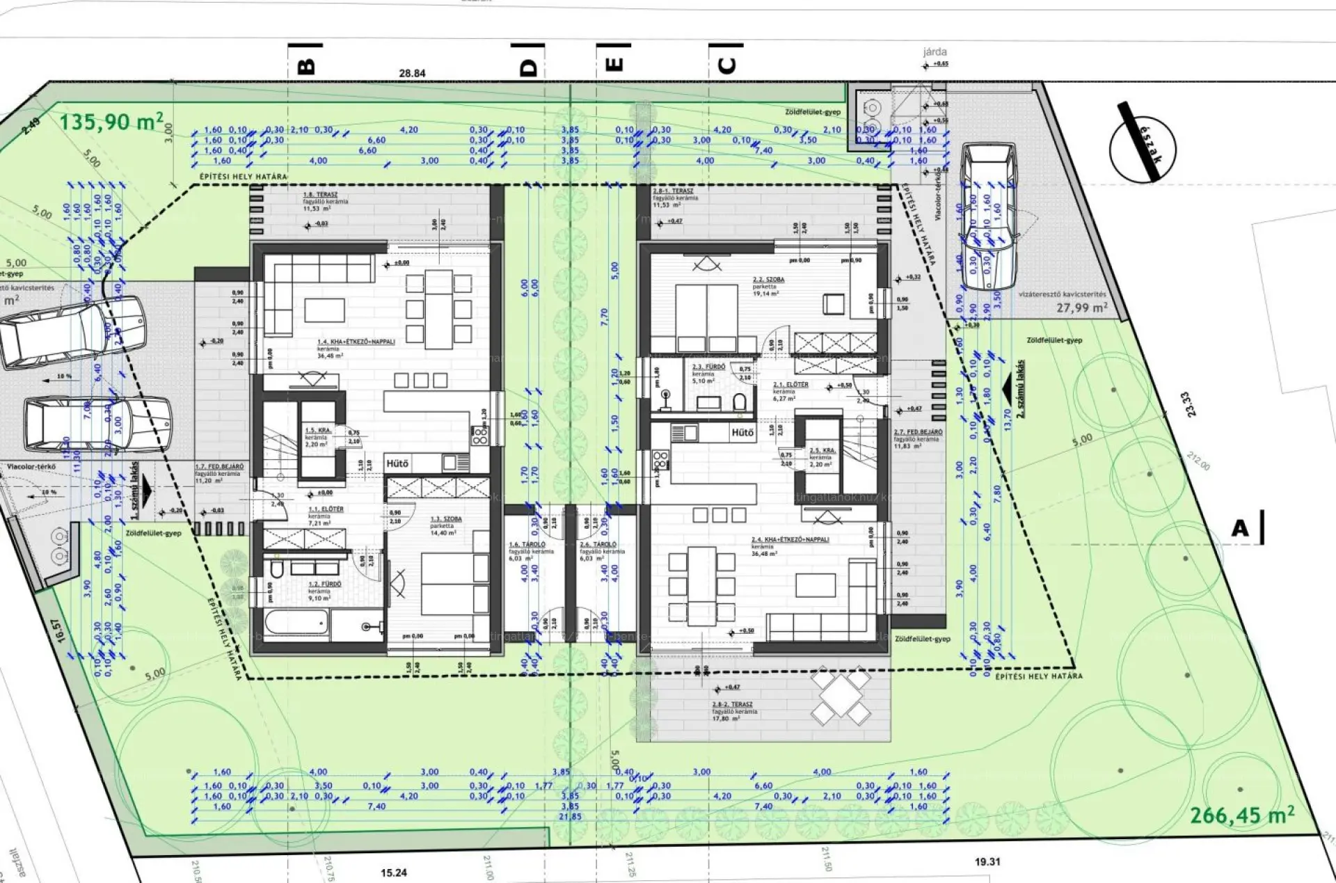
1. lakás (~148,2 m²)
Földszint (~84,14 m²):
• Nappali- étkező-konyha: ~50 m²
• Szoba: 19,14 m²
• Előszoba: ~7 m²
• Közlekedő: ~5 m²
• Lépcsőtér: ~3 m²
• Tároló: ~6 m²
Emelet (~64,06 m²):
• hálószoba: ~16 m²
• hálószoba: ~14 m²
• hálószoba: ~15 m²
• Fürdő 1: ~7 m²
• Fürdő 2: ~8 m²
• Emeleti közlekedő: ~4 m²
2. lakás (~148,2 m²)
Földszint (~84,14 m²):
• Nappali- étkező-konyha: ~50 m²
• Szoba: 19,14 m²
• Előszoba: ~7 m²
• Közlekedő: ~5 m²
• Lépcsőtér: ~3 m²
• Tároló: ~6 m²
Emelet (~64,06 m²):
• hálószoba: ~16 m²
• hálószoba: ~14 m²
• hálószoba: ~15 m²
• Fürdő 1: ~7 m²
• Fürdő 2: ~8 m²
• Emeleti közlekedő: ~4 m²

Beálló (autóparkoló):
• Mindkét lakáshoz saját, kényelmes kocsi beálló tartozik, ~25 m²/lakás.
Kert (zöldfelület):
• Lakásonként saját kert ~250–350 m² között, így bőven jut hely játszótérnek, kerti sütögetésnek vagy pihenésnek.

Gödöllő legpatinásabb környékén épül, ahol minden megtalálható, amire egy családnak szüksége lehet: posta, patika, óvoda, iskola, és az egyetem is mind a közelben van, mégis csendes, kertvárosi környezetben élhet az új tulajdonos.
Műszaki vállalást e-mailen keresztül továbbítom.

Igény esetén ügyvédi háttérrel, bank független pénzügyi tanácsadással, babaváró, CSOK és egyéb hitelek ügyintézésével segítem ügyfeleim ingatlanvásárlását.
Portfóliómban több hasonló, modern, minőségi új építésű ház és lakás is megtalálható – forduljon hozzám bizalommal, hogy segíthessek megtalálni az Ön számára tökéletes otthont!

Térkép

Gödöllő

Bűnügyi térkép

Kómár-Benke Nikoletta Referens
Telefonszám +3670396
abcd