https://minositettingatlanok.hu/hu/ingatlan/4693820
Edvi Zsuzsanna Referens
0036202777237
QR kód

Jánossomorja

42.6 millió Ft

1 065 000 Ft/m²
Alapterület
40m2
Szobák
2

Eladó lakás (tégla építésű)

Alapterület
40 m²
Tartozik hozzá kert
Van
Szobák száma
2
Fűtés
Hőszivattyú
Ingatlan állapota
Új építésű
Építés éve
2026
Épület szintjei
2 szintes
Emelet
Földszint
Pince
Nincs
Lift
Nincs
Napelem
Nincs
Szigetelés
Van
Parkolóhely
Udvari beálló
Kilátás
Kertre néző
Légkondicionált
Nem
Tájolás
Dél-keleti
Panelprogramos
Nem

Leírás

Most még választhat! 3%-os START OTTHON HITELRE megvásárolható! Szakaszos finanszírozás ILLETÉKMENTES vásárlás!
Nyilvános ismertető:
Jánossomorja 6100 lakosú, rohamosan fejlődő kisváros Győr-Moson-Sopron megye nyugati részén, közvetlenül az osztrák határ mellett, Mosonmagyaróvártól 15 km-re. Az osztrák határ közelsége miatt sokan járnak át napi ingázás mellett a határ túloldalára dolgozni, így nagy a kereslet az ilyen lakások iránt .
A település központjában kerül felépítésre egy modern, 2 szintes, energiatakarékos 13 lakást + 2 üzletet magában foglaló új építésű társasház. A társasházban hőszivattyús rendszer (3 db) lesz kiépítve, a lakásokban padlófűtéssel
A földszinti lakások terasszal és saját kertkapcsolattal, az emeleti lakások erkéllyel rendelkeznek.
Az épület egy része alatt pince lesz, mely a gépészetet tartalmazza, valamint tároló lesz.
Az ingatlan beruházója egy több, mint 20 éve sikeres, megbízható kivitelező.

A lakások ára emelt szintű fűtéskész állapotra vonatkozik, de kivitelező vállalja a kulcsrakész befejezést is.

VÁRHATÓ ÁTADÁS 2026.12.31.

Minden lakáshoz és üzlethez tartozik 1 db kültéri GÉPKOCSIBEÁLLÓ, melyet kötelező megvásárolni. Ára 2 millió Ft/ db.

Az építkezés most kezdődik, így a 3%-os Start Otthon hitel teljes egészében felhasználható.
A lakások telekhányad + vállalkozó szerződéssel kerülnek értékesítésre. A vásárlás így még minden vásárlónak ILLETÉKMENTES!

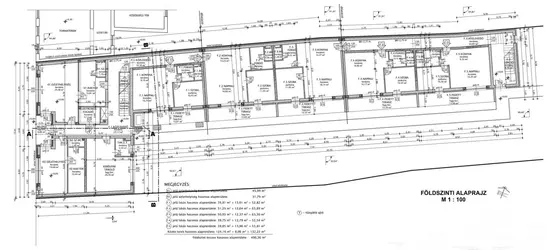
HIRDETETT földszinti, kertkapcsolatos F1 lakás helyiségei:
nappali 16,73 m2, konyha 8,19 m2, szoba 10,43 m2, fürdő 3,05 m2, WC 1,41 m2,
fedett terasz 13,01 m2. saját kertkapcsolat 27 m2

Műszaki tartalom:
- kútalap
- külső főfalak Wienerberger PR 30 N+F falazó blokkból készülnek 30cm-es vastagsággal, vb. megerősítő pillérrel
- A belső lakásokat,- közösségi teret elválasztó főfalak minden
szinten Wienerberger PR 30 AKU-Z hanggátló falazó blokkból készülnek 30 cm-es vastagsággal vb. megerősítő pillérrel
- A tető a 40 fokos tetőszerkezetenTERRAN Synus betoncserép fedés antracit színben, a 8 fokos tetőszerkezeten korcolt fémlemez fedés készül antracit színben A tetőfelépítmények oldala és teteje
szintén korcolt fémlemez fedést kap antracit színben.
- A homlokzati nyílászárok
3 rtg. üvegezésű , fehér színű műanyag nyílászáró szerkezetek
- A homlokzati főfalak15 cm vtg. AUSTROTHERM EPS hőszigetelést kapnak hálós gletteléssel kőporos homlokzat vakolattal bézs és halvány barna színben
- Tető felületi ablakok VELUX szerkezetek
- Bádogos munka LINDAB fémlemezzel készül antracit színben
- válaszfalak POROTHERM téglából 10 cm –es vastagsággal
- Fűtés, meleg víz hőszivattyús rendszerrel, a lakásokban padlófűtéssel

A vételáron felül lakásonként 300.000 Ft összeget (illetékek, földhivatali bejegyzések, postaláda, energetikai tanúsítvány stb.) Ez az összeg fedezi a használatbavételi engedély lebonyolításának költségét is. Az engedély igénylését, a szakhatóságokkal való kapcsolattartást a szerkezetkész átadás után a kivitelező végzi.

Amennyiben hitelre van szüksége ingyenes, bankfüggetlen tanácsadással és teljes körű ügyintézéssel állunk rendelkezésére. Minden családtámogatási kedvezmény igénybe vehető!

Nézze meg az összes választható lehetőséget nálam! Várom hívását! 20/2777237