https://minositettingatlanok.hu/hu/ingatlan/4604463
Molnár Tamás Referens
36306189880
QR kód

Kisunyom

13.5 millió Ft

168 750 Ft/m²
Alapterület
80m2
Telek
1336 m²
Szobák
2

Eladó ház (családi ház)

Alapterület
80 m²
Telekterület
1336 m²
Tartozik hozzá kert
Van
Szobák száma
2
Fűtés
Kandalló
Energetikai tanúsítvány
J
Ingatlan állapota
Felújítandó
Építés éve
1960
Épület szintjei
Földszintes
Pince
Nincs
Tetőtér
Beépíthető
Lift
Nincs
Napelem
Nincs
Szigetelés
Nincs
Parkolóhely
Utca, közterület
Kilátás
Utcai
Légkondicionált
Nem
Tájolás
Észak-keleti
Panelprogramos
Nem

Leírás

MENNNNYYIII? Családi ház 13,5M Ft-ért?
FIX 3%-os hitel Magyarország Kormányának támogatásával.
1336m2 telken álló felújítandó családi házat kínál irodánk megvásárlásra Szombathelytől pár percre!
Kisunyom néhány kilométerre található Szombathelytől, a 84-es út mellett. Jó elhelyezkedésének köszönhetően a településen keresettek az ingatlanok.
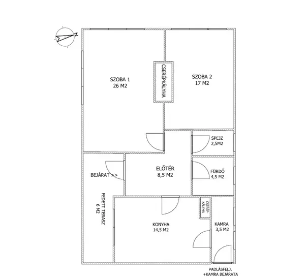
Méretek, helyiségek: 2 nagy méretű utcai nézetű, világos (ÉNY) szoba; konyha, fürdőszoba, előtér;
Mért nettó alapterület: 77m2 + 6m2 terasz
A ház bővíthető.
Telek: 1336 m2; körbekerített (kivéve elől); A kertbe gyümölcsfákat telepítettek: dió, alma, szilva, füge, cseresznye, kajszi, körte;

Műszaki adatok:
Közművek: villany (2x16A – a villamoshálózat teljes cseréje szükséges), víz, csatorna van; gáz a telekhatáron
Nyílászárók – jelenleg fa, de korábbi tűzeset miatt több helyen kormos a felületük, cserére szorulnak
A főfalak 40cm-es téglából épültek, a fürdő és kamra közt 12cm-es a válaszfal.
Fűtés: jelenleg 2 db cserépkályha; melegvíz: bojler
Tető: pala, tetőjavítás időközben történt; kémény jó állapotú
Aljzatmegerősítés 2 helyen megtörtént körülbelül 1 éve
Ásott kút (14m)

A ház teljeskörű felújításra szorul és hogy ne áruljunk zsákbamacskát készült róla statikai szakvélemény és érintésvédelmi felülvizsgálat is. A hivatalos statikai állapotfelmérést és javaslatokat rendelkezésre bocsájtja a tulajdonos.
Az ingatlan árazása fentiek alapján történt, figyelembevéve a várható felújítási költségeket.
Irányára: 13,5 M Ft
Ha igazán jó áron vásárolna családi házat és nem fél a kihívásoktól, nézze meg ezt az ingatlant.
Felújítás után nagymértékű értéknövekedés várható és remek otthona lehet egy családnak.

Kisunyomban elérhető a falusi CSOK támogatás.

További információ és időpontegyeztetés:
Molnár Tamásné Dóra
+36 30 5334833