https://minositettingatlanok.hu/hu/ingatlan/4360469
Gabriella Székely Referens
36309400839
QR kód

Budapest, XI. kerület

149 millió Ft

1 475 248 Ft/m²
Alapterület
101m2
Szobák
4

Eladó lakás (tégla építésű)

Alapterület
101 m²
Tartozik hozzá kert
Nincs
Szobák száma
4
Fűtés
Hőszivattyú
Energetikai tanúsítvány
A
Ingatlan állapota
Új építésű
Építés éve
2024
Épület szintjei
2 szintes
Emelet
1. emelet
Pince
Nincs
Lift
Nincs
Napelem
Nincs
Szigetelés
Van
Parkolóhely
Utca, közterület
Kilátás
Kertre néző
Légkondicionált
Igen
Tájolás
Észak-keleti
Panelprogramos
Nem

Leírás

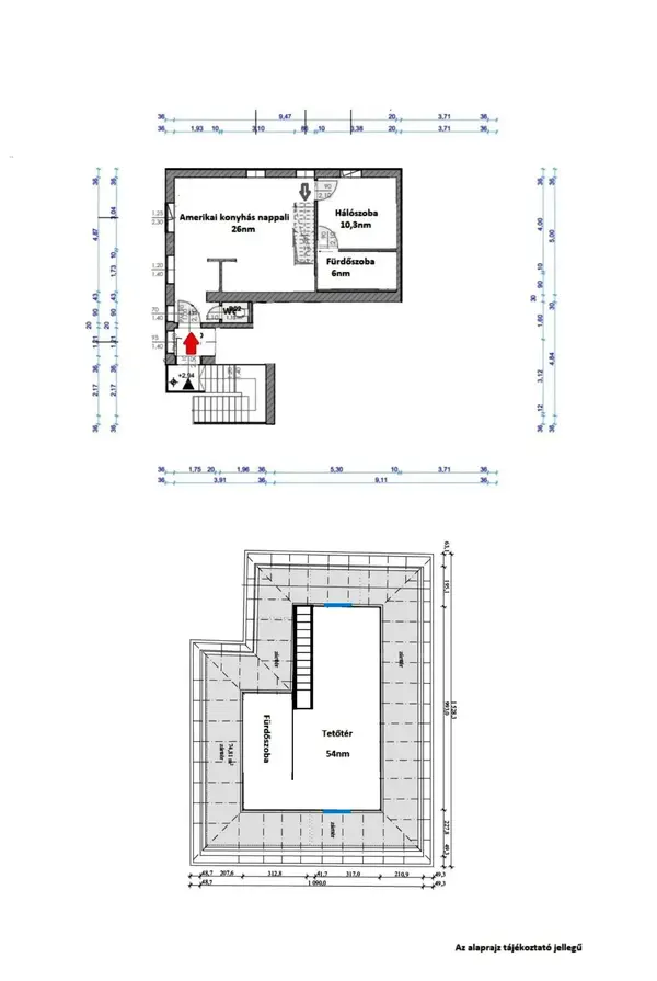
Frissen átadott, magas minőségben megépített 4 lakásos társasházban eladó, első emeleti, 101 nm-es, belső kétszintes, amerikaikonyhás nappali+ 3 hálószoba, két fürdőszobával, a XI.kerületben, két megállónyira az Allé bevásárlóközponttól.
A lakás jellemzői:
▫️ Amerikai konyhás nappali + 3 külön bejáratú hálószoba
▫️ Különálló, zuhanyozós fürdőszoba és WC
▫️ Kádas fürdőszoba és két hálószoba a tetőtérben egy tető alatti hatalmas tárolóval.
Hívjon bátran!+ 36 30 940-0839

Tulajdoni lap adatok

2025.03.06
Belterület 4568/134/A/4 helyrajzi szám
Társasház - Az alapító okirat szerint hozzátartozó mellékhelyiségek.

Alapadatok

Cím
1113 BUDAPEST XI.KER. Harcos utca 9. 2. emelet. ajtó:4.
Típus
lakás
Alapterület
47 m²
Szobák száma
2

Tulajdonosok

Tulajdoni hányad
1/1
Jogállás
tulajdonos