https://minositettingatlanok.hu/hu/ingatlan/4342174
Weston Gyöngyi Referens
QR kód

Budapest, II. kerület

421.6 millió Ft

3 055 072 Ft/m²
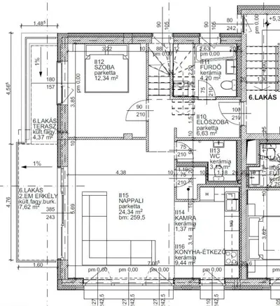
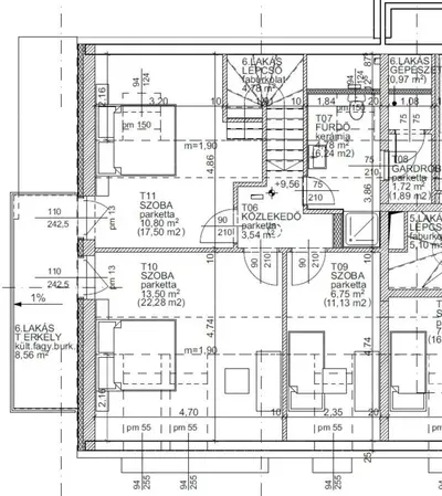
Alapterület
138m2
Szobák
5

Eladó lakás (tégla építésű)

Alapterület
138 m²
Tartozik hozzá kert
Nincs
Szobák száma
5
Fűtés
Hőszivattyú
Energetikai tanúsítvány
A+
Ingatlan állapota
Új építésű
Építés éve
2025
Épület szintjei
2 szintes
Emelet
2. emelet
Pince
Nincs
Lift
Van
Napelem
Nincs
Szigetelés
Van
Parkolóhely
Teremgarázs hely
Kilátás
Panorámás
Légkondicionált
Igen
Tájolás
Dél-keleti
Panelprogramos
Nem

Leírás

Újépítésű, 5 szobás luxuslakás Rózsadombon, azonnal költözhető!

Pazar, 6 lakásos társasházban kínáljuk ezt a 138 m²-es, nappali + 4 hálós otthont, közel 20 m²-es erkéllyel, világos terekkel és rugalmas alaprajzzal – akár egy háló a nappalival is összenyitható.

A ház minden részlete a minőségre épül:
– AA++ energiaosztály, hőszivattyús mennyezethűtés és padlófűtés, helyiségenként szabályozható rendszerrel
– Mitsubishi márkájú szellőztető, prémium Aliplast alumínium ajtók és ablakok, motoros zsaluzia
– LOXON okosotthon: hőmérséklet, árnyékolás, melegvíz, biztonság távolról is vezérelhető
– Több ponton erősített biztonsági ajtó, kamera- és riasztórendszer.

A telek mérete 1078 m², így a házhoz igényesen kialakított, közös kert tartozik, automatikus öntözőrendszert és zöldfelületeket találunk itt. A felső lakások szép kilátással rendelkeznek, a hátsó emeleti lakások csendesebb, zöld nézetet élveznek.

Parkolási lehetőség:
A lakáshoz garázshely tartozik (kötelezően megvásárolandó), meleg garázsrámpával és lifttel, amely közvetlenül a lakásokhoz visz.

Helyzet:
– Közelsége miatt Széll Kálmán tér nagyon könnyen megközelíthető
– Néhány jó iskola a közelben: Budapesti Német Iskola, több magyar általános és középiskola
– Természetközeli hely: Millenáris, Városmajor
– Kulturális központok, galériák, színházak sétatávolságra.

Az átadás várható időpontja: 2025 I. negyedév.

Ha keresesz egy kortársan megtervezett, megbízható és valóban minőségi otthont Budapest legjobb részeiben, ezt értékelni kell!