Budapest, II. kerület

149.9 millió Ft
1 281 197 Ft/m²
Alapterület
117m2
Szobák
3

Prémium hitelajánlat

Önrész
info
29 980 000 Ft
+
Hitelösszeg
info
119 920 000 Ft
=
Havi törlesztő
info
931 385 Ft/hó

Eladó lakás (tégla építésű)

Alapterület
117 m²
Tartozik hozzá kert
Nincs
Szobák száma
3
Fűtés
Gázkonvektor
Ingatlan állapota
Felújítandó
Építés éve
1900
Épület szintjei
5 szintes
Emelet
3. emelet
Pince
Nincs
Lift
Van
Napelem
Nincs
Szigetelés
Nincs
Parkolóhely
Utca, közterület
Kilátás
Utcai
Légkondicionált
Nem
Tájolás
Nyugati
Panelprogramos
Igen

Leírás

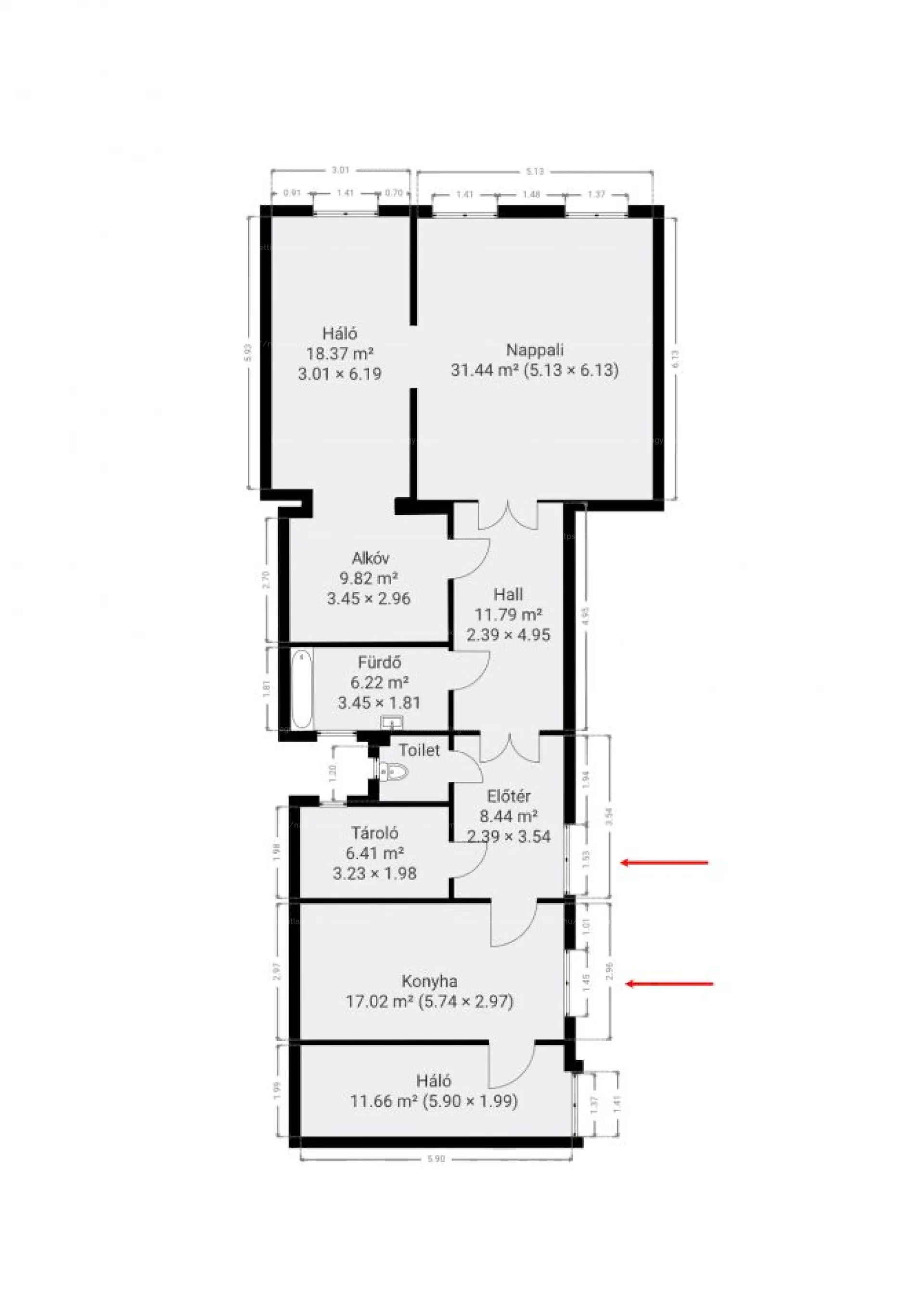
A Batthyány tér Fő utcában van egy 117 nm-es, háromszobás, nyugati tájolású, két bejáratos, felújításra váró polgári lakást. A ház 1900-ban épült, alaposan és gondosan felújított, 50 lakásos, liftes épület – rendezett, karbantartott környék, stabil műszaki alapot nyújtva.

A 3. emeleten található ingatlan jól átgondolt és praktikus elosztást nyújt. A fő ajtón belépve jobbra, a hallon és a közlekedőn átjutva érkezünk a nappaliba, ahonnan nyílik egy hálószoba alkóvval; ezek a helyiségek egybenyithatóak, ami lenyűgöző, nagypolgári tereket eredményez. A közlekedőből közelíthető meg a fürdőszoba káddal, egy tároló, valamint egy külön WC. A bejárattól balra kapott helyet a konyha és egy további háló; a második bejárati ajtó a konyhából nyílik, amely külön használati lehetőségeket is támogat.

Műszaki és esztétikai adottságok: belmagasság 3,8 m, gázkonvektor fűtés, fa parketta a szobákban, kerámia lapok és linóleum a vízellátásra használt helyiségekben. A konyhabútorok és a konyhagépek a vételár részét képezik – azonnal használható alapfelszereltség a felújítás megtervezéséhez.

További előny: saját pince tároló. Közös díj: 43 000 Ft/hó, külön vízórával. Az alaprajz tájékoztató jellegű. A lakás karakteres polgári adottságai és rugalmas elrendezése miatt számos módon hasznosítható, Mindenki számára jól tervezhető felújítási alapot kínál, a helyszín és a ház minősége pedig értékálló választássá teszi.

Térkép

Budapest, II. kerület

Bűnügyi térkép

Nagy Ágnes Referens
Telefonszám +3630949
abcd