https://minositettingatlanok.hu/hu/ingatlan/3999533
Ingatlancorner Kft Referens
36703911136
QR kód

Dunaharaszti

164.7 millió Ft

1 296 850 Ft/m²
Alapterület
122m2
Telek
405 m²
Szobák
5

Eladó ház (ikerház)

Alapterület
122 m²
Telekterület
405 m²
Erkély terület
10 m²
Tartozik hozzá kert
Van
Szobák száma
5
Fűtés
Hőszivattyú
Ingatlan állapota
Új építésű
Építés éve
2026
Épület szintjei
2 szintes
Pince
Nincs
Tetőtér
Beépített
Lift
Nincs
Napelem
Nincs
Szigetelés
Van
Parkolóhely
Udvari beálló
Kilátás
Kertre néző
Légkondicionált
Igen
Tájolás
Dél-nyugati
Panelprogramos
Nem

Leírás

Ritka lehetőség a Bezerédi lakópark egyik legszebb, átmenő forgalomtól mentes utcájában!
Eladó egy prémium kivitelezésű, saját kerttel és kocsi beállókkal rendelkező ikerház, a projekt első ütemében, megbízható, több évtizedes tapasztalattal rendelkező kivitelezőtől.
1. lakás akcióban e hónapban!

Az épület magas műszaki tartalommal készül, külön öntött födémmel és dupla hanggátló fallal a két lakás között, hogy minden otthonban valóban a különálló ház élménye valósuljon meg.
Várható átadás: 2026. június–július.

A környék infrastruktúrája kiváló: pár perc sétára található óvoda, bölcsőde, játszótér, buszmegálló, vasútállomás és kisbolt. A lakópark csendes, családbarát, rendezett környezet.

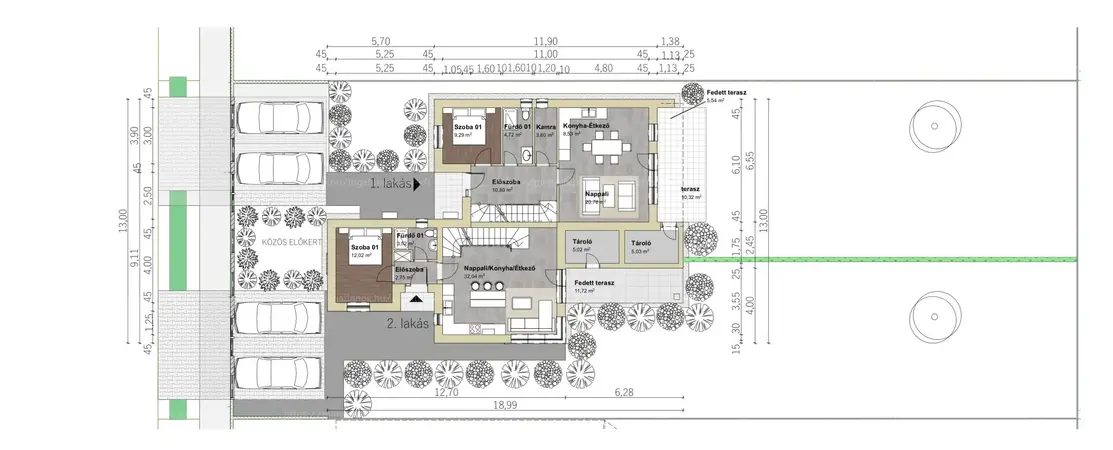
Lakás 1. – 122,13 m² saját kert ~ 400 m²

4 hálószoba

2 fürdőszoba

Gardrób
Ár: 164 700 000 Ft

Lakás 2. – 107,97 m²