https://minositettingatlanok.hu/hu/ingatlan/3935766
Szimeth Norbert Referens
36703833318
QR kód

Budapest, XIX. kerület

129.9 millió Ft

1 584 146 Ft/m²
Alapterület
82m2
Telek
575 m²
Szobák
3

Eladó ház (családi ház)

Alapterület
82 m²
Telekterület
575 m²
Tartozik hozzá kert
Van
Szobák száma
3
Fűtés
Gázkazán
Energetikai tanúsítvány
D
Ingatlan állapota
Felújítandó
Építés éve
1960
Épület szintjei
Földszintes
Pince
Nincs
Tetőtér
Beépíthető
Lift
Nincs
Napelem
Van
Szigetelés
Nincs
Parkolóhely
Udvari beálló
Kilátás
Utcai
Légkondicionált
Igen
Tájolás
Déli
Panelprogramos
Nem

Leírás

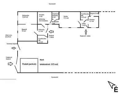
Kispest Óváros kerületrészében, a Jókai utcában kínálunk megvételre egy földszintes, téglafalazatú családi házat, amely élhető, kisvárosi környezetben, forgalommentes mellékutcában helyezkedik el. A környék hangulata barátságos, kertvárosias: rendezett házak, zöld kertek és nyugodt utcák jellemzik, miközben a főváros közelsége minden kényelmet biztosít.
Telek és kert
• Telek mérete: 575 m², 15 m széles utcafronttal
• Beépíthetőség: 30%
• Gépjárművel bejárható a telek végéig
• Fedett gépkocsi-beálló: belső szélessége 330 cm, belső magassága 250 cm
• Különálló tároló: 8 m², elektromos közművel, 250 cm belmagassággal
• Kerti kút: ásott, betongyűrűs, bőséges vízhozammal, ideális öntözéshez tavasszal és nyáron
Ház és lakrészek
Az ingatlan a földhivatali nyilvántartás szerint kétlakásos, külön bejárattal. Jelenleg a lakrészek össze vannak nyitva, de igény szerint visszaállíthatók. A terhelhető, szigetelt födém lehetőséget ad tetőtér-beépítésre.
• Nagyobb lakrész:
◦ 50,5 m², kétszobás
◦ Belmagasság: 315 cm
◦ Szobák az utcafront (nyugati oldal) felé néznek
◦ Szobák egymásba nyílók, de külön bejárat kialakítható
◦ Légkondicionáló: hűtő-fűtő típusú
• Kisebb lakrész:
◦ 31,5 m², egyszobás
◦ Belmagasság: 245 cm
◦ 90-es években épült, betonfödémes
Fűtés és energiaellátás
• Fűtés és melegvíz: napkollektoros rendszer + kondenzációs gázkazán
• Kiegészítő fűtés: fatüzelésű cserépkályha a kétszobás lakrészben
• Gazdaságos üzemeltetés: gázfogyasztás havi átlagban 14.000 Ft alatt tartható
• Elektromos betáplálás: 3×16A nappali, 1×25A vezérelt (éjszakai) áram
• Internet: optikai kábel (Telekom)
Közlekedés és környezet
A ház elhelyezkedése fővárosi viszonylatban kiemelkedően jó közlekedést biztosít:
• Villamos: 42-es
• Busz: 68-as, 268-as
• Metró: M3 (Határ út, KÖKI) 10 percen belül elérhető
• Parkolás: Kispesten közterületen ingyenes
A környék csendes, családbarát, ugyanakkor minden fontos szolgáltatás - bevásárlási lehetőségek, iskola, óvoda, orvosi rendelő - rövid sétával vagy néhány perces utazással elérhető. A kertvárosi nyugalom és a fővárosi infrastruktúra ritka kombinációját kínálja ez az ingatlan.
Ez a ház ideális választás lehet családoknak, akik szeretnének nyugodt környezetben élni, de nem akarnak lemondani a főváros közelségéről és a kiváló közlekedési kapcsolatról. A kétlakásos kialakítás, a tetőtér-beépítés lehetősége és a gazdaságos fűtési rendszer hosszú távon is értékálló befektetést jelent.

A képek között látványtervek is szerepelnek.