Üllő

177 millió Ft
1 011 429 Ft/m²
Alapterület
164m2
Telek
559 m²
Szobák
4

Prémium hitelajánlat

Önrész
info
35 400 000 Ft
+
Hitelösszeg
info
141 600 000 Ft
=
Havi törlesztő
info
1 059 904 Ft/hó

Eladó ház (családi ház)

Alapterület
164 m²
Telekterület
559 m²
Erkély terület
22 m²
Tartozik hozzá kert
Van
Szobák száma
4
Fűtés
Gázkazán
Energetikai tanúsítvány
B
Ingatlan állapota
Új építésű
Építés éve
2025
Épület szintjei
2 szintes
Pince
Nincs
Tetőtér
Nem beépíthető
Lift
Nincs
Napelem
Nincs
Szigetelés
Van
Parkolóhely
Önálló garázs
Kilátás
Kertre néző
Légkondicionált
Igen
Tájolás
Dél-nyugati
Panelprogramos
Nem

Leírás

🟢Eladó Üllő csendes kertvárosi részén egy új építésű kétszintes nettó:163,54m2-es 4szobás impozáns családi ház, amely 558m2-es teleken helyezkedik el.🟢

**INGATLAN HELYSZÍNE, LOKÁCIÓ**

Az új építésű családi ház, ideális elhelyezkedésének köszönhetően könnyű hozzáférést biztosít Budapest és környéke felé.
Békés, csendes környezet, amely távol tart a város zajától, miközben minden fontos szolgáltatás közel van.
Közlekedés szempontjából is kiváló döntés, pár perc alatt elérhető az autópálya.
Urbanizációs előnyei közé tartoznak az iskolák, óvodák, bevásárlási lehetőségek és egészségügyi létesítmények közelsége.


**ÉPÜLET JELLEMZŐI KÍVÜLRŐL**

• Falazat: 30 cm-es Porotherm Klíma tégla, 15 cm-es Ytong válaszfalak
• Hőszigetelés: 10–20 cm-es grafitos homlokzati szigetelés, 10 cm zárt és 20 cm nyitott cellás poliuretán hab az aljzatban, szarufák között és a zárófödémen
• Nyílászárók: 82mm-es profilvastagság, 3 rétegű üveg, gázzal töltve, dió RAL színű műanyag ablakok, vele megegyező színű elektromos alumínium redőny + beépített szúnyogháló
• Beltéri ajtók: Síkban záródó, rejtett zsanéros, V gravíros , festett MDF, automata küszöbbel és olasz króm kilinccsel
• Tető: Terrán Coppo Ódon betoncserép, 50 év garanciával
• Külső megjelenés: kovácsoltvas korlátok, úszókapu, szilikonos Revco vékonyvakolat
A kertbe elhelyezésre került egy 6 m²-es hőszigetelt faház elektromos padlófűtéssel, ami kerti tárolóként funkcionálhat.


**AZ INGATLAN JELLEMZŐI BELÜLRŐL**

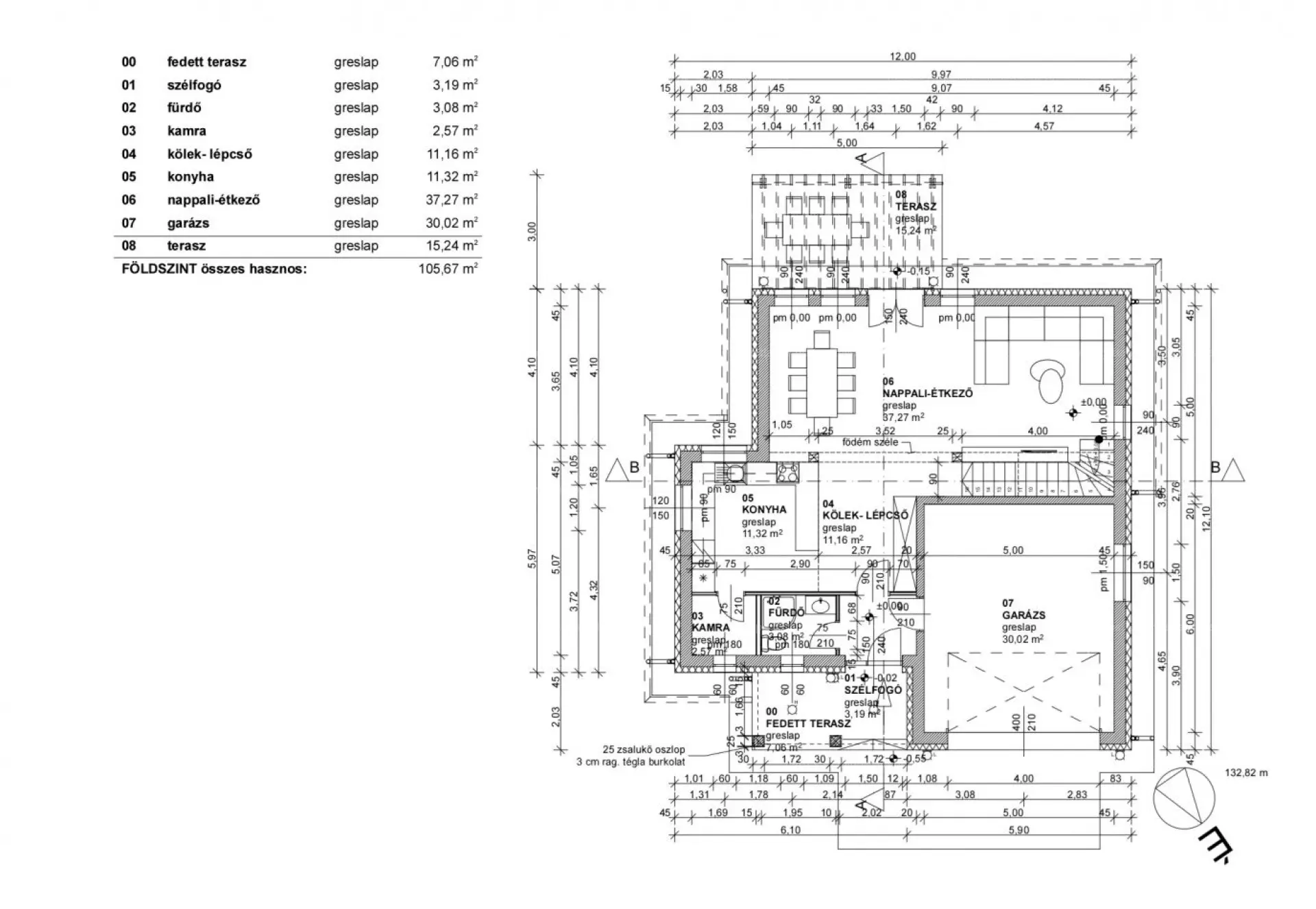
• Lakótér összesen: 194 m² (garázzsal együtt)
• Garázs: 30 m²-es két autó beállására alkalmas, ipari műgyanta padlóval, padlófűtéssel, elektromos autótöltésre kialakított gyorstöltő kiállással, Hörmann garázskapuval.
• Konyhabútor: AEG, Whirlpool, Electrolux beépített gépekkel, led világítással, tömör fa munkalappal, Blum vasalattal, Blanco gránitmosogató, Blanco csaptelep.
• Fűtés: Kondenzációs gázkazán, padlófűtéssel minden helyiségben, a fürdőszobákban törölközőszárító radiátor
• Hűtés: 2 db Gree Smart One 5 kW-os klíma
• Biztonság: 4K kamera rendszer, riasztórendszer, Hikvision kaputelefon
• Energiaellátás: 3×25 A 380V

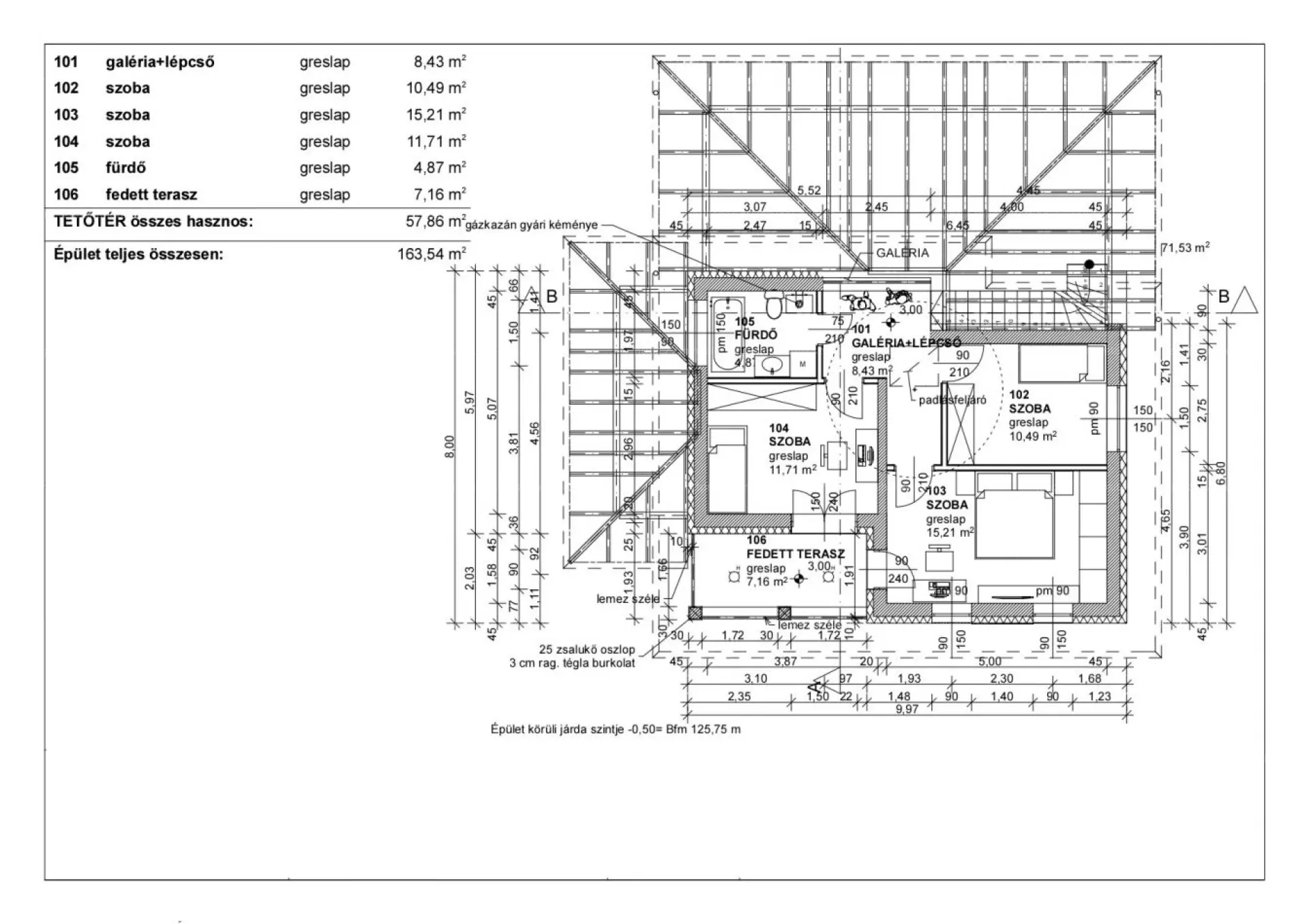
**BELSŐ ELRENDEZÉS:**

Alsó szint helyiségei:
• Előszoba
• Fürdőszoba WC-vel
• Kamra
• Amerikai konyhás nappali

Felső szint helyiségei:
• 3 szoba
• Fürdőszoba WC-vel

Amennyiben felkeltette a meghirdetett ingatlan az érdeklődését, keressen bizalommal.

Kihagyhatatlan ajánlatok: CSOK+,OTTHON START, kedvezményes kamatozású lakáshitelek.
Az ország szinte összes bankjának a hiteleit is kínáljuk, egyedi, általunk igénybe vehető kedvezményekkel, díjmentes ügyintézéssel.
☎️ +36(20) 955 2867

Térkép

Üllő

Bűnügyi térkép

Szuhai Andrea Referens
Telefonszám +3620326
abcd