https://minositettingatlanok.hu/hu/ingatlan/3744543
Hegedüs Renáta Referens
36203548916
QR kód

Kincsesbánya

50 millió Ft

704 225 Ft/m²
Alapterület
65m2
Telek
1029 m²
Szobák
1

Eladó ház (családi ház)

Alapterület
65 m²
Telekterület
1029 m²
Erkély terület
12 m²
Tartozik hozzá kert
Van
Szobák száma
1
Fűtés
Elektromos kazán
Energetikai tanúsítvány
D
Ingatlan állapota
Jó állapotú
Építés éve
2000
Épület szintjei
2 szintes
Pince
Nincs
Tetőtér
Nem beépíthető
Lift
Nincs
Napelem
Nincs
Szigetelés
Van
Parkolóhely
Udvari beálló
Kilátás
Kertre néző
Légkondicionált
Igen
Tájolás
Dél-nyugati
Panelprogramos
Nem

Leírás

Kincsesbányán családi ház eladó!

duplakomfort
parkosított udvar
lenyűgöző kilátás
nyugalom szigete
kétgeneráció lakhatása is lehetséges

+36203548916
50 000 000 Ft

Otthon Start hitel program igénybe vehető!

A tulajdonos kérésére komoly vevők jelentkezését várjuk, köszönjük)

Főbb jellemzők:

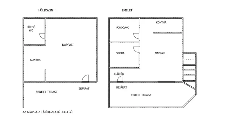
1.) telek mérete: 1029 nm. ( parkosított )
2.) ház mérete: 65 nm, kétszintes.
3.) elosztása:
- alsó szint: ( fedett terasz 11.5 nm ) – konyha – nappali – fürdő/wc.
- felső szint: ( fedett terasz 11,5 nm ) – előtér - nappali – konyha – 1 szoba – fürdő/wc.

4.) az otthon melegét cserépkályha, fűtőpanel és klíma biztosítja.
5.) melegvíz ellátásról villanybojler gondoskodik ( 80 l )
6.) több ponton záródó bejárati ajtók, műanyag 2 rétegű nyílászárók kerültek beépítésre.
7.) villanyhálózat 1*16 A
8.) laminált-parketta burkolat a szobában, a többi helyiség járólappal fedett.
9.) internet elérhetőség: one
10.) tájolása: D-NY.-i

Épület:

11.) az ingatlan 2000 évben épült.
12.) falazat ( tégla ) szigetelt ( 8 cm ).
13.) tető nagyon jó állapotú, szintén szigetelt. ( kőzetgyapot )

Udvar:

14.) elektromos kapuval felszerelt, zárt/ körbekerített parkosított udvar.
15.) kerítés újszerű.
16.) udvarban: grillező / bográcsozó / medence.
17.) gyerekek részére trambulin / játszóház elhelyezhető
18.) udvarban faház ( 10 nm ) kerti szemszámok részére.

Infrastruktúra:

19.) Kincsesbánya elhelyezkedése nagyon kedvező, hiszen a közeli Székesfehérvár és Mór városa gyorsan megközelíthető, és számos munkalehetőséget kínál.
20.) 15 perc sétával elérhető: boltok, gyógyszertár, iskola, óvoda, buszmegálló, önkormányzat, játszótér, művelődési ház, dohánybolt, húsbolt, pizzéria.

Lakóközösség csendes, kedves, összetartó.
Otthon Start hitel igénybe vehető!

Hívjon bizalommal!