https://minositettingatlanok.hu/hu/ingatlan/3592260
Peter Vago Referens
36706728020
QR kód

Budapest, II. kerület

519 millió Ft

1 171 558 Ft/m²
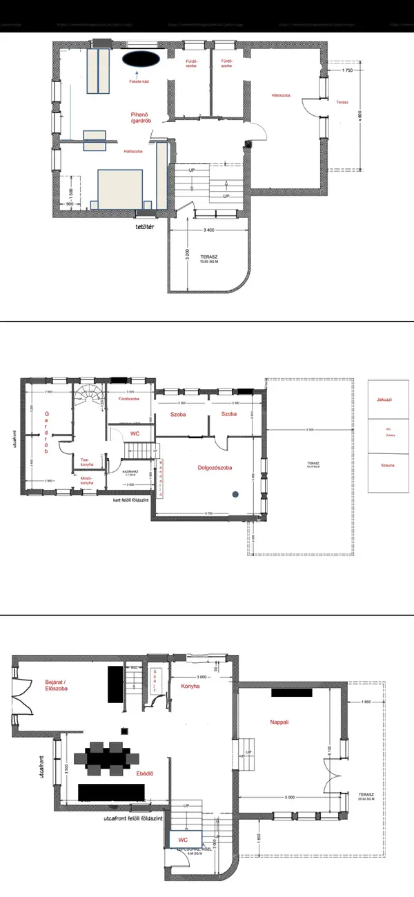
Alapterület
393m2
Telek
947 m²
Szobák
6

Eladó ház (családi ház)

Alapterület
393 m²
Telekterület
947 m²
Erkély terület
100 m²
Tartozik hozzá kert
Van
Szobák száma
6
Fűtés
Hőszivattyú
Ingatlan állapota
Felújított
Építés éve
2019
Épület szintjei
3 szintes
Pince
Nincs
Tetőtér
Beépített
Lift
Nincs
Napelem
Nincs
Szigetelés
Van
Parkolóhely
Udvari beálló
Kilátás
Panorámás
Légkondicionált
Igen
Tájolás
Dél-nyugati
Panelprogramos
Nem

Leírás

KIVÉTELES LUXUS INGATLAN ELADÓ ADYLIGETEN, A 2. KERÜLET ZÖLD SZÍVÉBEN! 🌳

Budapest 2. kerületének egyik LEGELŐKELŐBB részén, Adyligeten kínálunk eladásra egy 339 nm alapterületű, TELJES KÖRŰEN FELÚJÍTOTT LUXUS otthont, amely egy 950 nm-es TELKEN található. Ez az INGATLAN MINŐSÉGI ÉS MODERN kialakítással, valamint kifejezetten NAGYVONALÚ belső terekkel rendelkezik. A fűtés korszerű HŐSZIVATTYÚS rendszerrel és FAN-COIL megoldással biztosított, így az energiahatékonyság garantált.❄️☀️

Az otthon három TELJES PANORÁMÁS TERASSZAL, valamint egy oldalsó terasszal büszkélkedhet, ahonnan LENYŰGÖZŐ KILÁTÁS nyílik a környező DOMBOKRA és ZÖLDTERÜLETEKRE. A jelenlegi kialakítás szerint három NAGYMÉRETŰ HÁLÓSZOBA, valamint egy külön vendégrész áll rendelkezésre, de akár öt hálószoba is könnyedén kialakítható. A KÜLÖNÁLLÓ MOSÓKONYHA további KÉNYELMET biztosít az új lakók számára.🏡

A tágas NAPPALIÓRIÁS ABLAKAI által napfényes, elegáns enteriőrben PIROS KANAPÉ és magas minőségű bútorzat fokozza az ingatlan STÍLUSÁT. A fürdőszobában SZABADON ÁLLÓ KÁD és ESZTÉTIKUS BERENDEZÉS található, amely a mindennapi használatot igazi LUXUS élménnyé varázsolja.

Az INGATLAN jelenleg kerti gépkocsi beállóval rendelkezik, de akár GARÁZS is kényelmesen építhető. A KÖRNYÉK CSENDES, ZÖLD és BIZTONSÁGOS, ugyanakkor könnyen megközelíthető a város központja, valamint minden fontos SZOLGÁLTATÁS elérhető közelségben van.

Ez a LUXUS OTTHON ideális nagyobb családok részére, DE BÁRKI számára tökéletes választás, aki EXKLUZÍV, KÉNYELMES és ELEGÁNS lakóhelyet keres Budapest egyik LEGSZEBB RÉSZÉN.🏡