https://minositettingatlanok.hu/hu/ingatlan/3556196
Latyák Balázs Referens
36307202868
QR kód

Vác

105 millió Ft

860 656 Ft/m²
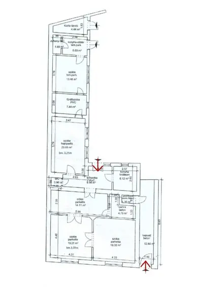
Alapterület
122m2
Telek
253 m²
Szobák
4

Eladó ház (családi ház)

Alapterület
122 m²
Telekterület
253 m²
Tartozik hozzá kert
Van
Szobák száma
4
Fűtés
Hűtő-fűtő klíma
Ingatlan állapota
Felújítandó
Építés éve
1930
Épület szintjei
Földszintes
Pince
Van
Tetőtér
Beépíthető
Lift
Nincs
Napelem
Nincs
Szigetelés
Nincs
Parkolóhely
Utca, közterület
Kilátás
Kertre néző
Légkondicionált
Igen
Tájolás
Keleti
Panelprogramos
Nem

Leírás

Sokoldalú, AZONNAL birtokba vehető családi ház.

1. INGATLAN HELYSZÍNE, LOKÁCIÓ
Eladó családi ház Vác jól megközelíthető, városi infrastruktúrával ellátott részén.
A lokáció családoknak, befektetőknek és vállalkozóknak egyaránt megfelelő.
Keletre néző orientáció és kertre néző kilátás biztosít harmónikus, derűs benapozást.
Közterületi parkolás a ház egy karnyújtásnyira elérhető.

2. ÉPÜLET JELLEMZŐI KÍVÜLRŐL
Egyszintes, hagyományos szerkezetű családi ház, amely saját 253 nm-es telken helyezkedik el saját belső kerttel.

3. AZ INGATLAN JELLEMZŐI BELÜLRŐL
122 nm-es, 4 szobás elrendezés, kényelmes egyszintes kialakítással.
Az ingatlan felújítandó, kiváló alap saját igény szerinti modernizálásra.
A fűtést cserépkályha és hűtő-fűtő klíma biztosítja.
Különböző generációk együttélésére, céges helyszínnek, üzletnek vagy vállalkozás működtetésére is kényelmesen átalakítható.
A saját belső kert használható pihenésre.
Azonnal birtokba vehető.

4. AZ INGATLANNAL KAPCSOLATOS KÖLTSÉGEK
Vételár: 105 000 000 Ft.
Fűtés típusa: hagyományos cserépkályha, hűtő-fűtő klíma.
Parkolás: utca, közterület.

5. A KÖRNYÉK JELLEMZŐI
Vác a Dunakanyar egyik történelmét őrző, szolgáltatásokban gazdag városa.
Közelben hozzáférhetők a mindennapi élethez szükséges üzletek, oktatási és egészségügyi szolgáltatások.
Budapest felé gyors kapcsolat működik az M2 irányából és vasúton egyaránt.
Kikapcsolódási lehetőségek, sétányok és zöldfelületek kínálnak felfrissülést bármilyen korosztálynak.
Vállalkozás indításához is megfelelő, ügyfélbarát, egyszerűen elérhető városi környezet.