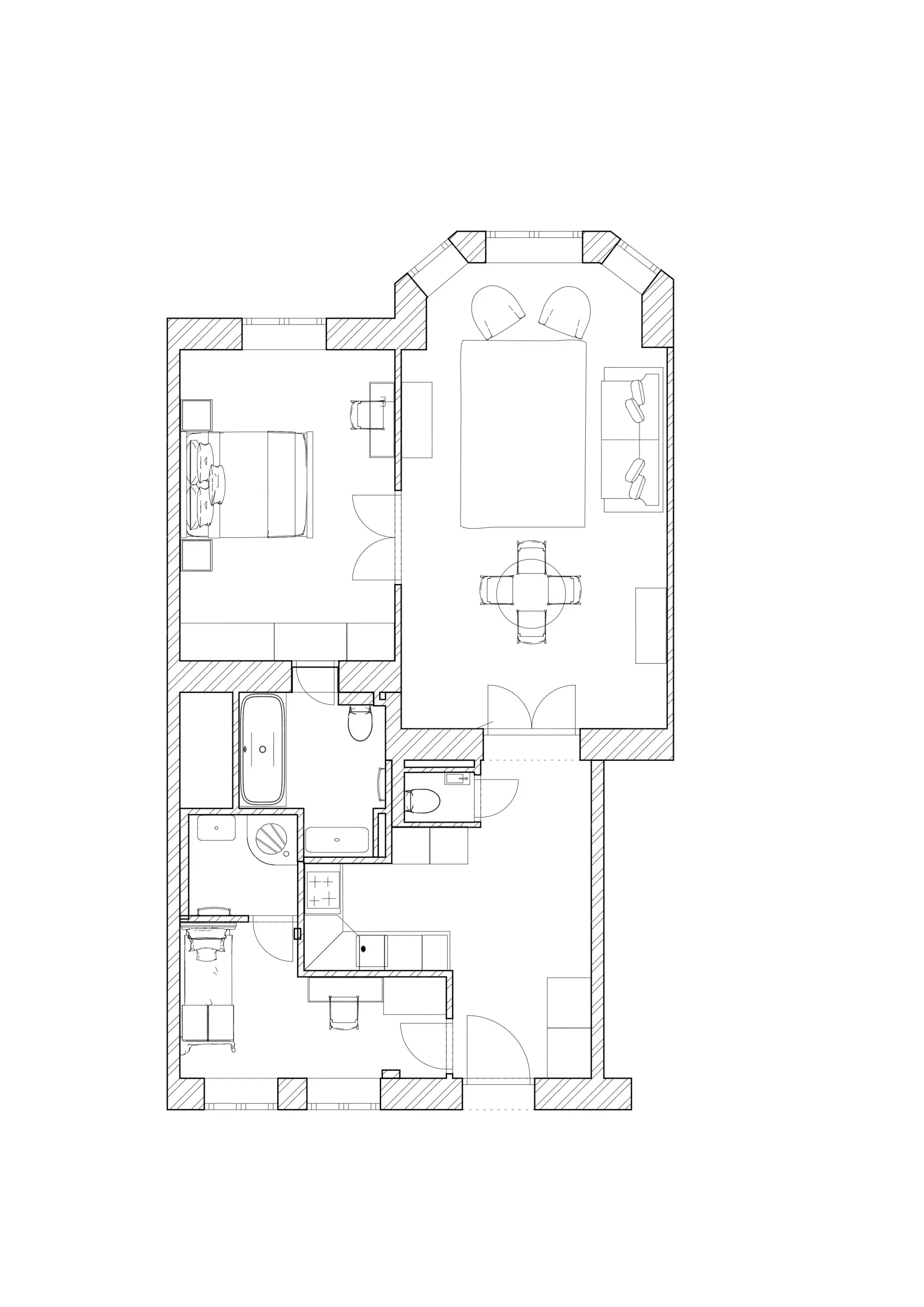
85
millió Ft
1 440 678 Ft/m²
Budapest, XIII. kerület
Alapterület
59m2
Szobák
3