Pilisszentiván

83.2 millió Ft
1 205 797 Ft/m²
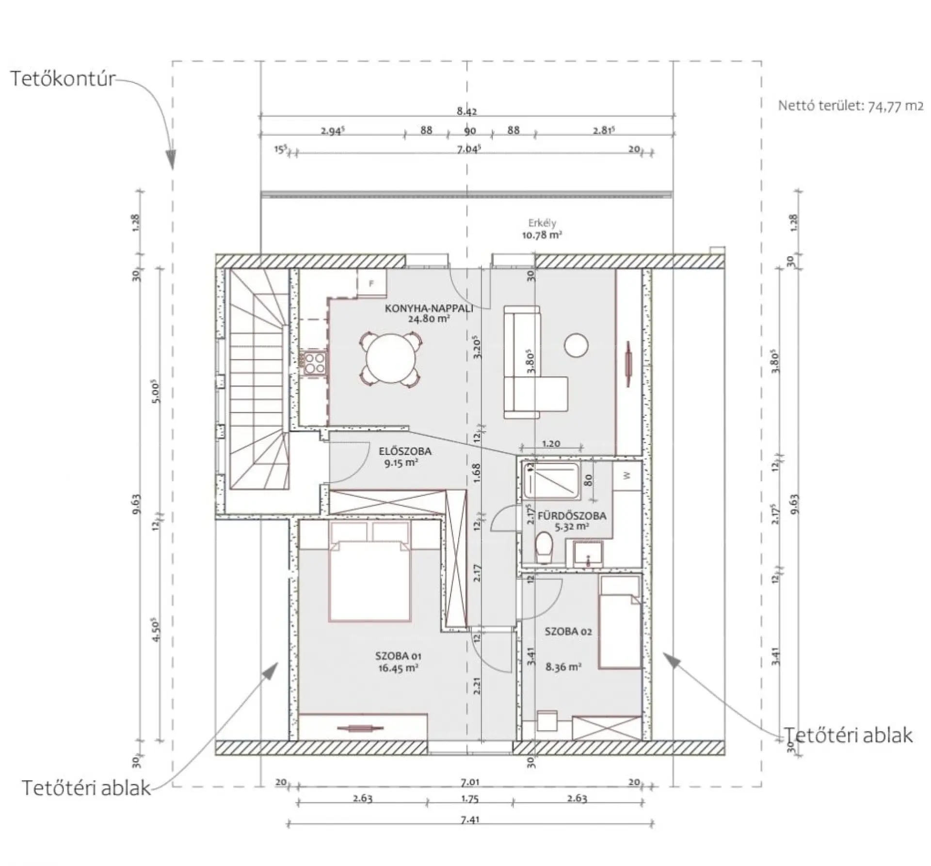
Alapterület
69m2
Szobák
3

Prémium hitelajánlat

Önrész
info
16 640 000 Ft
+
Hitelösszeg
info
66 560 000 Ft
=
Havi törlesztő
info
519 524 Ft/hó

Eladó lakás (tégla építésű)

Alapterület
69 m²
Tartozik hozzá kert
Nincs
Szobák száma
3
Ingatlan állapota
Új építésű
Építés éve
1970
Épület szintjei
2 szintes
Emelet
Földszint
Pince
Nincs
Lift
Nincs
Napelem
Nincs
Szigetelés
Van
Parkolóhely
Udvari beálló
Kilátás
Panorámás
Légkondicionált
Nem
Tájolás
Dél-nyugati
Panelprogramos
Igen

Leírás

ÚJJÁ ÉPÍTETT, 3 LAKÁSOS PANORÁMÁS TÁRSASHÁZI OTTHONOK ELADÓk – MAGAS MŰSZAKI TARTALOMMAL, 2025-ÖS KIVITELEZÉSSEL
Kivételes lehetőség igényes vevőknek: eladó egy szinte teljes egészében újjáépített, 3 lakásos társasház otthonai, ahol minden részlet a mai kor elvárásai szerint került kialakításra – modern gépészet, energiatakarékos megoldások, letisztult esztétika és örök panoráma a teraszokról.

ÉPÜLET JELLEMZŐI
Az eredeti épület földszintje 1970-es, emelete a 1990-es években épült, azonban 2025-ben az egész ház szerkezetig vissza lett bontva, majd modern műszaki színvonalon újraépítve.
A meglévő teherhordó szerkezetek hibátlan állapotúak.
Teljesen új aljzat rétegrend: 6 cm lépésálló hőszigetelés, padlófűtés, új aljzatbeton.
Teljesen új tetőszerkezet épült:
új tetőablakok
antracit kerámia cserép + részben antracit állókorcos fedés
új bádogozás
15 cm fújt purhab tetőszigetelés
Homlokzat: 10 cm hőszigetelés, modern megjelenéssel.

LAKÁSOK KIALAKÍTÁSA
A belső falak újra lettek osztva:
alsó szinteken Ytong válaszfalak,
tetőtérben gipszkarton válaszfalak.
Minden lakás teljesen önálló mérőórákkal rendelkezik: víz, gáz, villany külön-külön.
Fűtés: lakásonként külön kombi kazán, mindenhol körfűtésű padlófűtéssel.
Elektromos rendszer: lakásonként normál mérő + H-tarifás mérő a klímákhoz (energiahatékony működés).
Minden lakáshoz külön terasz tartozik, ahonnan páratlan örökpanoráma nyílik.

KÖZÖS TERÜLETEK
Tágas, száraz pince/tároló minden lakás számára.
Kisebb, praktikusan használható udvar.
3 parkolóhely: 1 az udvarban, 2 a ház előtt kialakítva.

MIÉRT KIVÉTELES EZ AZ INGATLAN?
A ház szinte teljes egészében újként működik – a gépészet, szigetelés, tetőszerkezet, aljzat, belső falak, elektromos hálózat mind korszerű 2025-ös kivitelezés.
Három különálló, önálló rezsijű lakás — kiváló befektetésnek, többgenerációs családnak vagy kiadásra.
Teraszról élvezhető örök panoráma, prémium környezet.
Korszerű épületgépészet, kiemelten alacsony fenntartási költségek.

Elérhető ingatlanjaink:
- 89.04nm - 102.400.000 Ft ( 33.6nm terasz)
- 83.48nm - 96.000.000 Ft   (15.3nm terasz)
- 69.28nm - 83.200.000 Ft.  (10.8nm terasz)

Térkép

Pilisszentiván

Bűnügyi térkép

Molnár Szabolcs Referens
Telefonszám +3630576
abcd