Budapest, XIX. kerület

69.9 millió Ft
1 043 284 Ft/m²
Alapterület
67m2
Szobák
3

Prémium hitelajánlat

Önrész
info
13 980 000 Ft
+
Hitelösszeg
info
55 920 000 Ft
=
Havi törlesztő
info
434 315 Ft/hó

Eladó lakás (panel)

Alapterület
67 m²
Tartozik hozzá kert
Nincs
Szobák száma
3
Fűtés
Távfűtés egyedi méréssel
Ingatlan állapota
Felújítandó
Építés éve
1983
Épület szintjei
4 szintes
Emelet
1. emelet
Pince
Nincs
Lift
Nincs
Napelem
Nincs
Szigetelés
Van
Parkolóhely
Önálló garázs
Kilátás
Kertre néző
Légkondicionált
Nem
Tájolás
Déli
Panelprogramos
Nem

Leírás

Eladásra kínálunk egy három szoba hallos lakást egy csendes, parkos környezetben található, szigetelt, négyemeletes társasházban - akár Otthon Start hitelre is. 06709311555

A lakás az első emeleten (fél emeleti szinten) található, rendezett, nyugodt lépcsőházban, ahol mindössze 8 lakás kapott helyet.

Főbb jellemzők:

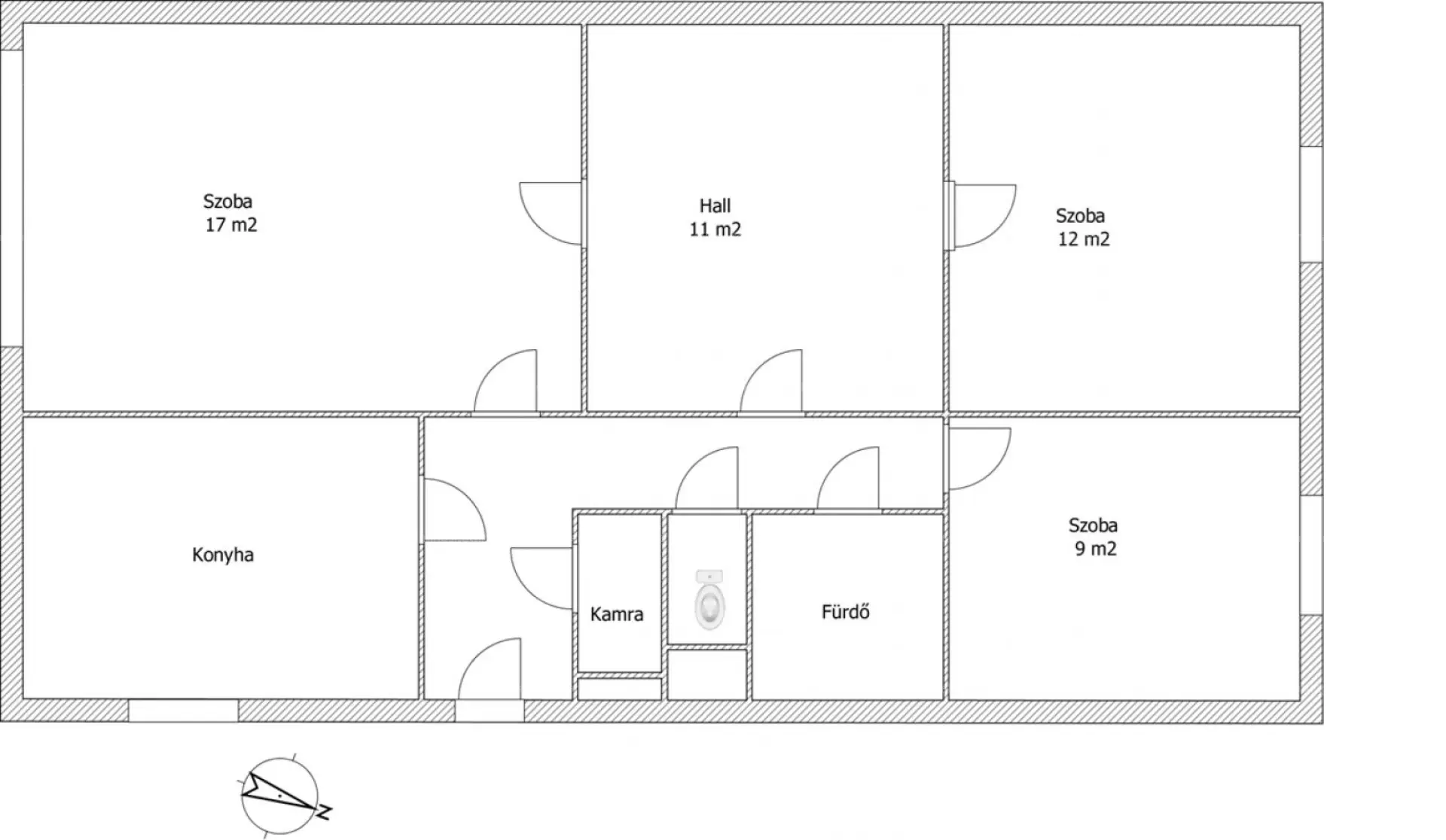
Alapterület: 67 m2

Elosztás: 3 szoba - hall

Nappali: tágas, parkra néző

Hálószobák: csendes kis utcára nézők, előtte zöld területtel

Állapot: felújítandó, így az új tulajdonos saját ízlésére alakíthatja

Fűtés: távfűtés egyedi méréssel

Nyílászárók: műanyag ablakok

Épület: szigetelt, alacsonyabb rezsivel

Külön előny:
A lakástól mindössze 2 perc sétára található garázs tartós bérleti joga is megvásárolható, 5 millió forintért. Ez a környéken ritka lehetőség, hiszen a parkolás mindig kényelmes és biztosított.

A környék zöldövezeti hangulatot áraszt, ugyanakkor minden fontos intézmény (iskola, óvoda, üzletek, közlekedés) könnyen elérhető. Ideális választás lehet családoknak, pároknak, vagy akár befektetés céljára.

A 42-es villamossal a Határ úti metrómegálló 5 perc alatt elérhető.

A lakás tehermentes, egy tulajdonosa van. Hitel, csok igényelhető.

Érdeklődése esetén hívjon - akár hétvégén is.

Térkép

Budapest, XIX. kerület

Bűnügyi térkép

Rencsevics Mária Referens
Telefonszám +3670931
abcd