Nyíregyháza

61.9 millió Ft
631 633 Ft/m²
Alapterület
94m2
Szobák
3
Erkély
8m2

Prémium hitelajánlat

Önrész
info
12 380 000 Ft
+
Hitelösszeg
info
49 520 000 Ft
=
Havi törlesztő
info
384 608 Ft/hó

Eladó lakás (tégla építésű)

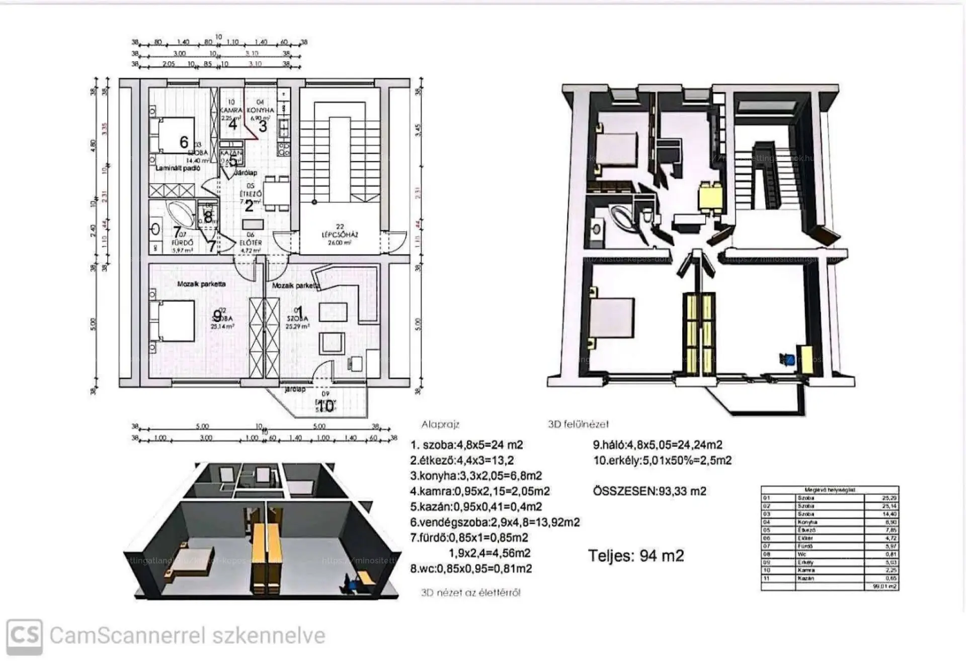
Alapterület
94 m²
Erkély terület
8 m²
Tartozik hozzá kert
Nincs
Szobák száma
3
Fűtés
Gázkazán
Ingatlan állapota
Újszerű
Építés éve
1985
Épület szintjei
3 szintes
Emelet
3. emelet
Pince
Nincs
Lift
Nincs
Napelem
Nincs
Szigetelés
Van
Parkolóhely
Önálló garázs
Kilátás
Udvari
Légkondicionált
Igen
Tájolás
Déli
Panelprogramos
Nem

Leírás

Irányár: 61.900.000 Ft
ÍZLÉSES, TÁGAS (94 m²-es) LAKÁS AZ EGYETEMEK ÉS AZ ERDŐ KÖZELÉBEN

Nyíregyháza, Sóstói út csendes, belső részén – a Krúdy köz felől megközelíthetően – eladó egy 94 m²-es, rendkívül igényesen felújított, HÁROMSZOBÁS lakás, amely garázzsal együtt kínál kényelmes, nyugodt otthont.

A lakás 3. emeleti, DÉLI FEKVÉSŰ, csendes részre néző, világos és rendkívül barátságos hangulatú.
Tulajdonosai ízlésesen, saját igényre újították fel, így az otthon valóban kulcsrakész állapotban várja új lakóit.

FŐBB JELLEMZŐK:

- Tégla falazatú, 8 cm hőszigeteléssel ellátott épület
- Alapterület: 94 m²
- Fűtés: gáz-cirkó (új radiátorok, rézcsövek a falban)
- Minden szobában internetkábel kiépítve
- 3 rétegű hőszigetelt nyílászárók, redőnnyel és szúnyoghálóval
- Déli fekvésű erkély, napfényes, csendes kilátással
- Két inverteres klíma (2021) – hűtésre és fűtésre is alkalmas
- Nincs felső szomszéd, csak egy oldalsó lakás határos

BELSŐ TEREK ÉS KIALAKÍTÁS:

- Három különálló tágas szoba

- Külön konyha és étkező, kamra

- Fürdőszoba külön WC

- Kazánház/tárolóhelyiség

- Az egyik hálószobában két oldalról megközelíthető gardróbszekrény, igényes bútorlappal, tolóajtóval elválasztva.

- Prémium gépesített konyha (2021-es beépítés) – modern, minőségi anyagokból

- Burkolatok, víz-, fűtés- és elektromos hálózat cseréje 2018-ban megtörtént

KÖRNYEZET ÉS TÁRSASHÁZ:

- 8 lakásos, rendezett, csendes lakóközösség

- Közös tároló a földszinten

- Társasház tetőszigetelése megtörtént

- Közös költség: mindössze 11.000 Ft (takarítás, szemétszállítás stb.)

- Alacsony rezsi – kb. 9.000 Ft gázátalány

- Tiszta, karbantartott lépcsőház, jó szomszédság

GARÁZS:
A lakáshoz 15 m²-es garázs is tartozik,
mely 6.000.000 Ft-ért megvásárolható.
A garázs előtt további egy autó számára is van parkolási lehetőség.

EGYÉB:
- A lakás a számos beépített bútor miatt szinte teljes berendezéssel együtt eladó!

- Világos, modern, harmonikus enteriőr

- Azonnal költözhető, kiváló elhelyezkedéssel – egyetemek, erdő és belváros pár perc

Garázs: 8.000.000 Ft

Igényes, nyugodt, tágas otthon – ahol minden részlet a minőséget képviseli.

Térkép

Nyíregyháza

Bűnügyi térkép

Kristóf-Képes Dóra Lilla Referens
Telefonszám +3630567
abcd