https://minositettingatlanok.hu/hu/ingatlan/2860255
Stefán Barbara Referens
36707089647
QR kód

Szeged

144.9 millió Ft

1 027 660 Ft/m²
Alapterület
128m2
Telek
420 m²
Szobák
4

Eladó ház (családi ház)

Alapterület
128 m²
Telekterület
420 m²
Erkély terület
26 m²
Tartozik hozzá kert
Van
Szobák száma
4
Ingatlan állapota
Új építésű
Építés éve
2026
Épület szintjei
Földszintes
Pince
Nincs
Tetőtér
Nem beépíthető
Lift
Nincs
Napelem
Nincs
Szigetelés
Van
Parkolóhely
Udvari beálló
Kilátás
Kertre néző
Légkondicionált
Nem
Tájolás
Észak-nyugati
Panelprogramos
Nem

Leírás

Szeged–Petőfitelep KERTVÁROSI övezetében KULCSRAKÉSZ családi ház 2026 tavaszi beköltözéssel, közvetlenül kivitelezőtől LEKÖTHETŐ. Fiataloknak ideális választás: igénybe vehetők állami támogatások (CSOK, OTTHON START), a finanszírozásban INGYENES banki hitel-, biztosítás- és egyéb ügyintézés segíti a vásárlást.

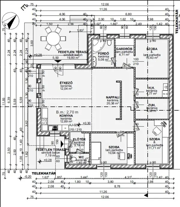
A 420 m2-es telekre tervezett, 103 m2-es, KERTKAPCSOLATOS otthonhoz 27 m2-es TERASZ tartozik. Praktikus, FIATALOS elrendezés: AMERIKAI KONYHÁS NAPPALI és ÉTKEZŐ, 3 SZOBA, GARDRÓB, 2 FÜRDŐSZOBA WC-vel, KÜLÖN WC, HÁZTARTÁSI HELYISÉG, ELŐSZOBA.

KORSZERŰ műszaki megoldások: 30-as POROTHERM KLÍMA tégla + 10 cm GRAFITOS hőszigetelés, ECO PURHAB födémszigetelés, 3 RÉTEGŰ MŰANYAG nyílászárók. Fűtés: GÁZ CIRKÓ kazán PADLÓFŰTÉS rendszerrel. Meghatározott értékben VÁLASZTHATÓ a beltéri ajtók és a szaniterek típusa, színe – így SAJÁT STÍLUS SZERINT személyre szabható a megjelenés.

Az ár tartalmazza a TELJES dokumentációs ügyintézést (közművek, hivatali ügyek, engedélyeztetés, tervdokumentáció). Részletes műszaki tartalom KULCSRAKÉSZ kivitelezésre elérhető érdeklődés esetén.
A burkolatok és festés a megadott árban nem szerepelnek, igény szerint megvalósíthatók.

LOKÁCIÓ: buszmegálló 1 perc sétával, a belváros autóval 10 perc alatt elérhető, CSALÁDBARÁT környezet – a mindennapi városi élet kényelmesen elérhető. Az alapszolgáltatások (élelmiszer és műszaki bolt, gyógyszertár, étterem szintén a közvetlen környezetben található.

Ár: 144.900.000 Ft. Bővebb információért és időpontegyeztetésre keressen bizalommal – akár HÉTVÉGÉN is!

Tulajdoni lap adatok

2024.10.07
SZEGED II.KERÜLET Belterület
-

Alapadatok

Cím
13332 helyrajzi szám 6727 SZEGED II.KERÜLET
Típus
. Kivett lakóház, udvar
Alapterület
911 m²

Tulajdonosok

Tulajdoni hányad
1/1
Jogállás
tulajdonos