Kecskemét

83 millió Ft
965 116 Ft/m²
Alapterület
81m2
Telek
506 m²
Szobák
4

Prémium hitelajánlat

Önrész
info
16 600 000 Ft
+
Hitelösszeg
info
66 400 000 Ft
=
Havi törlesztő
info
518 275 Ft/hó

Eladó ház (családi ház)

Alapterület
81 m²
Telekterület
506 m²
Erkély terület
10 m²
Tartozik hozzá kert
Van
Szobák száma
4
Fűtés
Gázkazán
Ingatlan állapota
Új építésű
Építés éve
2025
Épület szintjei
Földszintes
Pince
Nincs
Tetőtér
Nem beépíthető
Lift
Nincs
Napelem
Nincs
Szigetelés
Van
Parkolóhely
Udvari beálló
Kilátás
Udvari
Légkondicionált
Igen
Tájolás
Dél-nyugati
Panelprogramos
Nem

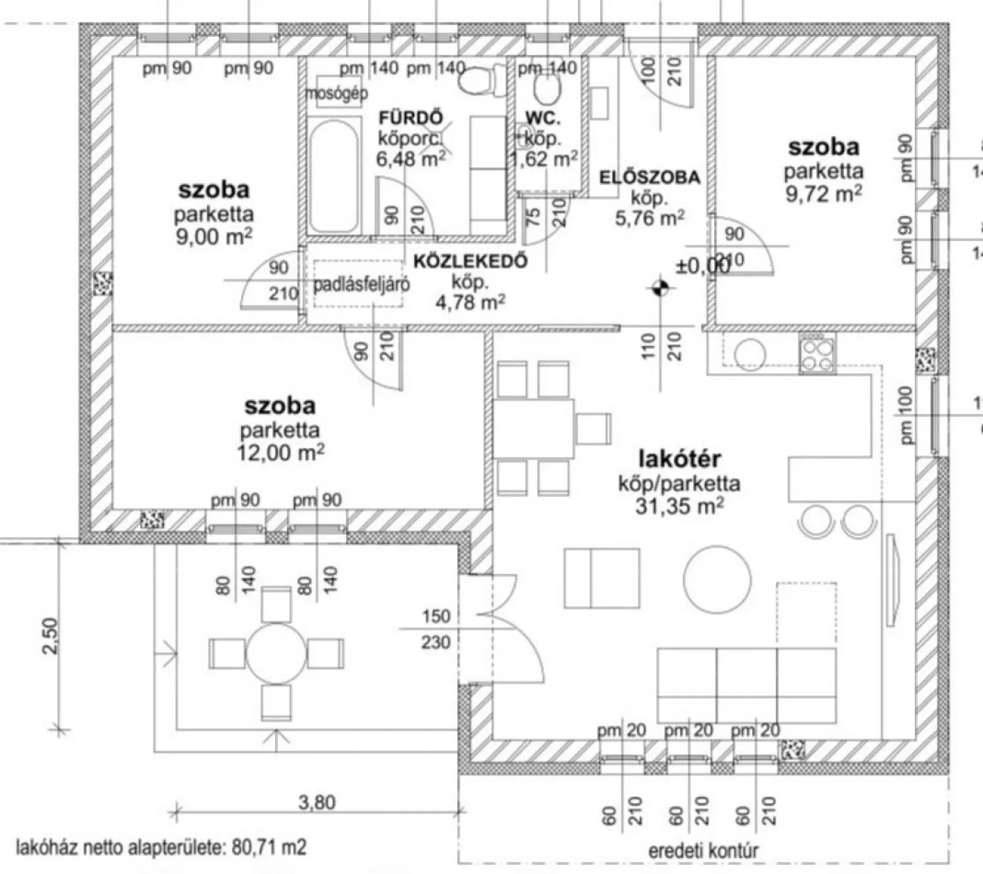
Leírás

Kecskemét - Katonatelepen már megépült 81 m2-es , nappali+3 szobás családi ház bekerített, összközműves telken eladó! Az ár tartalmazza a telek árát is!

Az ingatlan jellemzői:
- telek 500 m2 ( összközműves)
- lakótér 81 m2
- 10 m2 térkövezett terasz
- gáz-cirkó fűtés, Bosch 2300 kazánnal,
- padlófűtés
- 3 BOSCH hűtő-fűtő klíma
- Porotherm főfalak
- 10 cm-es tégla válaszfalak (belső)
- szeglemezes tető, 30 cm vtg.-ban befújt cellulóz szigetelés
- fekete beton cserép tetőfedés
- műanyag, Gelan tipusú bukó-nyíló nyílászárók (3 rétegű, 6 légkamrás),
- biztonsági bejárati ajtó
- redőny, szúnyogháló
- 15 cm EPS homlokzati hőszigetelés
- elektromos kapu

A ház cégtől eladó alkalmas CSOK+-ra, 3%-os hitelre is!!!

A Duna House teljes kínálatával, valamint díjmentes, teljeskörű hitel, CSOK plusz, babaváró ügyintézéssel kapcsolatban forduljon hozzám bizalommal!

Térkép

Kecskemét

Bűnügyi térkép

Simigla Hajnalka Referens
Telefonszám +3620414
abcd