https://minositettingatlanok.hu/hu/ingatlan/2752169
Pataky Sándor Referens
36703206970
QR kód

Ráckeve

49 millió Ft

478 049 Ft/m²
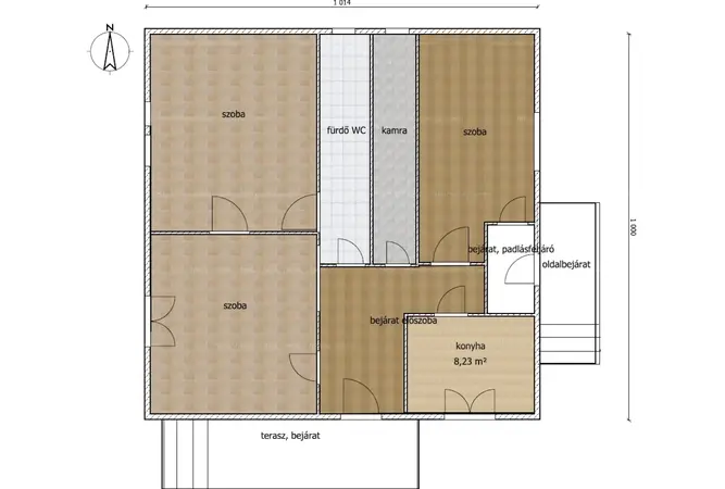
Alapterület
100m2
Telek
1060 m²
Szobák
4

Eladó ház (családi ház)

Alapterület
100 m²
Telekterület
1060 m²
Erkély terület
5 m²
Tartozik hozzá kert
Van
Szobák száma
4
Fűtés
Gázkazán
Energetikai tanúsítvány
J
Ingatlan állapota
Közepes állapotú
Építés éve
1964
Épület szintjei
Földszintes
Pince
Van
Tetőtér
Beépíthető
Lift
Nincs
Napelem
Nincs
Szigetelés
Nincs
Parkolóhely
Önálló garázs
Kilátás
Kertre néző
Légkondicionált
Igen
Tájolás
Dél-nyugati
Panelprogramos
Nem

Leírás

TÁGAS CSALÁDI HÁZ NAGY TELEKKEL – GYERMEKES CSALÁDOKNAK IDEÁLIS! 🏡
Eladó masszív szerkezetű, 100 m²-es családi ház 1060 m²-es, összközműves telken.
A 40 cm-es tégla falazat tartós és jól szigetelhető alapot nyújt, a két külön bejáratú lakrész pedig többgenerációs családnak is tökéletes.
📍 Főbb jellemzők:
• 3 szoba, konyha, fürdő, két előtér
• 2 külön bejárat
• Tágas, 100 m²-es pince (korábban lakótér)
• Fűtés: gázcirkó, hőtárolós kályha vagy fatüzelés
• Részleges felújítást igényel
🧒 A nagy telek ideális kertnek, játszótérnek vagy bővítéshez is.
🛒 Iskola, bevásárlás, központ pár perc alatt elérhető.
💰 Elérhető 3%-os hitel és kedvezmények!
Irodánk jogász, hitelügyintéző és építész háttérrel segíti a vásárlást.
✨ Tökéletes választás családoknak, akik tágas, masszív otthont keresnek nagy telekkel!
📞 Érdeklődjön még ma!