https://minositettingatlanok.hu/hu/ingatlan/2595597
Udvarácz Mira Referens
36205511347
QR kód

Felsőtárkány

124.9 millió Ft

1 115 179 Ft/m²
Alapterület
90m2
Telek
750 m²
Szobák
3

Eladó ház (családi ház)

Alapterület
90 m²
Telekterület
750 m²
Erkély terület
44 m²
Tartozik hozzá kert
Van
Szobák száma
3
Energetikai tanúsítvány
B
Ingatlan állapota
Újszerű
Építés éve
2015
Épület szintjei
Földszintes
Pince
Nincs
Tetőtér
Nem beépíthető
Lift
Nincs
Napelem
Nincs
Szigetelés
Van
Parkolóhely
Önálló garázs
Kilátás
Panorámás
Légkondicionált
Nem
Tájolás
Keleti
Panelprogramos
Nem

Leírás

Felsőtárkányban a Várhegy lakóparkban, gyönyörű, panorámás lakóház, csodaszép kerttel, dupla garázzsal eladó.
Eladásra kínálok egy alig 10 éve épült, nagyon igényes, amerikai konyhás, nappali + 2 hálószobás kényelmes otthont.
Minőségi anyagokból épült, 10 cm szigetelést kapott.
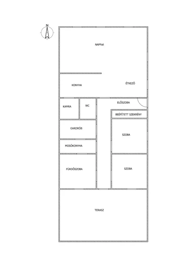
Lakórész: 90 nm
Terasz: 40 nm
Dupla garázs: 33 nm
Beosztása:
Amerikai konyhás nappali 35 nm
Kamra 3 nm
1. Hálószoba 9 nm
2. Hálószoba 9 nm
Gardrób 4.5 nm
Mosókonyha 3.5 nm
Fürdőszoba 9 nm
Előszoba - közlekedő 13 nm
Vendég toalett 2.5 nm
Minőségi hőszigetelt műanyag ablakok, redőnnyel és szúnyoghálóval.
Igényes, tágas beépített szekrények.
Jól kialakított gépesített konyha.
Kondenzáció kazán+ padlófűtés+ radiátorok.
Elektromos garázskapu.
Tágas terasz, térkő, járda, kavicsolt vízelvezetés.
Automata, programozható öntözőrendszer.
A település Eger vonzáskörzetében található, kiváló infrastruktúrával.
Iskola, óvoda, étterem, túrázási lehetőségek a közelben elérhetőek!
Érdemes megnézni, keressen bizalommal.