Budapest, I. kerület

1,200 millió Ft
780 742 Ft/m²
Alapterület
1537m2

Eladó Üzlet (egyéb üzlethelyiség)

Alapterület
1537 m²
Tartozik hozzá kert
Nincs
Fűtés
Gázkazán
Energetikai tanúsítvány
C
Ingatlan állapota
Felújított
Építés éve
2000
Épület szintjei
5 szintes
Emelet
Földszint
Pince
Nincs
Lift
Nincs
Napelem
Nincs
Szigetelés
Nincs
Légkondicionált
Igen
Panelprogramos
Nem

Leírás

🏢 Eladó átalakítható irodaház – Befektetők figyelem! 💼✨

Kivételes lehetőség Budán, az I. kerület szívében, a Vár alatt – Gellérthegy utcában!
Ez a 1488 m²-es irodaház remek állapotban van, és könnyedén átalakítható akár:
👉 10 lakásos társasházzá 🏠
👉 Szállodává 🏨

🚗 14 fedett mélygarázs tartozik hozzá – hatalmas előny a környéken!

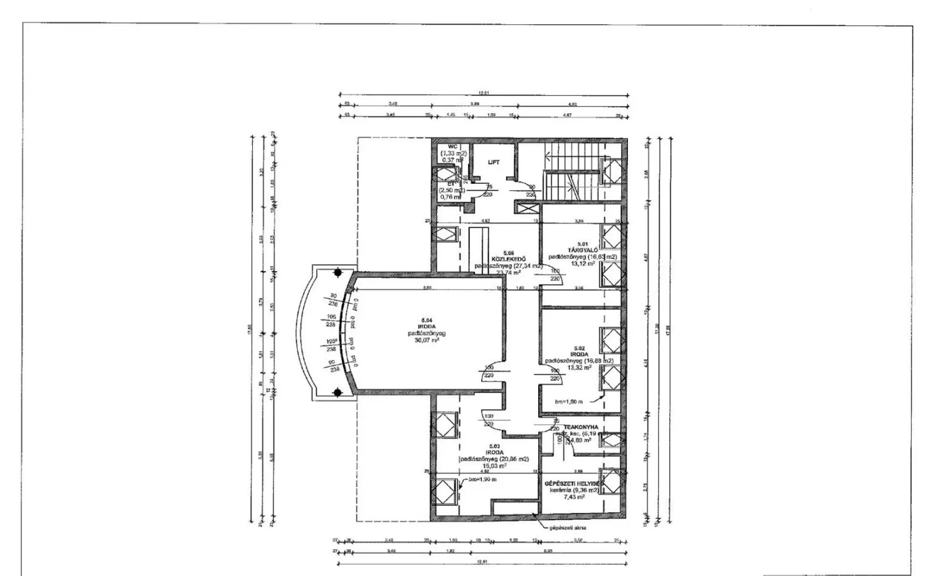
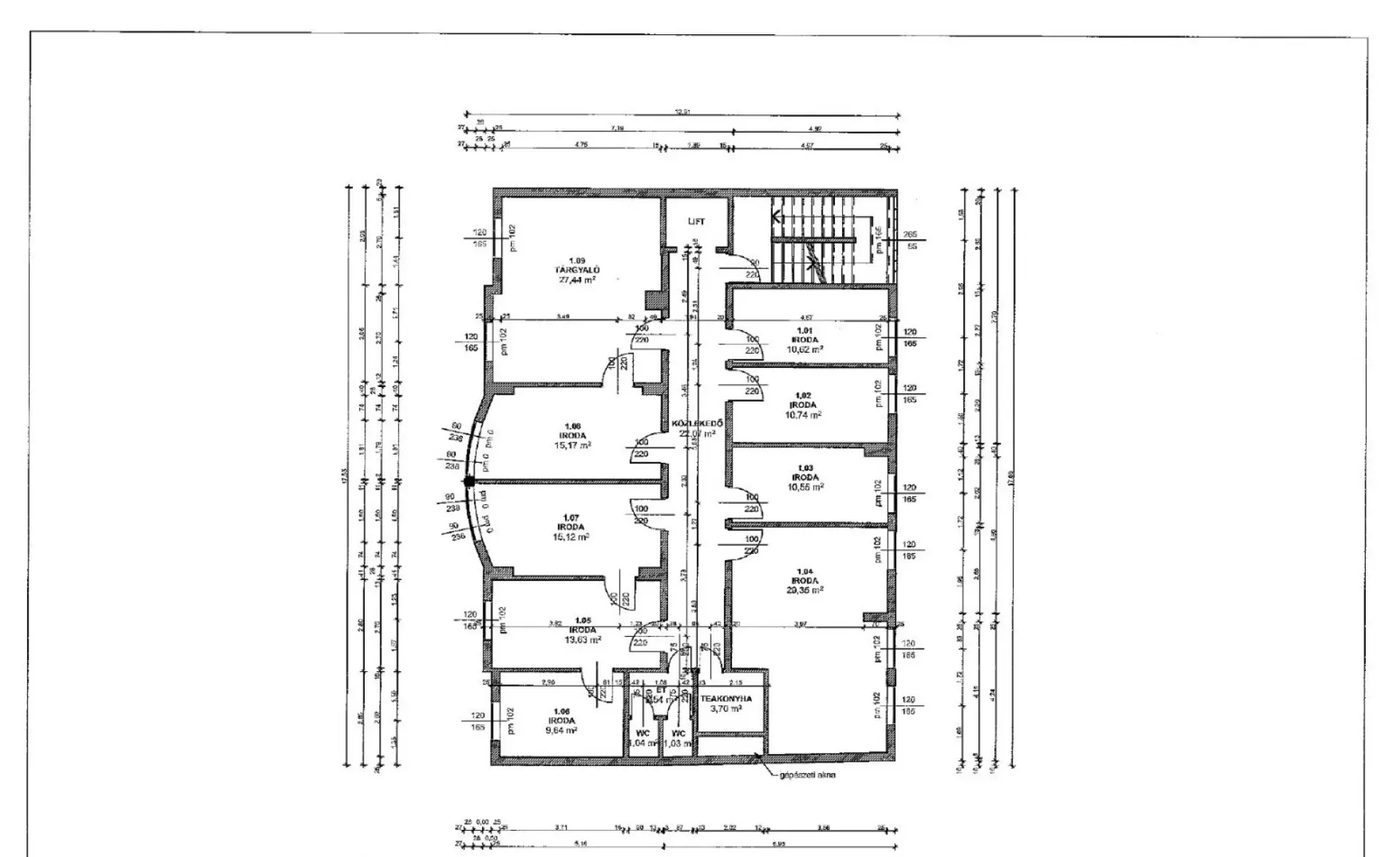
📐 Főbb jellemzők:

Mélygarázs + földszint + 5 emelet

Közel 40 irodahelyiség és 5 tárgyaló

Szintenként teakonyha + női-férfi mosdó 🚻

Földszinten recepció + konferenciaterem 🎤

Lift + klimatizált irodák ❄️

2019-ben teljes fűtésrendszer felújítás, gázkazán csere 🔧

📍 Lokáció:

Krisztina tér pár lépésre

Könnyű megközelíthetőség: villamos 🚋 (56), busz 🚌 (5, 105, 178)

Elegáns, frekventált környezet

✅ Műszaki alaprajzok elkészültek – az átalakítás azonnal indítható!

💡 Ideális befektetőknek, akik prémium helyszínt keresnek sokoldalú hasznosítási lehetőséggel.

☎️ Rugalmasan megtekinthető, hívjon bizalommal!

Térkép

Budapest, I. kerület

Bűnügyi térkép

Orosz István Referens
Telefonszám +3630529
abcd