https://minositettingatlanok.hu/hu/ingatlan/2472876
Takács László Referens
36309295123
QR kód

Diósd

159.9 millió Ft

908 523 Ft/m²
Alapterület
162m2
Telek
642 m²
Szobák
5

Eladó ház (ikerház)

Alapterület
162 m²
Telekterület
642 m²
Erkély terület
28 m²
Tartozik hozzá kert
Van
Szobák száma
5
Fűtés
Hőszivattyú
Ingatlan állapota
Új építésű
Építés éve
2025
Épület szintjei
2 szintes
Pince
Nincs
Tetőtér
Beépített
Lift
Nincs
Napelem
Nincs
Szigetelés
Van
Parkolóhely
Önálló garázs
Kilátás
Kertre néző
Légkondicionált
Igen
Tájolás
Déli
Panelprogramos
Nem

Leírás

Budai Agglomeráció kedvelt városában!

MAGAS MŰSZAKI TARTALOMMAL ÉPÜLŐ IKERHÁZ ELADÓ DIÓSDON!

Most Öné lehet kedvező m2 áron egy nettó összesen 194 m2-es 2 szintes ikerház. Diósd Égettvölgy részén épül. CSAK GARÁZZSAL ÉRINTKEZNEK.
Tágas, világos terek köszönhetően az egyedi jó méretű nyílászáróknak, család barát elosztással.
Nettó hasznos lakótér 131 m2 + 18,30 m2 garázs + 2 db terasz / 28,35 m2 + 16,35 m2 /
Hozzá tartozó telek mérete 642 m2.

Foglalja le már most leendő otthonát 10%-al.
Az építkezés szerkezetkész állapotnál tart így saját ízlése és igénye szerint választhatja ki a ház belső kinézetét illetve végig követheti az építkezést.
Amennyiben egyedi igényei lennének az elosztással kapcsolatban a kivitelező rugalmas a változtatásokra.

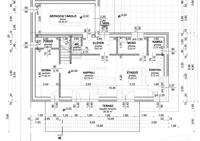
Elosztását tekintve:
Földszint:

- 1 állásos garázs

- előszoba

- külön mellékhelyiség
- háztartási helyiség

- 1 hálószoba saját fürdőszobával

- tágas és világos amerikai konyhás nappali terasz és kertkapcsolattal


Emelet:

- 3 egész méretű hálószoba
- fürdőszoba
- gardrób
- hangulatos, félig fedett 16,35 m2-es terasz

Műszaki adatok:

- 30-as Porotherm tégla falazat, 10 cm tégla válaszfalak

- 15 cm homlokzati szigetelés
- Födém szigetelés: 2x15cm vastag szálas kőzetgyapot szigetelés

- Hőszivattyú fűtés 230 literes indirect tárolóval

- Minden helyiségben padlófűtés
- Mennyezet hűtés
- Hővisszanyerős szellőztető rendszer

- Tetőn korcolt lemezfedés

- 3 rétegű 5 légkamrás nyílászárók egyedi antracit színben

- Riasztó, kamera, napelem előkészítés

- Szaniterek

- Hideg/meleg burkolatok ( 10 000 Ft/m2 meleg: 10 000 Ft/ m2 )

- Beltéri ajtók ( 100 000 Ft/db )

- 5 ponton záródó bejárati ajtó

Ezek mind kiemelkedő minőségben és az átlagnál magasabb áron választhatóak. Árlista tőlem kérhető.Az építkezés megtekintése után minden a házzal kapcsolatos dokumentáció rendelkezésre áll.

EXTRÁK:

- Ház homlokzatán díszkő burkolat
- Térkövezés

- Elektromos alumínium redőnyök


Környék rendezett, csendes, minden perceken belül elérhető autóval.

Várható átadás: 2026 Tavasz

További információkért hívjon bizalommal.