Budapest, III. kerület

77.9 millió Ft
1 128 986 Ft/m²
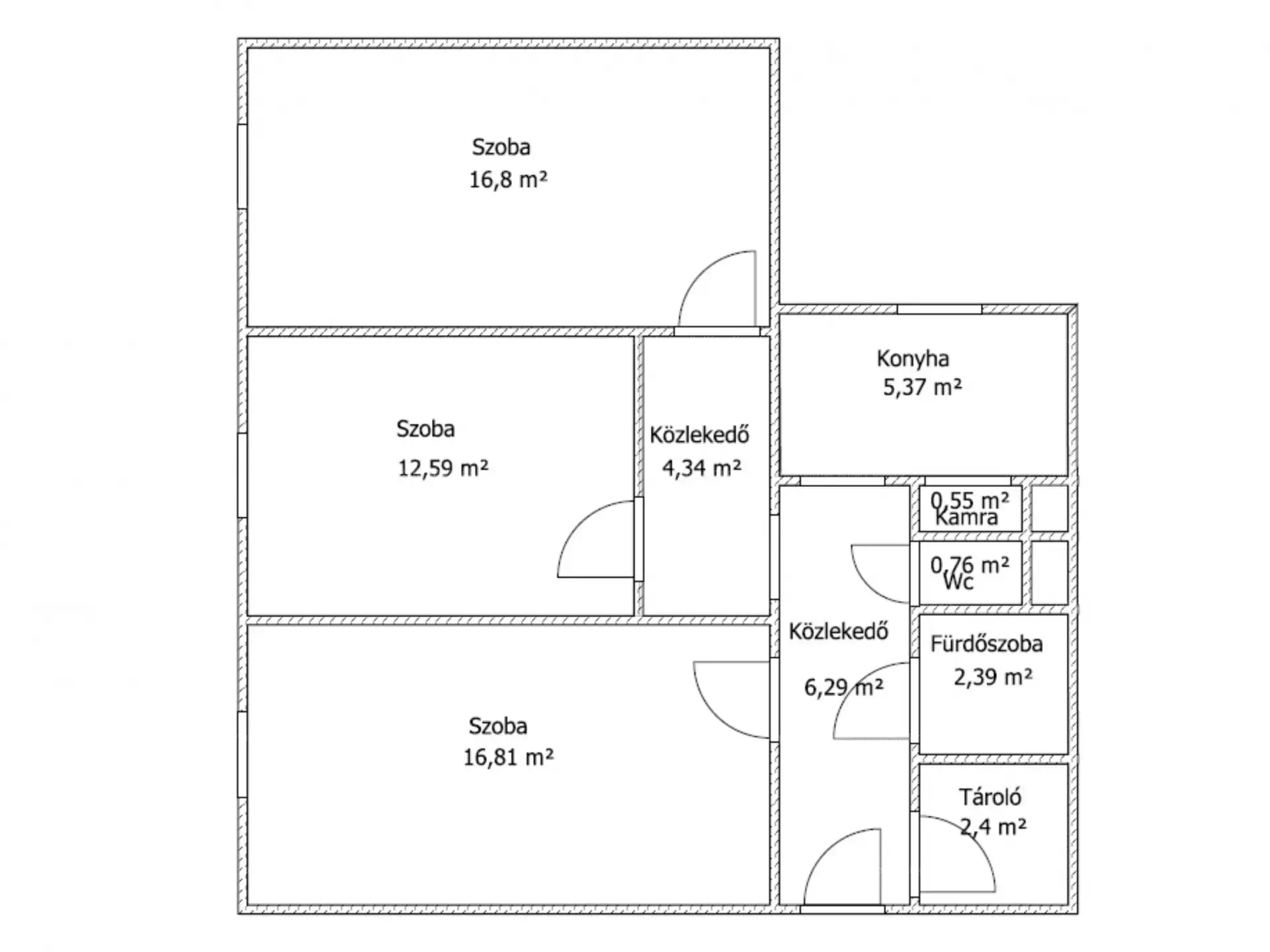
Alapterület
69m2
Szobák
3

Prémium hitelajánlat

Önrész
info
15 580 000 Ft
+
Hitelösszeg
info
62 320 000 Ft
=
Havi törlesztő
info
484 022 Ft/hó

Eladó lakás (panel)

Alapterület
69 m²
Tartozik hozzá kert
Nincs
Szobák száma
3
Fűtés
Távfűtés egyedi méréssel
Energetikai tanúsítvány
E
Ingatlan állapota
Jó állapotú
Építés éve
1980
Épület szintjei
10 szintes
Emelet
4. emelet
Pince
Nincs
Lift
Van
Napelem
Nincs
Szigetelés
Van
Parkolóhely
Utca, közterület
Kilátás
Utcai
Légkondicionált
Nem
Tájolás
Keleti
Panelprogramos
Igen

Leírás

Csendes otthon a zöldben – 3 szobás panelprogramos lakás a Szél utcában!

69 m²

Térkép

Budapest, III. kerület

Bűnügyi térkép

Lénárt Balázs Referens
Telefonszám +3670454
abcd