Cserépfalu

23 millió Ft
242 105 Ft/m²
Alapterület
95m2
Telek
747 m²
Szobák
4

Prémium hitelajánlat

Önrész
info
4 600 000 Ft
+
Hitelösszeg
info
18 400 000 Ft
=
Havi törlesztő
info
142 908 Ft/hó

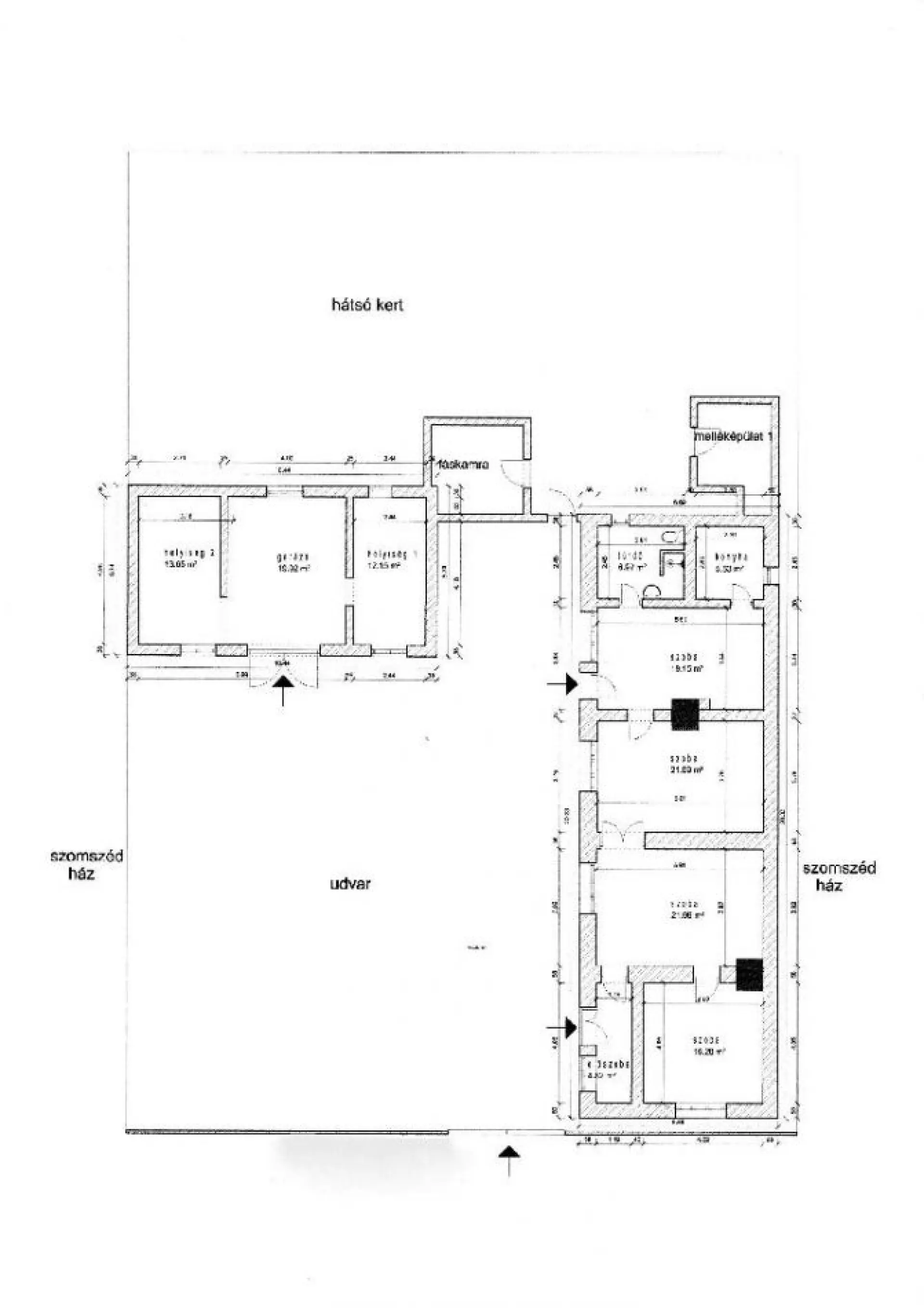
Eladó ház (családi ház)

Alapterület
95 m²
Telekterület
747 m²
Tartozik hozzá kert
Van
Szobák száma
4
Fűtés
Gázkonvektor
Ingatlan állapota
Felújítandó
Építés éve
1945
Épület szintjei
Földszintes
Pince
Nincs
Tetőtér
Beépíthető
Lift
Nincs
Napelem
Nincs
Szigetelés
Nincs
Parkolóhely
Önálló garázs
Kilátás
Udvari
Légkondicionált
Nem
Tájolás
Nyugati
Panelprogramos
Nem

Leírás

Borsod-Abaúj-Zemplén megye, Cserépfalu, Bethlen Gábor út, 95 m2-es családi ház, 747 m2-es telken eladó. A kőből épült, szerkezetileg stabil, de állapotát tekintve felújítandó/modernizálandó ingatlant négy szoba, konyha, fürdőszoba és zárt veranda alkotja. Az udvaron található továbbá egy garázs, tároló helyiségekkel, illetve egy fatároló és állattartásra szolgáló melléképület is. Fából készült ablakai redőnnyel szereltek. A fűtésről gázkonvektorok és cserépkályhák gondoskodnak. A melegvíz-ellátást bojler biztosítja. A tető állapota életkorának megfelelő, héjazata cserép. Az ingatlan elhelyezkedése, mérete és kialakítása okán is békés otthonává válhat párnak, családnak egyaránt. Az épület turisztikai szempontból is jó lehetőséget kínál, hiszen több apartman is kialakítható benne. Amennyiben a leírtak felkeltették érdeklődését, jöjjön el és nézze meg személyesen az ingatlant!
Kattintson: https://ingatlanseta.hu/r2542877
Kérem az alábbi telefonszámon keressen:
70 317 2630!

Térkép

Cserépfalu

Bűnügyi térkép

Bata Zoltán Referens
Telefonszám +3670317
abcd