Tata

147 millió Ft
731 343 Ft/m²
Alapterület
180m2
Telek
873 m²
Szobák
7

Prémium hitelajánlat

Önrész
info
29 400 000 Ft
+
Hitelösszeg
info
117 600 000 Ft
=
Havi törlesztő
info
913 366 Ft/hó

Eladó ház (családi ház)

Alapterület
180 m²
Telekterület
873 m²
Erkély terület
42 m²
Tartozik hozzá kert
Van
Szobák száma
7
Fűtés
Gázkazán
Energetikai tanúsítvány
E
Ingatlan állapota
Jó állapotú
Építés éve
1993
Épület szintjei
2 szintes
Pince
Nincs
Tetőtér
Beépített
Lift
Nincs
Napelem
Nincs
Szigetelés
Van
Parkolóhely
Teremgarázs hely
Kilátás
Kertre néző
Légkondicionált
Igen
Tájolás
Dél-keleti
Panelprogramos
Nem

Leírás

Eladó tágas,két szintes családi ház Tatán.
.
.
.
.
.
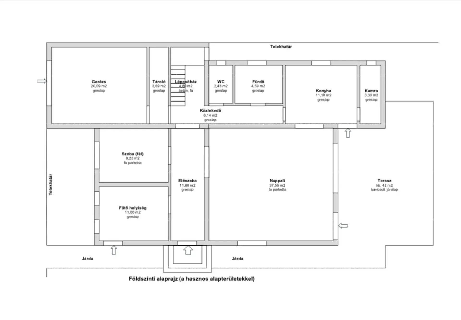
Tatán, egy csendes, nyugodt környéken kínálunk megvételre egy 180 m²-es, két szintes, Habisolból épült családi házat, amely egy 873 m²-es, gondozott, füvesített telken helyezkedik el. Az ingatlanhoz tartozik egy 20 m²-es garázs is.
A ház 1993-ban épült, majd 2015-ben nagyobb felújításon esett át: megújult a külső vakolat, a tetőszerkezet fóliázást és hőszigetelést kapott, részben a tetőlécek is kicserélésre kerültek, valamint a terasz új burkolatot kapott. A cserépfedésű családi ház 6 cm-es külső szigeteléssel rendelkezik, így energiatakarékosan fenntartható.
A fűtésről Viessmann gázkazán, hangulatos cserépkályha, valamint két hűtő-fűtő klíma gondoskodik.
A korszerű biztonsági és kényelmi felszereltség része a riasztórendszer, az automata öntözőrendszer és a nappali–éjszakai 3×25A áramellátás.
A földszinten tágas nappali, konyha, egy kisebb szoba, fürdőszoba, külön WC, fűtőhelyiség és tároló kapott helyet. Az emeleten négy hálószoba, egy polcozott gardróbszoba, valamint fürdő és WC található. A burkolatok változatosak (parketta, járólap, szalagparketta), a nyílászárók részben műanyagból, részben fából készültek, kétrétegű üvegezéssel, részben redőnnyel és szúnyoghálóval felszerelve. A beltéri ajtók mind fából készültek, az emeleten üvegezett faajtók teszik világosabbá a tereket.
A ház vételárába beletartozik a beépített konyha, a garázs polcrendszere és a gardróbszoba teljes berendezése.
A kertben cserépfedéses fedett terasz, kisház és tároló is helyet kapott, így minden adott egy kényelmes, családbarát otthonhoz.

Ár: 147.000.000.Ft.
Erika:+36303513614

Térkép

Tata

Bűnügyi térkép

Feel-Ing Ingatlanközvetítő Kft. Referens
Telefonszám +3630903
abcd