https://minositettingatlanok.hu/hu/ingatlan/2055045
Tegzes Ildikó Referens
36302295301
QR kód

Eger

45 millió Ft

789 474 Ft/m²
Alapterület
55m2
Szobák
2
Erkély
4m2

Eladó lakás (tégla építésű)

Alapterület
55 m²
Erkély terület
4 m²
Tartozik hozzá kert
Nincs
Szobák száma
2
Fűtés
Gázkazán
Ingatlan állapota
Felújított
Építés éve
1975
Épület szintjei
4 szintes
Emelet
1. emelet
Pince
Nincs
Lift
Nincs
Napelem
Nincs
Szigetelés
Nincs
Parkolóhely
Utca, közterület
Kilátás
Udvari
Légkondicionált
Igen
Tájolás
Nyugati
Panelprogramos
Nem

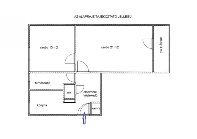
Leírás

Eger, Felsővárosban 55 m2-s, 2 szobás, felújított, egyedi fűtésű, gázcirkós, 1. emeleti, erkélyes lakás eladó.
Ár: 45,0 M Érd: 30/2295-301
Az ingatlant 2007-ben újították fel: konyha, fürdőszoba, villany-, víz- szennyvíz vezetékek, burkolatok, műanyag ablakok redőnnyel, új fűtésrendszer kialakítása Vaillant kombi gázkazánnal.
A konyhai tárolás kiegészítésére kamra áll rendelkezésre, a fürdőszoba és wc külön helyiségben található.
A nagyobb szobába LG hűtő-fűtő klímát szereltek (2020.).
A nappalihoz 4 m2-s erkély tartozik, mely Ny-i fekvésű, a kisebb szoba, fürdőszoba, konyha K-i tájolású.
A 14 lakásos társasház 4 emeletes, téglaépítésű. A közös költség 20.000- havonta. Közös tárolót használnak a tulajdonosok.
Parkolni az épület előtti parkolóban lehetséges.
Közintézmények, iskola, óvoda, orvosi rendelő, pékség, buszmegálló, minden sétatávolságra elérhető.
A lakás egy tisztasági festéssel költözhető állapotú, az új tulajdonosnak a felújítással már nem lesz gondja. Tehermentes, rugalmasan birtokba vehető ingatlan.