https://minositettingatlanok.hu/hu/ingatlan/2011341
Szimeth Norbert Referens
36703833318
QR kód

Budapest, X. kerület

95 millió Ft

887 850 Ft/m²
Alapterület
105m2
Szobák
4
Erkély
4m2

Eladó lakás (csúszózsalus)

Alapterület
105 m²
Erkély terület
4 m²
Tartozik hozzá kert
Nincs
Szobák száma
4
Fűtés
Házközponti egyedi méréssel
Energetikai tanúsítvány
D
Ingatlan állapota
Közepes állapotú
Építés éve
1990
Épület szintjei
4 szintes
Emelet
4. emelet
Pince
Nincs
Lift
Nincs
Napelem
Nincs
Szigetelés
Nincs
Parkolóhely
Utca, közterület
Kilátás
Utcai
Légkondicionált
Igen
Tájolás
Déli
Panelprogramos
Nem

Leírás

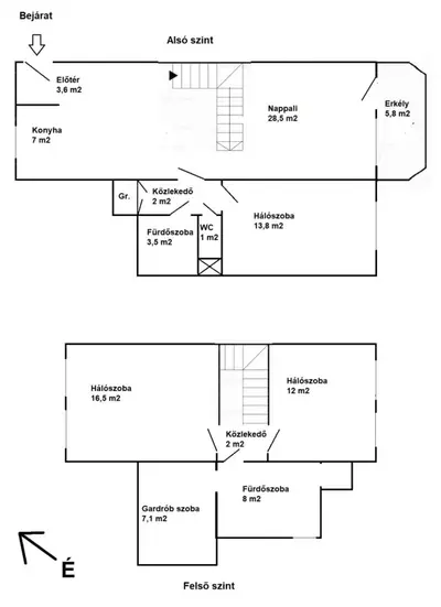
Ha egy igazán különleges otthonra vágysz, amely nemcsak négy fal, hanem stílus is, akkor ez a 105 m²-es, belső kétszintes lakás a Kőrösi Csoma Sándor sétányon neked szól. A 4. emeleten elhelyezkedő lakás minden négyzetmétere a tágasságot és a világosságot ünnepli, a napfény reggeltől estig körbetáncolja a tereket, miközben a sétány zöldje nyugalmat lehel az erkélyre.
Az alsó szinten egy amerikai konyhás nappali fogad, ahol a családi reggelik és baráti beszélgetések otthonra találnak. Egy külön bejáratú hálószoba, egy zuhanyzós fürdő, valamint egy külön WC gondoskodik a praktikumról. A nappaliból kilépve egy 5,8 m²-es, Dél-Keletre néző erkélyre jutsz, ahonnan a sétány fái és a város halk moraja köszönt minden reggel.
A nappaliból induló kényelmes lépcső egy új dimenzióba visz: a felső szinten két külön nyíló hálószoba, egy fürdőszoba káddal, zuhanyzóval, dupla mosdóval és WC-vel, valamint egy gardróbszoba vár. Itt mindenki megtalálja a saját kis zugát, legyen szó pihenésről, munkáról vagy elvonulásról.
A lakás duplakomfortos, klímával felszerelt nappalival és hálószobákkal, hőszigetelt műanyag nyílászárókkal, és egy közös tárolóval a pincében. Bár lift nincs, a lakás minden lépcsőfoka megéri a felfelé vezető utat.
Költségek
A rezsi kedvező: távfűtés egyedi méréssel (kb. 23.000 Ft/hó, beleértve a meleg vizet), víz és áram fogyasztás szerint, gáz csak a tűzhelyhez. A közös költség 29.000 Ft/hó, amely tartalmazza a felújítási alapot, biztosítást, takarítást és minden szokásos kiadást.
A lakás 11 éve teljes körű felújításon esett át, azóta is jó állapotban van, készen arra, hogy új történeteket írjon veled.
Ez nem csupán egy lakás. Ez egy otthon, ahol a fény, a tér és a nyugalom kézen fogva járnak. Ha szeretnéd, segítek megfogalmazni hozzá a hirdetés címét is
Kőrösi Csoma Sándor sétány, ahol a város lüktetése és a nyugalom találkozik
A Kőbánya szívében, a Ligettelek városrész egyik legélhetőbb zugában húzódik meg a Kőrösi Csoma Sándor sétány, egy olyan hely, ahol a mindennapok ritmusa és a természet csendje tökéletes harmóniában élnek. A sétány mentén árnyas fák sorakoznak, padok hívogatnak egy pillanatnyi megállásra, miközben a környék pezsgése sosem válik nyomasztóvá.
A közlekedés kiváló: néhány lépésre található a Kőbánya-Alsó vasútállomás, ahonnan a belváros 15 perc alatt elérhető. A 3-as villamos, valamint több buszjárat (9-es, 151-es, 217E) biztosítja, hogy bárhová könnyedén eljuss. A közelben óvodák, iskolák, bevásárlási lehetőségek és kulturális intézmények teszik teljessé az életet.
Ha olyan otthont keresel, ahol a város kényelme és a zöld környezet kéz a kézben jár, a Kőrösi Csoma sétányon megtalálod.
Irányár: 95.000.000 Ft
Elérhetőség: +36703833318
A képek között látványtervek is megtalálhatók!