Eger

78 millió Ft
847 826 Ft/m²
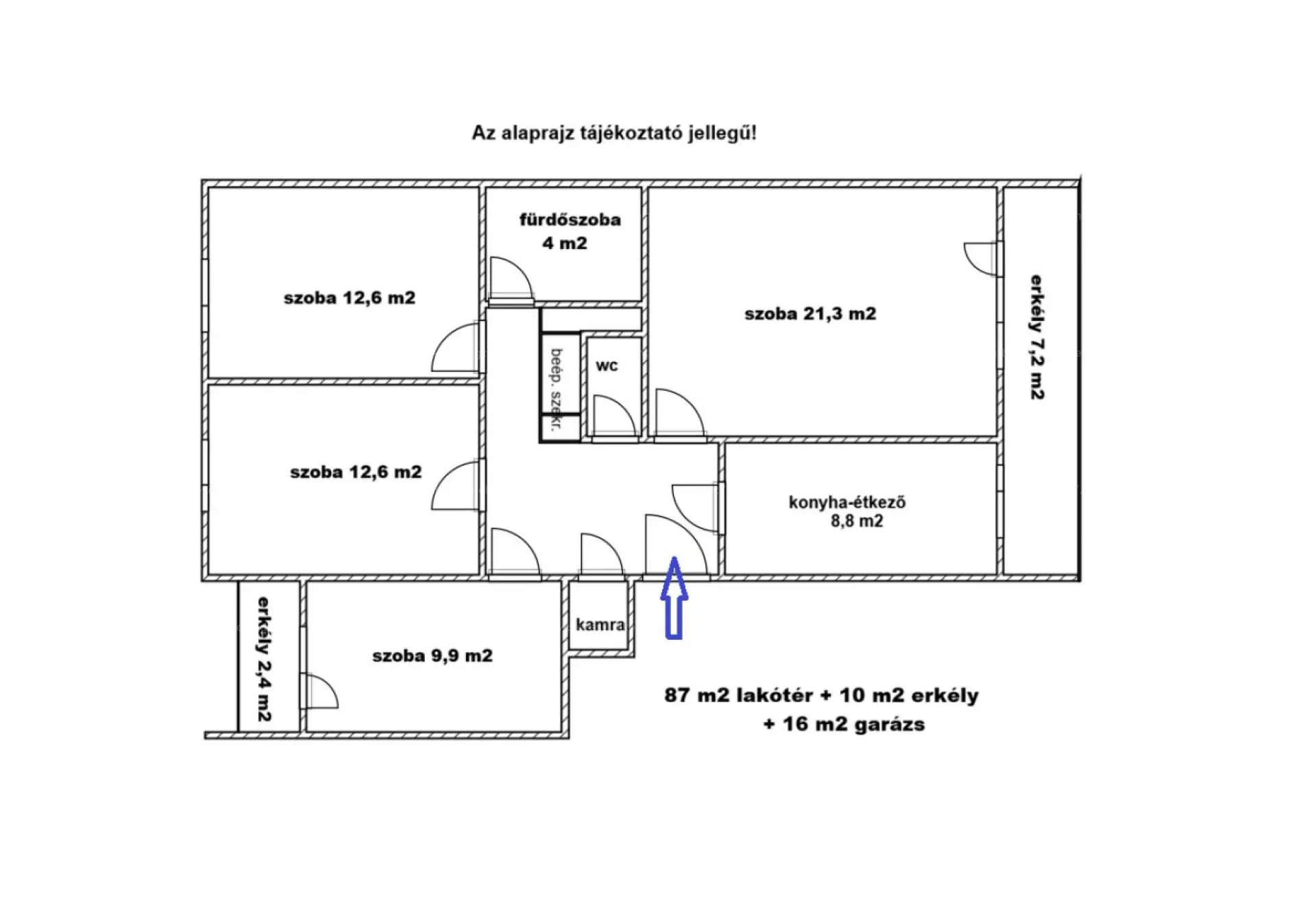
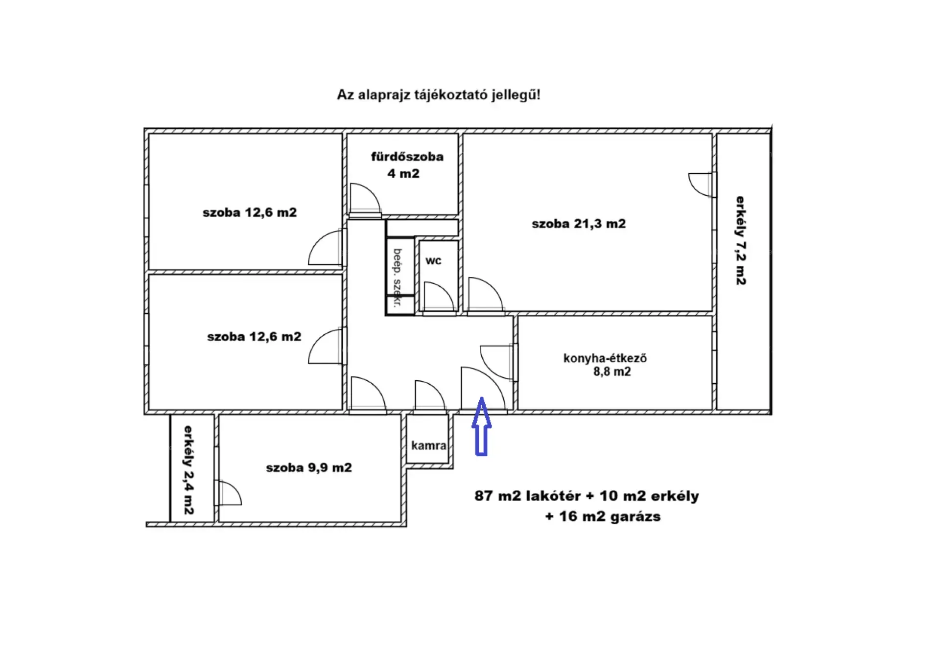
Alapterület
87m2
Szobák
4
Erkély
10m2

Prémium hitelajánlat

Önrész
info
15 600 000 Ft
+
Hitelösszeg
info
62 400 000 Ft
=
Havi törlesztő
info
484 643 Ft/hó

Eladó lakás (csúszózsalus)

Alapterület
87 m²
Erkély terület
10 m²
Tartozik hozzá kert
Nincs
Szobák száma
4
Fűtés
Gázkonvektor
Ingatlan állapota
Felújítandó
Építés éve
1973
Épület szintjei
4 szintes
Emelet
Földszint
Pince
Nincs
Lift
Nincs
Napelem
Nincs
Szigetelés
Van
Parkolóhely
Önálló garázs
Kilátás
Udvari
Légkondicionált
Nem
Tájolás
Nyugati
Panelprogramos
Nem

Leírás

🏨Egerben, a Hatvani hóstyán 4 SZOBÁS, 87 m2-s, 2 erkélyes, MAGASFÖLDSZINTI lakás, 16 m2-s GARÁZZSAL EGYÜTT – forgalommentes utcában eladó.

✅Az ingatlan - állapotát tekintve – igény szerint felújítandó, átalakítható.
✅Nyílászárók: ablakai műanyagok, redőnyösek (2010), beltéri ajtók: eredeti műanyag ajtók.
✅Fűtése: gázkonvektoros, de lehetőség van gázcirkó kialakítására.
✅Az alaprajzon látható a jó elrendezés, 4 külön nyíló, nem pici szobák, a wc külön helyiségben van a fürdőszobától, kamra, egy K-i fekvésű kisebb és egy Ny-i fekvésű nagyobb erkély.
✅Az épület 4 szintes, 1973-ban épült, csúsztatott zsalus, szigetelt (2008).
✅A lakásra jutó közös költség mindössze 11.800 ft. Az épületen minden karbantartást, felújítást elvégeztek: tető, homlokzati szigetelés, színezés, közös áramhálózat egészen a lakásokig, közös csővezetékek cseréje megtörtént.
✅A környezet rendezett, a lakóközösség igényes.
✅Az ingatlanhoz tartozik egy 16 m2-s garázs – közvetlenül a lakás alatt -, mely külön nem értékesíthető.
✅Elhelyezkedése: pár perc sétára a Belváros, buszmegálló, bolt, iskola, óvoda, Érsekkert.
👉Igény szerinti felújítása után a lakás nagyobb család kényelmes otthona lehet.
🔴Tehermentes, azonnal birtokba vehető -, rugalmasan megtekinthető, kulcsos ingatlan.
👉Kérdéssel, megtekintéssel kapcsolatban kérem, hogy telefon keressen.
‼️ Ár: 78,0 M ☎️ 30/2295-301
További képek: https://ingatlan.com/35129188

Térkép

Eger

Bűnügyi térkép

Tegzes Ildikó Referens
Telefonszám +3630229
abcd