https://minositettingatlanok.hu/hu/ingatlan/1763042
Pataky Sándor Referens
36703206970
QR kód

Szigetszentmárton

78 millió Ft

838 710 Ft/m²
Alapterület
93m2
Telek
380 m²
Szobák
3

Eladó ház (ikerház)

Alapterület
93 m²
Telekterület
380 m²
Tartozik hozzá kert
Van
Szobák száma
3
Energetikai tanúsítvány
A++
Ingatlan állapota
Új építésű
Építés éve
2025
Épület szintjei
Földszintes
Pince
Nincs
Tetőtér
Beépíthető
Lift
Nincs
Napelem
Nincs
Szigetelés
Van
Parkolóhely
Udvari beálló
Kilátás
Kertre néző
Légkondicionált
Nem
Tájolás
Dél-nyugati
Panelprogramos
Nem

Leírás

Szigetszentmártonban, Budapest déli agglomerációjában, 20 km-re kínálunk CSALÁDBARÁT, KIVÁLÓ elhelyezkedésű ikerház-lakcsoportban még öt leköthető lakást. A település a Ráckeve–Soroksári Duna partján fekszik, csendes, NYUGODT környéken, jó helyen.

A lakások főbb adatai:
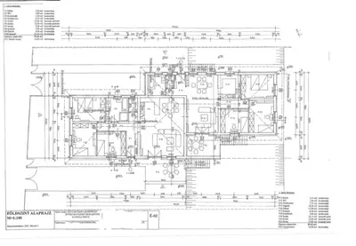
- Hasznos alapterület: 93,00 m2 és 89,45 m2.
- Teraszok: 14,25 m2 és 10,58 m2 (nyitott), telek: 380 m2 lakásonként.
- Elrendezés: három szoba, nagy előtér, külön WC, fürdőszoba WC-vel, amerikai stílusú konyha-étkező és tágas nappali. A TERASZ alkalmas szabadtéri étkezésre.

Műszaki jellemzők:
- TÉGLAÉPÍTÉS, 15 cm hőszigetelő réteg; betoncserép tetőfedés.
- Szobák: laminált parketta; hideg helyiségek: padlócsempe.
- Fűtés és melegvíz: gázcirkó, radiátoros és padlófűtéses megoldás — ENERGIATAKARÉKOS üzemeltetési lehetőség.
- Átadás: 2025 vége.

Környék és szolgáltatások:
- Iskola, óvoda a településen; Ráckevén gimnázium, Lidl, Penny, Tesco, uszoda és további üzletek, szórakozási lehetőségek.
- Közlekedés: HÉV és buszmegálló közelében, a főváros könnyen elérhető.

A kivitelező MEGBÍZHATÓ, számos hibamentesen átadott házzal a körzetben. Hitellehetőség: 3% és egyéb kedvezményes konstrukciók; irodánk tapasztalt hitelügyintézői és rutinos ügyvédek segítik a folyamatot. Gyermekes családoknak PRAKTIKUS választás. Érdeklődés és bemutatás hét minden napján – hívjon bizalommal.