https://minositettingatlanok.hu/hu/ingatlan/1722355
Belicza Tünde Referens
36706133029
QR kód

Budapest, XI. kerület

420 millió Ft

6 614 173 Ft/m²
Alapterület
61m2
Szobák
3
Erkély
5m2

Kiadó lakás (tégla építésű)

Alapterület
61 m²
Erkély terület
5 m²
Tartozik hozzá kert
Nincs
Szobák száma
3
Fűtés
Gázkazán
Ingatlan állapota
Felújított
Építés éve
1970
Épület szintjei
3 szintes
Emelet
Földszint
Pince
Nincs
Lift
Nincs
Napelem
Nincs
Szigetelés
Nincs
Parkolóhely
Udvari beálló
Kilátás
Kertre néző
Légkondicionált
Igen
Tájolás
Dél-nyugati
Panelprogramos
Nem

Bérlési adatok

Költözhető
Dátum megadása
Költözhető dátum
.

Leírás

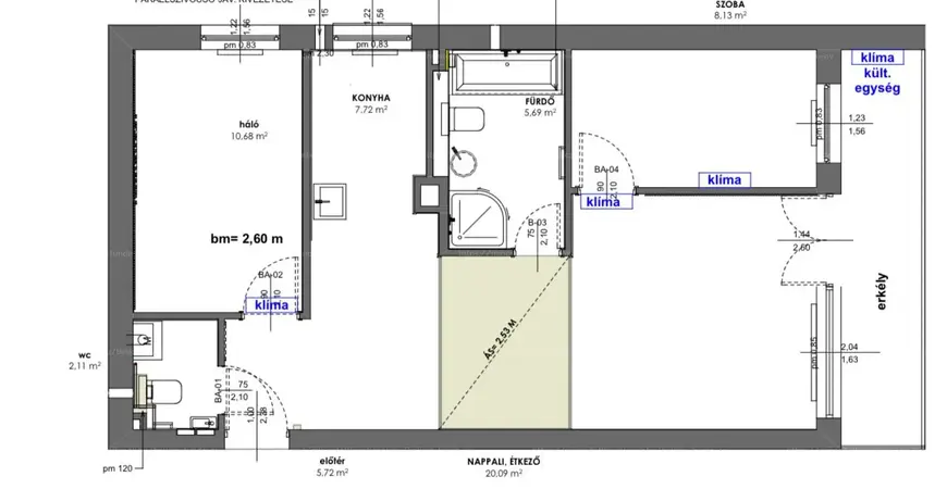
Gellérthegy tetején várja lakóját ez a lakberendező tervei alapján készült és mentesen, modern stílusban felújított, 61 nm-es, nappali+ 2 szobás, erkélyes, csendes lakás. A társasház a Kelenhegyi úton helyezkedik el, távolabb az úttól, így csendes és nagyon hangulatos férfás környezetben, a hátsó kapun keresztül közvetlenül a Gellért- hegy parkjába tudunk menni, így a lakást azoknak ajánlanám, akiknek fontos a természet közelsége, imádnak a panorámát nézni, mégis fontos a város közelsége. A Mom Park, Alle, Erzsébet híd 5-7 perces autóúttal elérhető, de ezek gyalog sincsenek messze, a 27-es busz pedig a ház előtt áll meg. A lakás a a földszinten található, de mivel padlófűtéssel van ellátva, így nem hideg. Belépve egy előszobába érkezünk, beépített szekrény biztosítja a kabátok, cipők tárolását. Szemben a hálószoba található, mely kényelmes méretű, parkra néző, így madárcsicsergésre ébredhetünk. Tovább haladva az étkező-konyha nappali rész következik. A konyha modern, teljesen felszerelt: hűtő, mosogatógép, villanytűzhely és főzőlap, elszívó, sok tárolási lehetőséggel, ablakkal. A nappaliból jutunk ki a tágas erkélyre, mely hangulatosan van berendezve, tökéletes helyszínt biztosít a reggelihez, a vacsorához vagy esti borozgatáshoz. Innen nyílik még egy kisebb szoba, mely dolgozószobaként és vendégszobaként is használható. Egy nagy méretű és gyönyörű fürdőszoba került kialakításra még káddal és zuhanyfülkével, illetve tükörmögötti rejtett, nagy szekrénnyel, ezenkívül a bejárat mellett még egy külön mellékhelyiség kézmosóval felszerelve, illetve a mosógép is itt kapott helyet. A lakás teljesen bútorozott, minőségi, új bútorokkal, így ide az új lakónak csak a bőröndjét kell hoznia. Magára és környezetére igényes bérlőt várunk akár egyedülállók, akár párok számára. Kisállat és dohányzás nem megengedett a lakásban.
Műszaki:
Fűtés: cirkó gázkazán és padlófűtés
- Klíma
- Bútorozott és gépesített
- Műanyag ablakok, redőnnyel, szúnyoghálóval ellátva
- Közösköltség: 23.220 Ft
- Víz, villany, gáz: egyedi mérőórák alapján
a Parkolásra a ház udvarában van lehetőség egy véges számú helyen (érkezési sorrend szerint), illetve az utcán a fizetős parkolóban lehet parkolni.
Feltételek:
2025. december 1- től, minimum 1 éves bérleti szerződés, 2 havi kaucióval+ első havi bérleti díjjal azonnal költözhető az ingatlan. Bele fog szeretni a környezetbe és a lakásba is, ezért jöjjön el minél hamarabb, ne szalassza el ezt a lehetőséget!