https://minositettingatlanok.hu/hu/ingatlan/1543568
Szvett Bianka Referens
36704542366
QR kód

Budapest, V. kerület

398 millió Ft

3 864 078 Ft/m²
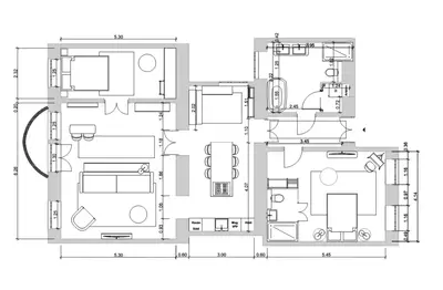
Alapterület
103m2
Szobák
3

Eladó lakás (tégla építésű)

Alapterület
103 m²
Tartozik hozzá kert
Nincs
Szobák száma
3
Fűtés
Gázkazán
Ingatlan állapota
Felújított
Építés éve
1894
Épület szintjei
3 szintes
Emelet
2. emelet
Pince
Nincs
Lift
Nincs
Napelem
Nincs
Szigetelés
Nincs
Parkolóhely
Utca, közterület
Kilátás
Utcai
Légkondicionált
Igen
Tájolás
Keleti
Panelprogramos
Nem

Leírás

A LAKÁSBAN A KLASSZIKUS ÉS BOHÉM RÉSZLETEK SIMULNAK ÖSSZE ELEGÁNS EKLEKTIKÁBAN ÚJRAÉRTELMEZVE EZZEL A NAGYPOLGÁRI STÍLUST.

A lakás Budapest történelmi belvárosának egyik legszebb macskaköves utcájában található, egy 130 éves műemlékvédelem alatt álló ház második emeletén.
A lakás teljes körű felújításon esett át, lakberendező által tervezett exkluzív belsőépítészeti megoldásokkal és berendezéssel. A felújítás során teljes műszaki és esztétikai csere történt a legmagasabb minőségben az alapoktól.
-Teljes elektromos hálózat csere
-Korszerű gáz cirkó fűtés, és új radiátorok kiépítése (Viessmann kazán)
-Hűtő/fűtő klíma kialakítása
-Teljes vízvezeték csere és új fürdőszobák kialakítása
A nyílászárók az épület eredeti borovi fenyő ablakai, melyek az eredeti állapotában restaurálásra kerültek és kétrétegű hővédő üvegezéssel lettek ellátva. A falak az épület és a lakás korszellemének megfelelően elegáns díszítést kaptak, valamint az előszobában és a konyhában angol fal fa burkolat lett kialakítva.
A konyhabútor egyedileg gyártatott, AEG illetve Electrolux konyhagépekkel felszerelt, valódi kő konyhapulttal, gránit mosogató medencével. A konyhában beépített víztisztító adagolja a konyhai csaptelepen keresztül az ivóvizet.
Két külön fürdőszoba került kialakításra, a kisebb közvetlen hálószoba kapcsolattal rendelkezik. A nagyobbik fürdőszoba az otthoni wellness szerepét tölti be, tágas méretei, a szabadon álló fürdőkád, és az egyedi épített zuhanyzó a relaxációnak ad teret. Itt található egy külön háztartási helyiség is, ahol helyt kapott a mosógép és egy plusz bojler gondoskodik a kifogyhatatlan meleg víz ellátásról.
A kisebbik hálószoba az utcára néz, mégis csendes a második emeleti elhelyezkedésének köszönhetően. Az egyik falán padlótól mennyezetig egy hatalmas gardrób szekrény került beépítésre.
A nagyobbik hálószoba udvari nézetű, és jól szeparált, saját fürdővel, akár egy kis önálló apartman az ingatlanban.

A lakás alapterülete: 103 m2 + az erkély mérete.
A közös költség: 42.000 Ft, mely tartalmazza a vízfogyasztást.

A lakás közvetlen közelében az Egyetem tér, a Váci utca, a Vásárcsarnok, és a Duna-part.
Számtalan étterem, kávézó, és bár, valamint bevásárlási lehetőség található karnyújtásnyira az ajtón kilépve.
A parkolás helyi lakos kártyával ingyenesen a közterületen biztosított, vagy lehetőség van mélygarázs bérlésére a környéken.

További információért és megtekintés miatt keressen bizalommal a hét bármely napján!