https://minositettingatlanok.hu/hu/ingatlan/1311765
Molnár Szabolcs Referens
36305763117
QR kód

Felsőörs

200 millió Ft

1 010 101 Ft/m²
Alapterület
198m2
Telek
900 m²
Szobák
7

Eladó ház (családi ház)

Alapterület
198 m²
Telekterület
900 m²
Tartozik hozzá kert
Van
Szobák száma
7
Fűtés
Hőszivattyú
Ingatlan állapota
Befejezetlen
Építés éve
2025
Épület szintjei
2 szintes
Pince
Nincs
Tetőtér
Beépíthető
Lift
Nincs
Napelem
Van
Szigetelés
Van
Parkolóhely
Udvari beálló
Kilátás
Udvari
Légkondicionált
Nem
Tájolás
Dél-keleti
Panelprogramos
Nem

Leírás

Eladó egy 198 m²-es családi ház Felsőörsön, amely kiválóan alkalmas két generáció számára, vagy akár befektetésnek. Az ingatlan két külön lakásként is megvásárolható, mindkettő saját mérőórákkal, és a kialakítás miatt ideális választás gyermekes családoknak is vagy 2 külön család számára is.

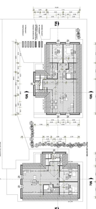
Az ingatlan felépítése: (A épület)

Földszint: 103 m² + 4 m² terasz, 3 hálószoba, 1 amerikai konyhás nappali, fürdőszoba WC-vel
Emelet: 95 m², 2 hálószoba, 1 amerikai konyhás nappali, fürdőszoba WC-vel
Gépjárműveknek udvari beálló

Műszaki tartalom és kivitelezés (FONTOS, HOGY A JELENLEGI 200.000.000 Ft-OS ÁLLAPOTBAN NINCS BENNE MINDEN AMI A MÚSZAKI TARTALOMBAN SZEREPEL, részletek lentebb)

-30-as PTH falazat, 15 cm grafitos hőszigeteléssel, minőségi homlokzatburkolat
-Szigetelt, magas minőségű nyílászárók
-Hő- és hangszigetelt levegő-levegő hősziavattyús fűtési rendszer
-Telefonról vezérelhető, termosztáttal ellátott padlófűtés
-Okos villany- és kamerarendszer, elektromos redőnyök és kapu
-Prémium biztonsági bejárati ajtók
-Kültéri, 3x8 méteres medence hőszivattyúval, exkluzív szaletli
-Hangulatos, tágas terasz, esztétikus viacolor burkolatú udvar és kocsibeálló
-Kiváló energetikai besorolás, alacsony rezsiköltségek
-Napelem rendszer a villamosenergia megtakarításához
-Kedvező hitel lehetőség (CSOK, zöldhitel)

Megbízható, referenciákkal rendelkező kivitelező cég

Természeti környezet és helyszínek:
Forrás-hegyi Geológiai Bemutatóhely és Tanösvény – nemzetközi jelentőségű földtani helyszín
Malom-völgy, Királykúti-völgy – népszerű túraútvonalak a Balaton-felvidéken

Elhelyezkedés:
Nyugodt, zöld környezet, mégis közel az infrastruktúrához, így a mindennapi élethez szükséges létesítmények könnyedén elérhetőek. Továbbá, a környék kínálata számos szabadidős tevékenység, mint például kiránduási és sportolási lehetőségek széles skáláját is lehetővé teszi az itt élők számára.

Veszprém: 10 km
Balaton: 5 km

Árak és vásárlási lehetőségek:

Teljes ingatlan: Jelenlegi állapotában 200.000.000 Forint (további 15M Ft a parkosítás, medence, kerítés és további 15M Ft a teljes befejezés ami magába foglalja a festést, lámpák felhelyzését, fürdőszobák burkolását, szanitrezését)
Befejezett állapotban, medencével: 230.000.000 Forint

Külön értékesítéssel:

Alsó lakás: 125 millió Ft befejezett állapotban, medencével
Felső lakás: 105 millió Ft befejezett állapotban 

Ez a ház ideális választás nyaralásra vagy állandó otthonnak.
Ne hagyd ki ezt a kivételes lehetőséget! Érdeklődj még ma!