Kistarcsa

110 millió Ft
952 381 Ft/m²
Alapterület
115m2
Telek
566 m²
Szobák
5

Prémium hitelajánlat

Önrész
info
22 000 000 Ft
+
Hitelösszeg
info
88 000 000 Ft
=
Havi törlesztő
info
683 471 Ft/hó

Eladó ház (ikerház)

Alapterület
115 m²
Telekterület
566 m²
Erkély terület
1 m²
Tartozik hozzá kert
Van
Szobák száma
5
Fűtés
Gázkonvektor
Energetikai tanúsítvány
C
Ingatlan állapota
Újszerű
Építés éve
2006
Épület szintjei
2 szintes
Pince
Nincs
Tetőtér
Nem beépíthető
Lift
Nincs
Napelem
Nincs
Szigetelés
Nincs
Parkolóhely
Önálló garázs
Kilátás
Utcai
Légkondicionált
Igen
Tájolás
Dél-nyugati
Panelprogramos
Nem

Leírás

Eladó ház Kistarcsán- Zsófialiget kertváros részen – 115 m2, garázzsal, 3 hálószobával és amerikai konyhás nappalival!

Telek mérete: 566 m2
Lakás mérete: 115 m2
Garázs: 14 m2

Eladó Kistarcsán n egy összkomfortos, per- és tehermentes ingatlan, osztatlan közös tulajdonban, de két önálló, teljesen külön bejáratú lakás található a telken.
A használati megosztás ügyvédi megosztóval rendezett, így a tulajdonviszonyok egyértelműek és biztonságosak.

Az 566 nm-es telek gondozott, csendes környezetben található egy zsákutcában, ideális családoknak vagy akár két generáció együttélésére is.
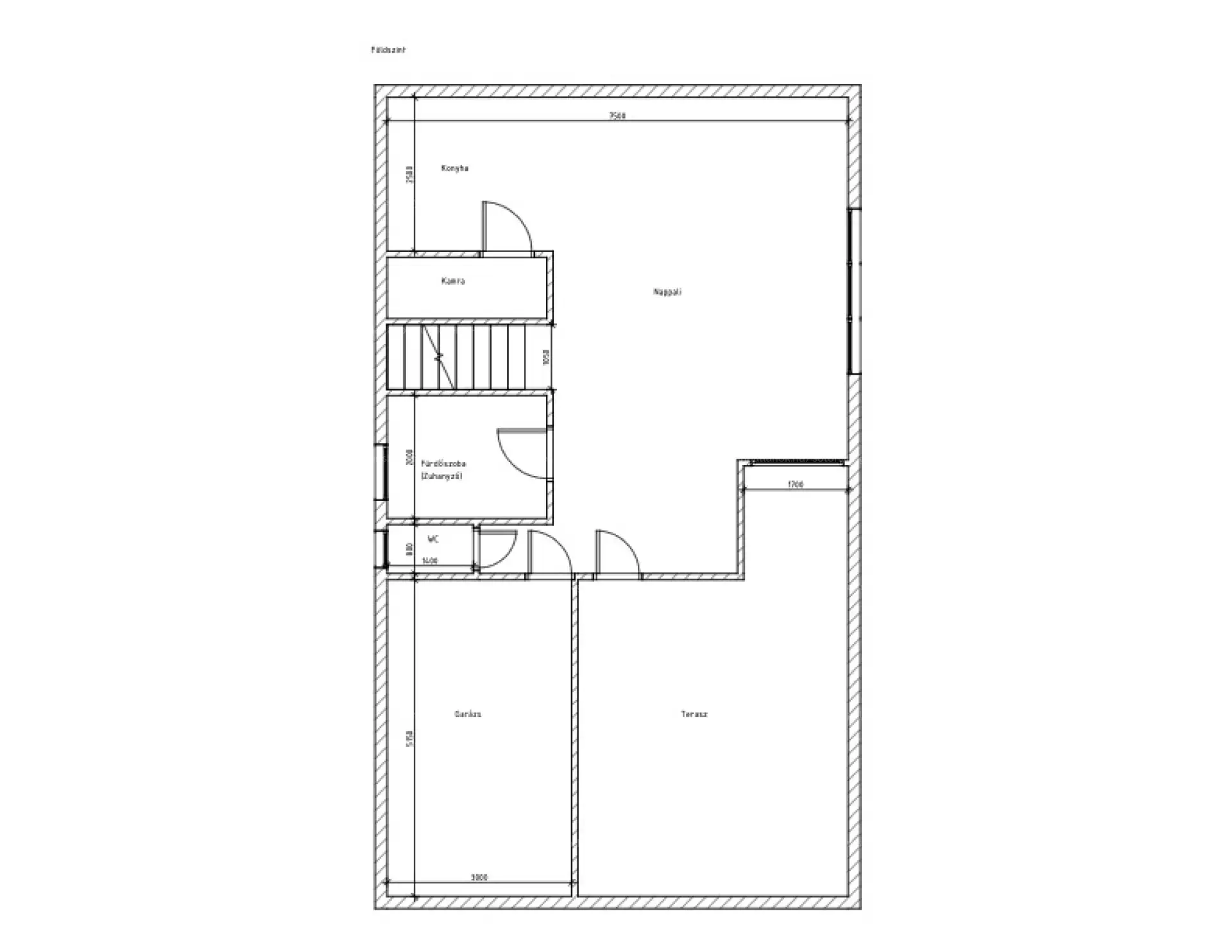
A 115,13 nm-es lakás kétszintes elrendezésű:
Földszinten: tágas amerikai konyhás nappali, étkező, valamint fürdőszoba és háztartási helyiség.
Emeleten: 3 hálószoba, gardrób és további fürdőszoba.
Riasztó és 4k kamarendszer a házban beszerelve
Alacsony rezsi
Kerti tó

A 14 m2-es garázs kényelmes parkolási lehetőséget biztosít.
Az ingatlan összkomfortos, minden közművel ellátott, azonnal költözhető állapotban van.

További információk: Sótonyi Ágnes +36705609837

Térkép

Kistarcsa

Bűnügyi térkép

Sótonyi Ágnes Referens
Telefonszám +3670560
abcd