https://minositettingatlanok.hu/hu/ingatlan/1098155
Náfrádi Antal Referens
36309315351
QR kód

Szeged

112 millió Ft

903 226 Ft/m²
Alapterület
124m2
Szobák
3

Eladó lakás (tégla építésű)

Alapterület
124 m²
Tartozik hozzá kert
Nincs
Szobák száma
3
Fűtés
Gázkazán
Ingatlan állapota
Felújított
Építés éve
1910
Épület szintjei
4 szintes
Emelet
1. emelet
Pince
Nincs
Lift
Van
Napelem
Nincs
Szigetelés
Nincs
Parkolóhely
Önálló garázs
Kilátás
Utcai
Légkondicionált
Igen
Tájolás
Dél-nyugati
Panelprogramos
Nem

Leírás

Szeged, Szent István téren, gyönyörű kilátással az iparművészeti műemlék víztoronyra és az azt körül vevő parkosított térre, ikonikus épületben 3 szobás polgári stílusú lakás eladó.

Nagypolgári stílus, tágas, világos terek kedvelőinek.

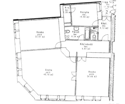
A műemléki védettség alatt álló, igényesen felújított Móricz-ház magasföldszintjén helyezkedik el a 124 m2-es tágas lakás. Előszoba, közlekedő, 3 tágas szoba, konyha, kamra, 2 fürdőszoba, egy kádas és egy zuhanyzós, valamint külön WC alkotja. Biztonságát riasztórendszer felügyeli.

A kellemes hőérzetről gáz-cirkó fűtés, radiátor hőleadókkal, míg nyáron 4 db klíma gondoskodik.

Tájolása délnyugat-északnyugat, melytől egész nap világos, napfényes.

Besorolása társasházi lakás, de jelenleg irodaként van hasznosítva, mely könnyedén visszaállítható lakásra.

Igény szerint szimpla, vagy dupla garázs is vásárolható hozzá.

Itt aztán karnyújtásnyira van minden lehetőség, melyet egy nyüzsgő egyetemi város belvárosa nyújthat! Bevásárló és szórakozóhelyek, színház, mozi, éttermek, egyetemi épületek, hivatali ügyintézések.

Az ingatlan tehermentes, a költözés rövid időn belül megoldható.
Ügyfeleimnek térítésmentes konzultáció lehetőséget biztosítok hitelszakértővel, CSOK és hitel ügyben.