Besnyő

79 millió Ft
675 214 Ft/m²
Alapterület
117m2
Telek
450 m²
Szobák
5

Prémium hitelajánlat

Önrész
info
15 800 000 Ft
+
Hitelösszeg
info
63 200 000 Ft
=
Havi törlesztő
info
493 298 Ft/hó

Eladó ház (ikerház)

Alapterület
117 m²
Telekterület
450 m²
Tartozik hozzá kert
Van
Szobák száma
5
Fűtés
Hőszivattyú
Ingatlan állapota
Új építésű
Építés éve
2025
Épület szintjei
2 szintes
Pince
Nincs
Tetőtér
Beépített
Lift
Nincs
Napelem
Van
Szigetelés
Van
Parkolóhely
Udvari beálló
Kilátás
Udvari
Légkondicionált
Nem
Tájolás
Dél-keleti
Panelprogramos
Nem

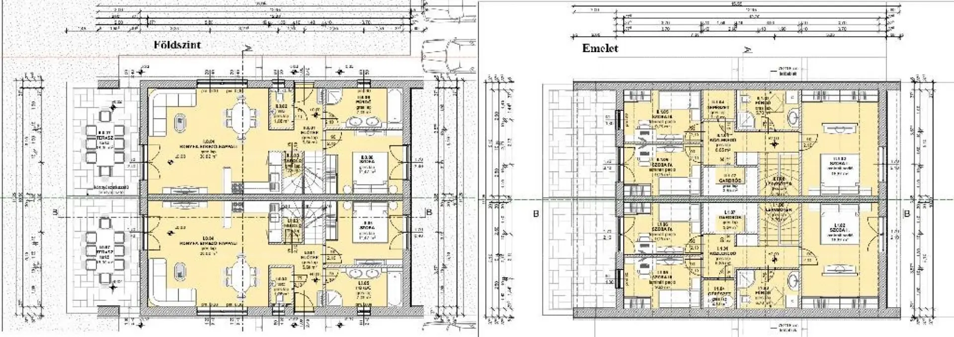
Leírás

Fejér vármegyében, Besnyő településen, egy 450 m²-es telken kerül kivitelezésre ez a 117 m²-es, kétszintes ikerház, amely a modern otthonok kényelmét és a korszerű műszaki megoldásokat ötvözi.

🔋 Energiahatékonyság & fenntarthatóság:
Az építkezés során kiemelt hangsúlyt kap a gazdaságos üzemeltetés:
☀️ 10 kW-os napelemrendszer
❄️ Léghőszivattyús fűtés
🔥 Padlófűtés a teljes házban
💧 Melegvíz ellátás villanybojlerrel
→ Költséghatékony, hosszú távon is fenntartható működés

🏠 Átgondolt, élhető alaprajz:

Földszint:
• 30 m²-es amerikai konyhás nappali, közvetlen kijárattal a fedett teraszra és oldalkertre
• Előtér
• Külön WC
• 7 m²-es fürdőszoba
• 11 m²-es hálószoba, az előkert irányába tájolva

Tetőtér:
• 3 hálószoba (1 db nagyobb, 2 db kisebb)
• Tetőtéri fürdőszoba
• Gépészeti helyiség
• Gardrób
• Közlekedő

🏗️ Műszaki kivitel:
• Tégla falazat
• Nyeregtető cserépfedéssel
• 3 rétegű hőszigetelt nyílászárók
• Alumínium ereszcsatorna
→ Időtálló, minőségi építési megoldásokkal

🌳 Környezet & elhelyezkedés:
A település csendes és biztonságos, a környezet családbarát.
🚗 Az M6-os autópálya könnyű elérhetősége miatt kiváló a közlekedés mind Budapest, mind a környező városok irányába.
→ Ideális választás családalapítóknak és kisgyermekes családoknak.

🏦 Teljes körű ügyintézési támogatás:
Ügyfeleink számára:
✔️ díjmentes hitelügyintézés
✔️ szükség esetén tapasztalt ügyvédi háttér
✔️ piaci hitelek esetén egyedi kamatlehetőség

📞 Bővebb információért, illetve megtekintés egyeztetéséhez kérem, keressen bizalommal!
Örömmel állok rendelkezésére. 😊

💰 Ár: 79 000 000 Ft
#️⃣ M311670

Bocsor István
📞 +36-70-622-8493
📩 istvan.bocsor@otpip.hu

Térkép

Besnyő

Bűnügyi térkép

Bocsor István Referens
Telefonszám +3670622
abcd