https://minositettingatlanok.hu/hu/ingatlan/0696517
Náfrádi Antal Referens
36309315351
QR kód

Szeged

94.9 millió Ft

750 198 Ft/m²
Alapterület
105m2
Telek
837 m²
Szobák
3

Eladó ház (családi ház)

Alapterület
105 m²
Telekterület
837 m²
Erkély terület
43 m²
Tartozik hozzá kert
Van
Szobák száma
3
Fűtés
Gázkazán
Ingatlan állapota
Felújított
Építés éve
1990
Épület szintjei
Földszintes
Pince
Van
Tetőtér
Beépíthető
Lift
Nincs
Napelem
Van
Szigetelés
Van
Parkolóhely
Önálló garázs
Kilátás
Utcai
Légkondicionált
Igen
Tájolás
Keleti
Panelprogramos
Nem

Leírás

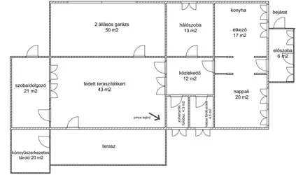
Szeged kertvárosában, Hattyas központi részén, kiváló helyen igényesen felújított és karbantartott 105 m2-es önálló családi ház eladó.

Központi tere a tágas amerikai konyhás nappali, modern konyhával. Ezen túl előszoba, közlekedő, egy kádas és egy zuhanyzós fürdőszoba, valamint hálószoba alkotja a főépületet. Folytatásában igazán sokrétűen kihasználható 43 m2-es fedett terasz lett kialakítva jakuzzival. Innen nyílik egy jelenleg dolgozónak használt, az utcai udvar rész felől önállóan is megközelíthető szoba, valamint egy 9 m2-es száraz pince. Kényelmes beállást biztosító kétállásos garázs szolgál az autók tárolására, mely a lakás felől is megközelíthető.
A ház téglából épült 837 m2-es telekre. Az udvari oldalon kb. 15 m2-es fedett terasz készült a pihenéshez, baráti összejövetelek színhelyéül. A kert füvesített, díszfákkal, virágokkal díszített, elől térkövezett.
A kerti szerszámok részére nagyméretű tároló áll rendelkezésre.

A megfelelő hőmérsékletről télen gáz-cirkó fűtés új kondenzációs kazánról, míg nyáron 3 db. klíma gondoskodik. A költségek minimalizálásában 3,5 kW teljesítményű napelem segít. A mennyezeti és a 15 cm-es kőzetgyapot homlokzati hőszigetelésnek köszönhetően kedvező rezsivel üzemeltethető.

A ház biztonságát kamera és riasztórendszer felügyeli.

Kiváló minőségű anyagok felhasználásával és gondos kivitelezéssel végezték a felújításokat, így szép, beköltözhető állapotban várja új gazdáját.

Az ár tartalmaz számos beépített bútort és háztartási gépet, ezzel jelentősen megkönnyítve a költözés költségeit és fáradalmait. A ház mérete és elosztása lehetőséget biztosít más elrendezés, vagy szobaszám kialakítására.

Az ingatlan tehermentes, költözés megegyezés szerint.

Ügyfeleimnek térítésmentes konzultáció lehetőséget biztosítok hitelszakértővel, CSOK és hitel ügyben.