Budapest, I. kerület

139.9 millió Ft
1 351 691 Ft/m²
Alapterület
102m2
Szobák
3
Erkély
3m2

Prémium hitelajánlat

Önrész
info
27 980 000 Ft
+
Hitelösszeg
info
111 920 000 Ft
=
Havi törlesztő
info
869 251 Ft/hó

Eladó lakás (tégla építésű)

Alapterület
102 m²
Erkély terület
3 m²
Tartozik hozzá kert
Nincs
Szobák száma
3
Fűtés
Gázkazán
Energetikai tanúsítvány
B
Ingatlan állapota
Közepes állapotú
Építés éve
1919
Épület szintjei
7 szintes
Emelet
5. emelet
Pince
Nincs
Lift
Van
Napelem
Nincs
Szigetelés
Nincs
Parkolóhely
Utca, közterület
Kilátás
Panorámás
Légkondicionált
Igen
Tájolás
Dél-nyugati
Panelprogramos
Nem

Leírás

Budapest I. kerületében, közvetlenül a Vérmező park szomszédságában kínálunk eladásra egy világos, tágas, ötödik emeleti lakást, mely 102 m² alapterületű és rendelkezik egy 3 m²-es erkéllyel. A ház rendezett, karbantartott és liftes társasház, klasszicista stílusú homlokzattal.

A lakás átlag állapotban van, de a jó szerkezeti adottságai miatt modernizálható vagy átalakítható. A jelenlegi elrendezés két fürdőszobát, három nagyméretű szobát, konyhát, előszobát, kamrát és külön WC-t foglal magában – minden teret jól kihasználva, élhető környezetet eredményezve.

A lakás főbb jellemzői:
- fűtés: gáz cirkó, radiátoros hőleadókkal
- redőnnyel szerelt, fa dupla üveges nyílászárók
- légkondicionált lakás
- két külön bejárat, így akár két lakásra is bontható,
- erkély, ahonnan a Vérmező zöld fáira nyílik kilátás
- 5. (legfelső) emeleten található, lifttel.

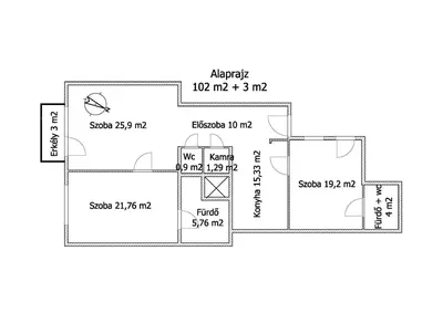
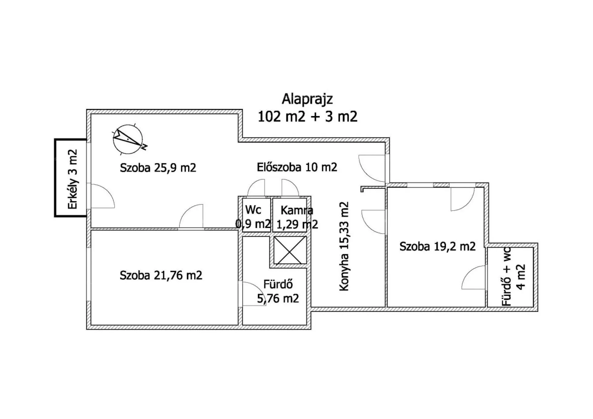
Az alaprajz alapján a lakás a következő elrendezést mutatja:
- 25,9 m²-es szoba
- 21,76 m²-es szoba
- 19,2 m²-es szoba
- konyha: 15,33 m²
- előszoba: 10 m²
- fürdő: 5,76 m²
- 4 m²-es fürdőszoba + WC
- 0,9 m²-es külön WC
- 1,29 m²-es kamra
- erkély: 3 m².

Környezet és elhelyezkedés:
Az Attila út mindössze a Budai Vár és a Vérmező park közvetlen közelében található, zöld, csendes környezetben, mégis kiváló közlekedéssel (Széll Kálmán tér, Déli pályaudvar, buszok, villamosok néhány perc sétára). A környék történelmi és kulturális jelentőségű, rendezett és biztonságos lakókörnyezettel.

Lehetőségek és előnyök:
A dupla bejárat következtében az ingatlan ideális lehetőséget kínál az ingatlanbefektetők számára:
- a lakóegységből többet is létrehozható
- rövid és hosszú távú kiadásra is alkalmas,
- vagy akár otthon és iroda funkció is megvalósítható.

A lakás tehermentes és azonnali birtokba vétellel eladó!

Térkép

Budapest, I. kerület

Bűnügyi térkép

Leskó Zoltán Referens
Telefonszám +3630203
abcd