Vámosszabadi

70.9 million HUF
1 035 036 HUF/m²
Floor Area
62m2
Rooms
3
Balcony
13m2

Premium Loan Offer

Down Payment
info
14 180 000 HUF
+
Loan Amount
info
56 720 000 HUF
=
Monthly Installment
info
442 719 HUF/month

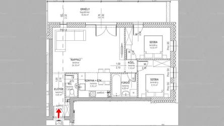
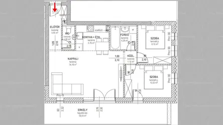
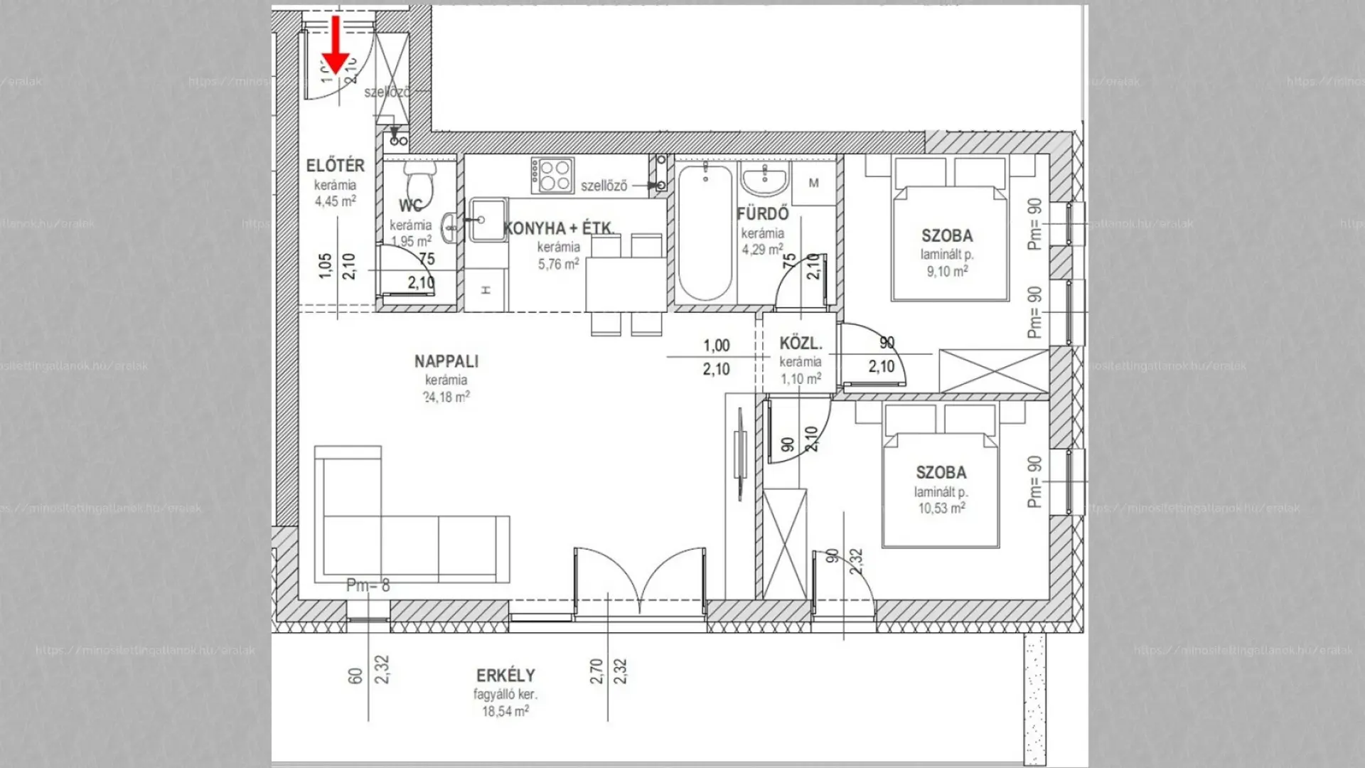
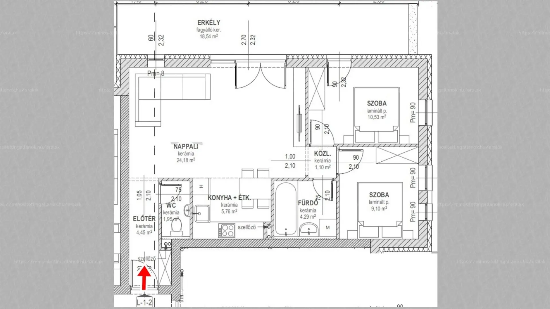
For sale apartment (brick-built)

Floor Area
62 m²
Balcony Area
13 m²
Has Garden
No
Number of Rooms
3
Heating
Heat Pump
Energy Certificate
A
Property Condition
Newly Built
Year of Construction
2025
Building Floors
3 Stories
Floor
1st Floor
Has Basement
No
Elevator
Yes
Solar Panel
No
Insulation
Yes
Parking Space
Courtyard Parking
View
Courtyard View
Air Conditioned
Yes
Orientation
Southwest
Panel Program
Yes

Description

Győr-Szitásdomb II. eladó amerikai konyhás nappali 2hálószobás nagy erkélyes ÚJ ÉPÍTÉSŰ lakások
horvathne.erika@eralak.hu
06203345534

Map

Vámosszabadi

Crime Map

EraLak Agent
Telefonszám +3620334
abcd