https://minositettingatlanok.hu/en/real-estate/8188683
Nagy-Patai Éva Agent
36307051871
QR kód

Cegléd

52.5 million HUF

709 459 HUF/m²
Floor Area
74m2
Plot
406 m²
Rooms
3

For sale house (family house)

Floor Area
74 m²
Plot Area
406 m²
Has Garden
Yes
Number of Rooms
3
Heating
Gas Convector
Property Condition
Good Condition
Year of Construction
1960
Building Floors
Single-story
Has Basement
No
Attic
property.house_attic.attic
Convertible Attic
Not Convertible
Elevator
No
Solar Panel
No
Insulation
No
Parking Space
Private Garage
View
Courtyard View
Air Conditioned
Yes
Orientation
Southeast
Panel Program
No

Description

CSENDES, KIVÁLÓ ELHELYEZKEDÉSŰ családi ház Cegléden – 74 m², 2+1 félszoba, 406 m²-es telken

Pest Vármegyében, Cegléden, a kórház közelében kínálunk eladásra egy 74 négyzetméteres, 2+1 félszobás családi házat. Az ingatlan CSENDES KÖRNYEZETBEN található, mégis MINDEN ELÉRHETŐ TÁVOLSÁGBAN van: óvoda, iskola, kórház és bevásárlási lehetőségek.

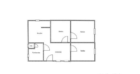
Az épület VEGYES FALAZATÚ, elrendezése PRAKTIKUS: előszoba, konyha, fürdőszoba külön WC-vel, nappali és két szoba alkotja a mindennapi használat szempontjából jól átgondolt teret. A 406 m²-es telek mérete kényelmesen kezelhető, a ház lakótere pedig hatékonyan kihasználható.

A fűtést GÁZKONVEKTOR biztosítja, továbbá HŰTŐ-FŰTŐ KLÍMA gondoskodik az évszakoknak megfelelő KOMFORT megteremtéséről. Az ingatlan ÖSSZKÖZMŰVES, így a közműellátottság teljes körű.

A környék nyugodt és rendezett, ami a mindennapi élet szervezését megkönnyíti, miközben a szükséges intézmények és szolgáltatások KÖZELBEN elérhetők. A ház kialakítása több élethelyzethez is IGAZODÓ, így széles kör számára lehet PRAKTIKUS választás.

Az OTP Ingatlanpont TELJES KÖRŰ ÜGYINTÉZÉSSEL áll az eladók és a vevők rendelkezésére, az adásvételi szerződéshez MEGBÍZHATÓ ÜGYVÉDI KÖZREMŰKÖDÉST biztosítva. Ha Cegléden, CSENDES, JÓ ELHELYEZKEDÉSŰ otthont keres, amelyben a FUNKCIONALITÁS és a KOMFORT adott, ez az ingatlan figyelmet érdemel.