https://minositettingatlanok.hu/en/real-estate/8185356
Eladomazotthonom.com Agent
36306983901
QR kód

Pécs

90.5 million HUF

680 451 HUF/m²
Floor Area
133m2
Rooms
5

For sale apartment (brick-built)

Floor Area
133 m²
Has Garden
Yes
Number of Rooms
5
Heating
Gas Boiler
Property Condition
Renovated
Year of Construction
1970
Building Floors
2 Stories
Floor
Ground Floor
Has Basement
No
Elevator
No
Solar Panel
No
Insulation
No
Parking Space
Street Parking
View
Courtyard View
Air Conditioned
Yes
Orientation
West
Panel Program
No

Description

Pécs belvárosában, az ikonikus Király utcában, de egy ősfás, zárt, nagy udvarban eladó ez a sok lehetőséget tartogató, jelenleg építészirodaként funkcionáló, de akár két teljesen külön lakás kialakítására is alkalmas, 2012-ben felújított ingatlan.

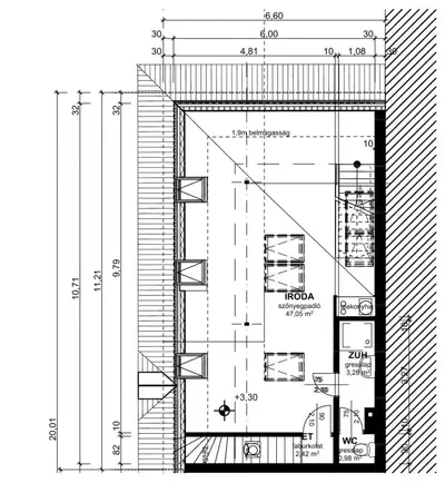
Az ingatlan főbejáratán egy tágas előtérben találjuk magunkat (ez akár váróként is hasznosítható, ha arra szükség lenne). Innen nyílik a földszinti lakrész, valamint egy lépcsőn innen lehet felmenni a felső lakrészbe.
Az alsó lakrész felé egy előtér/előszoba fogad minket, ahonnan már a legnagyobb légtérbe jutunk. Innen nyílik egy kisebb szoba (saját kijárattal az udvarra), melyhez egy kisebb gardrób is tartozik, valamint egy pihenősarkon/közlekedőn át a konyha és a fürdőszoba felé indulhatunk. Ezen alsó lakrész egy teljesen önálló lakásként is funkcionálhat.

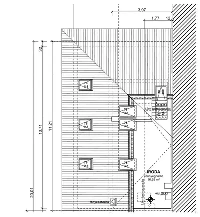
Az előtérből a lépcsőn felfelé indulva találjuk a fenti, nagyobb lakrészt, ahova belépve egy hatalmas, egy légterű, jelenleg irodaként működő helyiségben találjuk magunkat. Ebben a légtérben a tetőtérbe vezető lépcső alatt lett kialakítva egy praktikus kis konyharész. Ebből a légtérből nyílik a fürdő/wc is. Egy szépen kivitelezett fa lépcsőn tudunk a tetőtérbe feljutni, mely akár egy elszeparált külön egység (iroda, háló) is lehet. Ez a felső lakrész is lehetőséget kínál egy önálló lakás kialakítására, a nagy légterű irodarészt akár több szobává is át lehet alakítani.

Jó hír, hogy igény esetén a lehetséges átalakításra ingyenes belsőépítészeti tanácsadást kap a leendő tulajdonos.

A hirdetéshez mellékeltük az ingatlanról készült virtuális bemutatót, melynek segítségével virtuálisan bejárhatja azt, de itt találja az alaprajzot is, melyben minden méretet is megtalál.

Komoly érdeklődés esetén, ingyenes belsőépítészeti tanácsadással!