https://minositettingatlanok.hu/en/real-estate/7462378
Siklói György Agent
36704561140
QR kód

Budapest, IX. kerület

137 million HUF

1 489 130 HUF/m²
Floor Area
83m2
Rooms
2
Balcony
18m2

For sale apartment (brick-built)

Floor Area
83 m²
Balcony Area
18 m²
Has Garden
Yes
Number of Rooms
2
Heating
Gas Boiler
Property Condition
Good Condition
Year of Construction
1940
Building Floors
3 Stories
Floor
Ground Floor
Has Basement
No
Elevator
No
Solar Panel
No
Insulation
No
Parking Space
Street Parking
View
Garden View
Air Conditioned
Yes
Orientation
West
Panel Program
No

Description

IX. Ráday utca…

Valakinek ez semmit nem mond -csak egy utca-, valakinek egy fantasztikus lehetőség, remek befektetési potenciál. Airbnb és a hosszútávú kiadás is engedélyezett, kiváló lokáció!

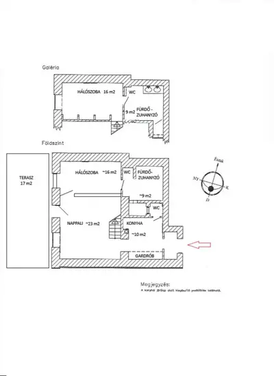
A földszinti lakás egy patinás ház belső udvarából nyílik, belső két szintes, kertkapcsolatos, duplakomfortos.
83 m2 hasznos terület, a földszinten nappali + háló, konyha, fürdőszoba, 2 wc, az emeleten háló, fürdőszoba + wc elosztással rendelkezik.

2017-ben volt felújítás, az ablakok szigeteltek, fűtés és meleg víz ellátásáról kombicirkó gondoskodik. A 2 klíma további komfortérzetet biztosít.

A nappaliból nyíló 17 m2-es terasz egyedi hangulatot kölcsönöz az ingatlannak, csend és nyugalom vesz körbe, a kapun kilépve pedig a belváros nyüzsgő forgataga ragad magával. Külföldiek által is kedvelt, igazán hangulatos környezet.

Az ingatlan tehermentes, akár azonnal birtokba vehető!
.............IX. Ráday Street…

For some, it’s just a street; for others, a fantastic opportunity with excellent investment potential. Both Airbnb and long-term rentals are permitted—prime location!

This ground-floor apartment opens from the inner courtyard of a stately period building. It is a duplex with garden access and dual-comfort amenities. Usable floor area: 83 sqm. Layout: on the ground floor, living room + bedroom, kitchen, bathroom, and 2 separate WCs; upstairs, a bedroom and a bathroom with WC.

Renovated in 2017; the windows are insulated (double-glazed). Heating and hot water are provided by a combi gas boiler. Two air-conditioning units add extra comfort.

The 17 sqm terrace opening from the living room lends the property a unique atmosphere: you are surrounded by peace and quiet, yet stepping out the gate you’re swept into the vibrant buzz of the city center. A truly charming area, popular with foreigners as well.

The property is free of encumbrances and can be taken possession of immediately.