https://minositettingatlanok.hu/en/real-estate/7224678
Náfrádi Antal Agent
36309315351
QR kód

Szeged

75 million HUF

1 071 429 HUF/m²
Floor Area
70m2
Rooms
3

For sale apartment (brick-built)

Floor Area
70 m²
Has Garden
No
Number of Rooms
3
Heating
Gas Boiler
Property Condition
Good Condition
Year of Construction
2000
Building Floors
5 Stories
Floor
1st Floor
Has Basement
No
Elevator
No
Solar Panel
No
Insulation
No
Parking Space
Private Garage
View
Courtyard View
Air Conditioned
No
Orientation
West
Panel Program
No

Description

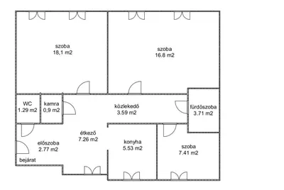
Szegeden a Klapka tér közelében 3 külön bejáratú szobás tégla lakás eladó.

A kétezres évek elején épült 14 lakásos társasház 1. emeletén helyezkedik el a 70 m2-es lakás. A 3 szobán kívül előszoba, konyha, étkező, kamra, közlekedő, fürdőszoba és külön WC alkotja.

Fűtése gáz-cirkó, gazdaságos padlófűtéssel, mely garantálja a kedvező fűtési költséget.
Hőszigetelt ablakai redőnnyel védettek, melyek a belső, parkosított udvari oldalra néznek.

A közeli körúton és Kossuth Lajos sugárúton villamos, troli és buszjáratok megállóhelyei, a Széchenyi tér, Mars tér, ÁRKÁD 5-10 perc alatt gyalogosan is elérhető.

A lakáshoz egy, a házban lévő garázs is vásárolható.

Az ingatlan tehermentes. Költözés hamar lehetséges, de jelenleg megbízható bérlők lakják, akik szívesen maradnánk is, ha befektetési céllal vásárolják.

Ügyfeleimnek térítésmentes konzultáció lehetőséget biztosítok hitelszakértővel, CSOK és hitel ügyben.