Budapest, III. kerület

1,396 thousand HUF/month
Floor Area
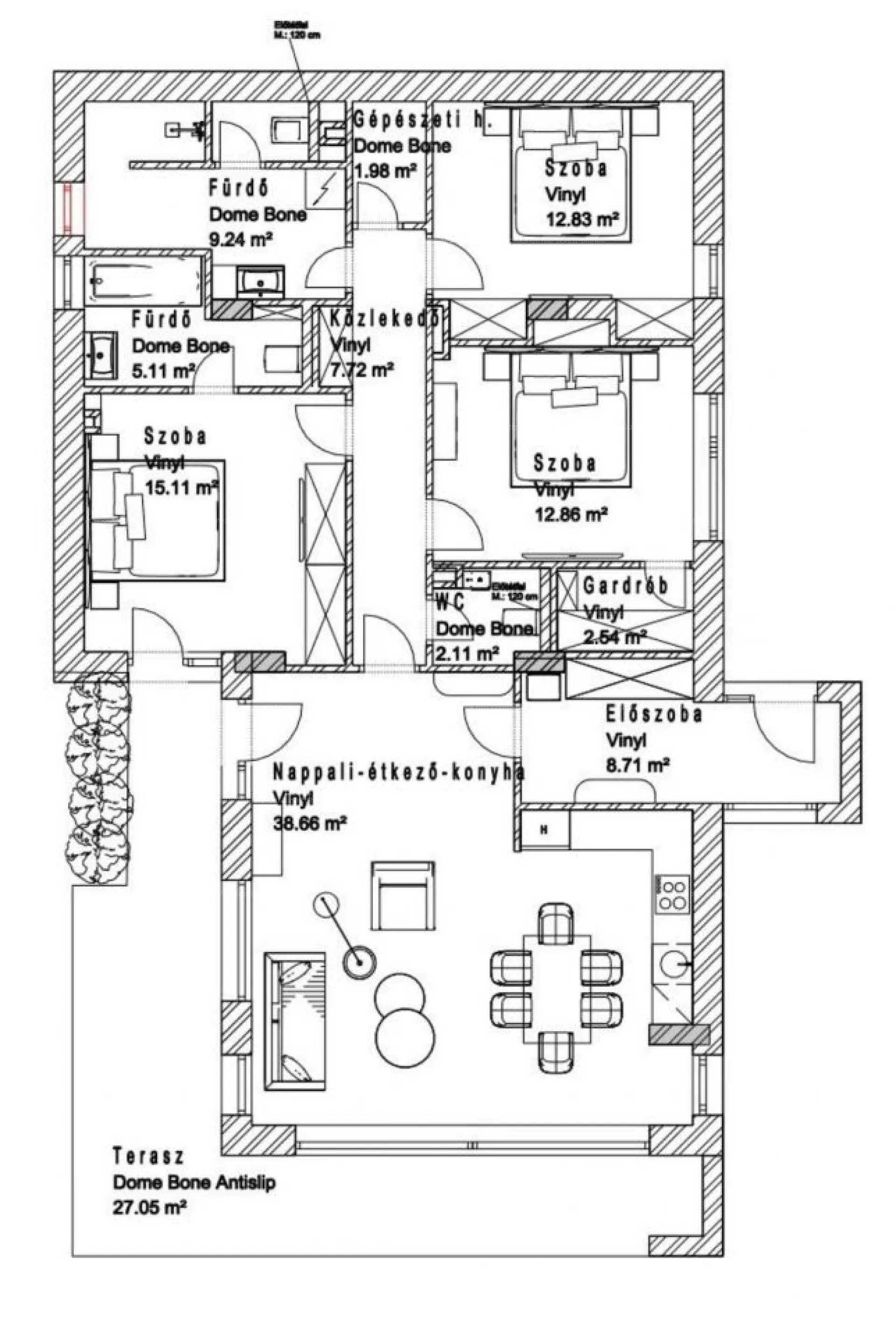
110m2
Rooms
4

For rent apartment (brick-built)

Floor Area
110 m²
Has Garden
Yes
Number of Rooms
4
Heating
Heat Pump
Property Condition
Newly Built
Year of Construction
2024
Building Floors
2 Stories
Floor
Ground Floor
Has Basement
No
Elevator
No
Solar Panel
No
Insulation
Yes
Parking Space
Private Garage
View
Garden View
Air Conditioned
Yes
Orientation
East
Panel Program
No

Rental Data

Move-in Ready
Dátum megadása
Move-in Date
.

Description

Budapest egyik legnívósabb részén, Óbudán található ez a minden igényt kielégítő új építésű ,110 nm-es, 4 szobás, 2 fürdőszobás, tágas nappalival rendelkező ikerház. Az ingatlan egyedi tervezésű, exkluzív, prémium kivitelezésű burkolatokkal és gépesített konyhával, minimalista kialakítású, világos és modern. A lakásban LED hangulatvilágítás, motoros zsaluzia, telefonról is vezérelhető okos otthon rendszer, biztonsági ajtók és hőszivattyús padlófűtés ill. mennyezethűtés található.

Az amerikai konyhás nappaliból nyílik egy 27 nm-es terasz, ahonnan csodálatos panoráma tárul elénk. Az ingatlan kertkapcsolatos, így a természet közelsége és a nyugalom garantált. Az épület hőszivattyús fűtéssel rendelkezik, így a fűtési költségek jelentősen csökkenthetőek. Az ingatlan állapota frissen átadott, azonnal költözhető. A környék csendes és biztonságos, a közlekedés pedig kiváló - a közelben találhatóak bevásárlási lehetőségek, óvodák, iskolák (pl. British School pár percre), sportolási lehetőségek. Az autóval történő közlekedést a közelben található M0-s és M3-as autópálya teszi könnyebbé, a tömegközlekedést pedig a 3-as metró és a buszok biztosítják.

A két felszíni parkolóhelyen kívül az ingatlan előtt további parkolási lehetőség adott.

Hosszabb távú bérlés esetén a bútorozás megbeszélés tárgyát képzi.

További információért és a megtekintés miatt keressen bizalommal a hét bármely napján!

Map

Budapest, III. kerület

Crime Map

Szvett Bianka Agent
Telefonszám +3670454
abcd