Győr

47.8 million HUF
901 887 HUF/m²
Floor Area
53m2
Rooms
1

Premium Loan Offer

Down Payment
info
9 560 000 HUF
+
Loan Amount
info
38 240 000 HUF
=
Monthly Installment
info
296 999 HUF/month

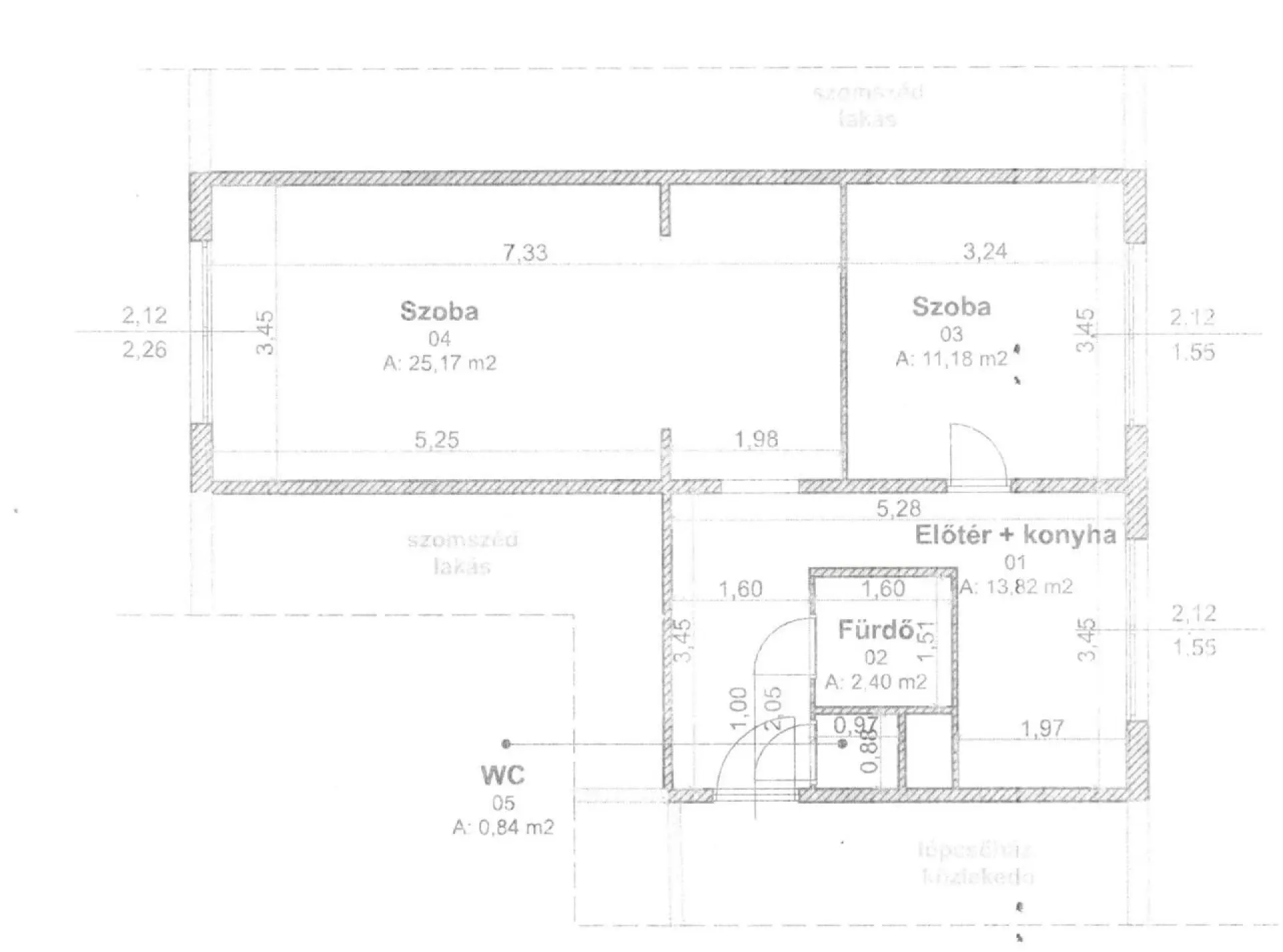
For sale apartment (panel)

Floor Area
53 m²
Has Garden
No
Number of Rooms
1
Heating
District Heating
Energy Certificate
C
Property Condition
Good Condition
Year of Construction
1971
Building Floors
10 Stories
Floor
2nd Floor
Has Basement
No
Elevator
Yes
Solar Panel
No
Insulation
No
Parking Space
Street Parking
View
Street View
Air Conditioned
No
Orientation
South
Panel Program
No

Description

KIVÁLÓ BEFEKTETÉS Győrben, biztos HOZAM.

1. INGATLAN HELYSZÍNE, LOKÁCIÓ
- Győr Adyváros városrészében található, befektetők által kedvelt lokációban.
- A déli irányt néző, utcára néz, napfényes terekkel.
- A belváros és a főbb munkahelyi övezetek rövid időn belül elérhetők autóval és tömegközlekedéssel.
- A 2. emeleten helyezkedik el: gyors megközelíthetőség, lépcsőzni sem kell sokat, de lift is használható.
- Stabil bérlői kereslet jellemzi a környéket, így a bérbeadás kockázata alacsony.

2. ÉPÜLET JELLEMZŐI KÍVÜLRŐL
- 1971-ben készült el, 10 szintes, panel szerkezetű társasház.
- Van lift az épületben, a ingatlan a 2. emeleten található.
- Nincs külső hőszigetelés, nincs panelprogramban.
- Közterületen lehet parkolni, a ház környezetében, a helyi szabályoknak megfelelően.
- Tömbházsorban van, utcafronti elhelyezkedéssel.

3. AZ INGATLAN JELLEMZŐI BELÜLRŐL
- 53 nm-es, szép állapotban lévő, 2 szobával rendelkező lakás, tágas, világos terekkel.
- Déli irányba néz és utcára néz a kilátás biztosít kellemes természetes fényt.
- Fűtés: távfűtés, egyenletes hőérzet és kiszámítható üzemeltetés.

4. AZ INGATLANNAL KAPCSOLATOS KÖLTSÉGEK
- Vételár: 47 800 000 Ft.
- Fűtés: távfűtés – költsége általában kiszámítható.
- Energetikai besorolás: CC, ami kedvező üzemeltetési keretet jelez.
- A közös költség: 19.500Ft.
- Parkolás: közterületen, az utcán; a díjszabás a helyi szabályozásnak megfelelően áll.

5. A KÖRNYÉK JELLEMZŐI
- Győr Adyváros városrésze közkedvelt, komplett infrastruktúrával rendelkező panelövezet, folyamatos bérlői érdeklődéssel.
- Gyalogosan elérhetők mindennapi szolgáltatások: boltok, patika, iskolák és egészségügyi központok, buszmegállók.
- Gyors kapcsolat a belvárossal és az ipari zónákkal, ami támogatja a bérbeadás lehetőségét.
- Zöldterületek és sétányok növelik az élhetőséget.
- Értékálló környezet hosszú távon, kedvező hozamvárakozásokkal akik befektetni szeretnének.

Map

Győr

Crime Map

Sági Zsuzsanna Agent
Telefonszám +3630864
abcd