https://minositettingatlanok.hu/en/real-estate/4870146
Kómár-Benke Nikoletta Agent
36703965533
QR kód

Gödöllő

150 million HUF

964 630 HUF/m²
Floor Area
148m2
Plot
350 m²
Rooms
5

For sale house (twin house)

Floor Area
148 m²
Plot Area
350 m²
Balcony Area
15 m²
Has Garden
Yes
Number of Rooms
5
Heating
Gas Boiler
Energy Certificate
A+
Property Condition
Newly Built
Year of Construction
2025
Building Floors
Single-story
Has Basement
No
Attic
property.house_attic.attic
Convertible Attic
Built-in
Elevator
No
Solar Panel
No
Insulation
Yes
Parking Space
Courtyard Parking
View
Courtyard View
Air Conditioned
No
Orientation
Northeast
Panel Program
No

Description

Ez az ingatlan nemcsak tágas és kényelmes, hanem egy kiváló, tapasztalt kivitelező által készül, aki nagy gondot fordít a minőségre és a részletekre.

Műszaki információk röviden:
A ház erős, vastag klímatéglafalakkal épül, amelyek jól tartanak és szigetelnek, így télen meleg, nyáron hűvös marad. Az épületet modern hőszigeteléssel látják el, ami csökkenti a rezsit. A nyílászárók korszerű, többkamrás műanyag ablakok, amik jól zárnak és bent tartják a meleget. A fűtést gazdaságos, modern gázkazán biztosítja, ami megbízható és energiatakarékos működést nyújt.

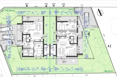
1. lakás (~148,2 m²)
Földszint (~84,14 m²):
• Nappali- étkező-konyha: ~50 m²
• Szoba: 19,14 m²
• Előszoba: ~7 m²
• Közlekedő: ~5 m²
• Lépcsőtér: ~3 m²
• Tároló: ~6 m²
Emelet (~64,06 m²):
• hálószoba: ~16 m²
• hálószoba: ~14 m²
• hálószoba: ~15 m²
• Fürdő 1: ~7 m²
• Fürdő 2: ~8 m²
• Emeleti közlekedő: ~4 m²
2. lakás (~148,2 m²)
Földszint (~84,14 m²):
• Nappali- étkező-konyha: ~50 m²
• Szoba: 19,14 m²
• Előszoba: ~7 m²
• Közlekedő: ~5 m²
• Lépcsőtér: ~3 m²
• Tároló: ~6 m²
Emelet (~64,06 m²):
• hálószoba: ~16 m²
• hálószoba: ~14 m²
• hálószoba: ~15 m²
• Fürdő 1: ~7 m²
• Fürdő 2: ~8 m²
• Emeleti közlekedő: ~4 m²

Beálló (autóparkoló):
• Mindkét lakáshoz saját, kényelmes kocsi beálló tartozik, ~25 m²/lakás.
Kert (zöldfelület):
• Lakásonként saját kert ~250–350 m² között, így bőven jut hely játszótérnek, kerti sütögetésnek vagy pihenésnek.

Gödöllő legpatinásabb környékén épül, ahol minden megtalálható, amire egy családnak szüksége lehet: posta, patika, óvoda, iskola, és az egyetem is mind a közelben van, mégis csendes, kertvárosi környezetben élhet az új tulajdonos.
Műszaki vállalást e-mailen keresztül továbbítom.

Igény esetén ügyvédi háttérrel, bank független pénzügyi tanácsadással, babaváró, CSOK és egyéb hitelek ügyintézésével segítem ügyfeleim ingatlanvásárlását.
Portfóliómban több hasonló, modern, minőségi új építésű ház és lakás is megtalálható – forduljon hozzám bizalommal, hogy segíthessek megtalálni az Ön számára tökéletes otthont!