Debrecen

114 million HUF
838 235 HUF/m²
Floor Area
132m2
Plot
651 m²
Rooms
4

Premium Loan Offer

Down Payment
info
22 800 000 HUF
+
Loan Amount
info
91 200 000 HUF
=
Monthly Installment
info
708 325 HUF/month

For sale house (family house)

Floor Area
132 m²
Plot Area
651 m²
Balcony Area
8 m²
Has Garden
Yes
Number of Rooms
4
Heating
Gas Boiler
Property Condition
Good Condition
Year of Construction
1987
Building Floors
2 Stories
Has Basement
Yes
Attic
property.house_attic.attic
Convertible Attic
Built-in
Elevator
No
Solar Panel
No
Insulation
No
Parking Space
Private Garage
View
Courtyard View
Air Conditioned
Yes
Orientation
Northwest
Panel Program
No

Description

𝐍𝐚𝐠𝐲 𝐜𝐬𝐚𝐥𝐚́́𝐝𝐨𝐬𝐨𝐤 𝐟𝐢𝐠𝐲𝐞𝐥𝐞𝐦!

— 🏡 Telek: 651 m² — gondozott kert 🌳 — fúrt kút
— 🏠 Lakótér: 132 m² — praktikus elrendezés

— 🧱 Szerkezet: beton alap — B30 tégla
— 🏠 Tető: jó állapotú pala

— 🪟 Nyílászárók:
— konyha + fszt. szoba: műanyag
— többi helyiség: fa (műanyag borítással)
— mind kiválóan zár 👍

— ☀️ Helyiségek: tágasak, világosak — ideális családoknak 👨‍👩‍👧‍👦

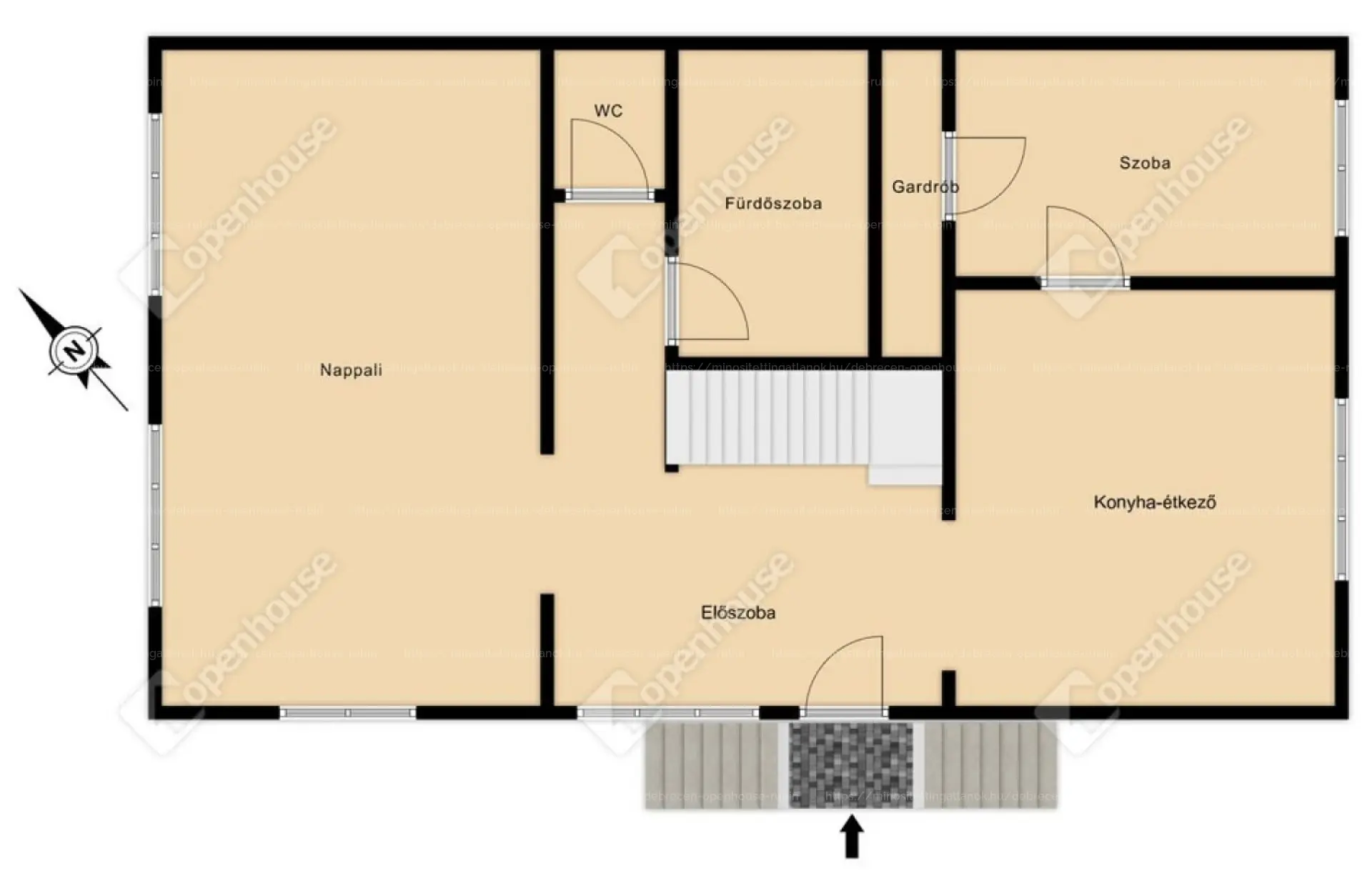
Földszint:
— 🛋️ nagy nappali (2 szobává alakítható)
— 🛏️ külön szoba
— 🍽️ tágas, világos konyha
— 🛁 fürdő (sarokkád) + 🚻 külön WC
— 🚪 nagy előtér
— 🌿 8 m²-es loggia

Emelet:
— 🛏️🛏️ 2 világos szoba
— 🚿 fürdő + WC
— 👗 külön gardrób
— 🌿 5 m²-es loggia

Pince:
— 🚗 40 m²-es garázs
— 🔥 kazánház
— 🍳 konyha + 🧺 kamra

— ✅ Ajánlott: családoknak — tágas, kényelmes otthon — csendes környezetben 🌸

𝐒𝐳𝐢𝐥𝐚́́𝐠𝐲𝐢 𝐑𝐢𝐭𝐚
+36-20-362-0036

Map

Debrecen

Crime Map

Debrecen-Openhouse Rubin Agent
Telefonszám +3620362
abcd