Balatonfűzfő

155 million HUF
455 882 HUF/m²
Floor Area
340m2
Rooms
15

Premium Loan Offer

Down Payment
info
31 000 000 HUF
+
Loan Amount
info
124 000 000 HUF
=
Monthly Installment
info
963 073 HUF/month

For sale apartment (brick-built)

Floor Area
340 m²
Has Garden
No
Number of Rooms
15
Heating
Cooling-Heating Air Conditioner
Property Condition
Renovated
Year of Construction
1972
Building Floors
2 Stories
Floor
1st Floor
Has Basement
No
Elevator
No
Solar Panel
No
Insulation
No
Parking Space
Street Parking
View
Street View
Air Conditioned
Yes
Orientation
Southeast
Panel Program
No

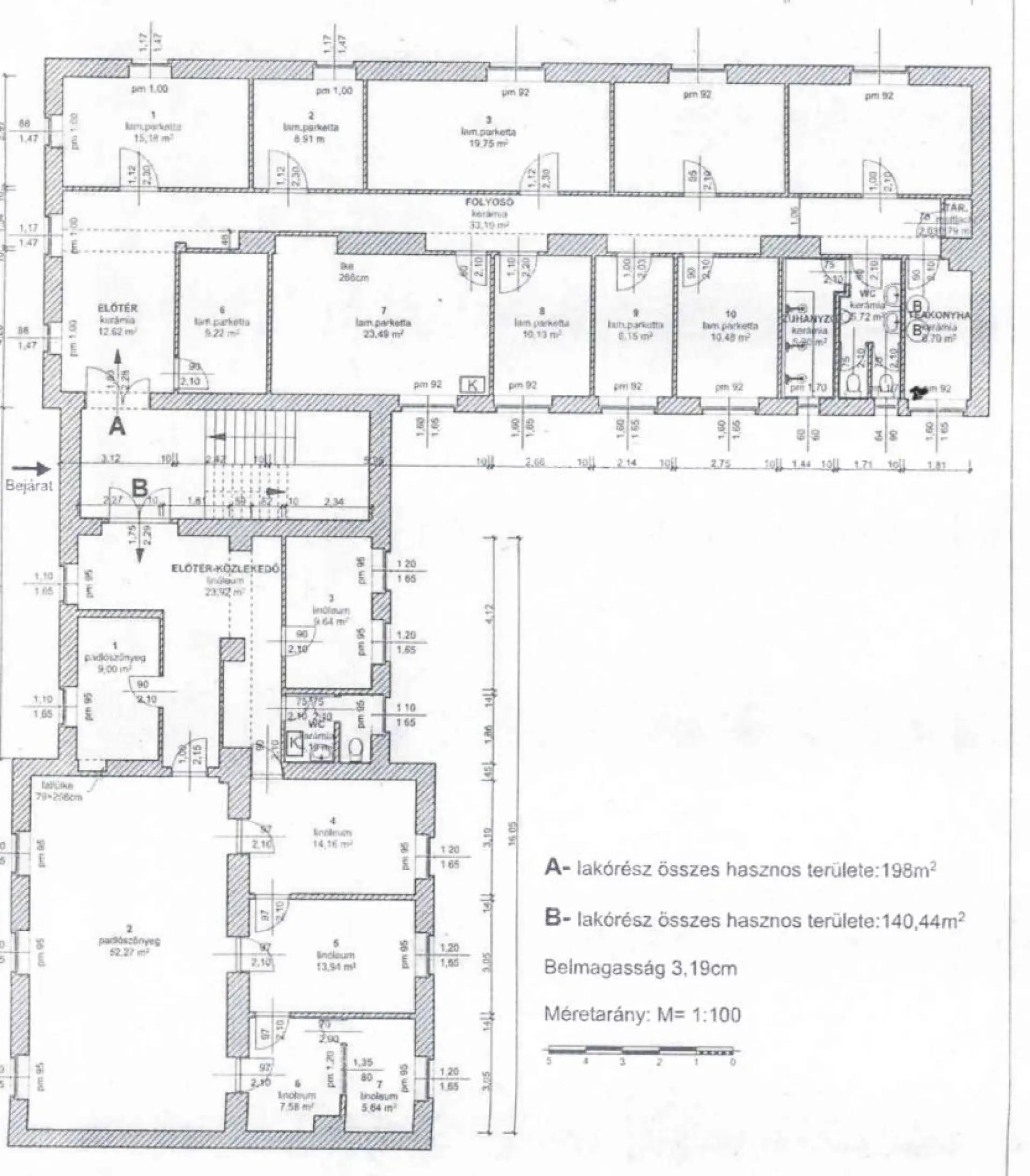
Description

VESZPRÉMTŐL 15 percre, Balatonfűzfőn sok lehetőséget kínáló 200+140m2-es ingatlan eladó ‼️

🔹Helyszín: kiváló infrastruktúrájú, csendes utca, sok parkolóhellyel
🔸Ingatlan: felújított, műanyag nyílászárók, hűtő-fűtő klíma, iroda jellegű elrendezés
🔹Felhasználás: iroda, munkásszállás, rendelő
átalakítással: lakások

Alaprajz a képek közt.

További infó vagy megtekintés miatt keressen telefonon!
☎️ +36702762001

Map

Balatonfűzfő

Crime Map

Kovács Nóra Agent
Telefonszám +3670276
abcd