Jánossomorja

54.9 million HUF
762 500 HUF/m²
Floor Area
72m2
Plot
234 m²
Rooms
3

Premium Loan Offer

Down Payment
info
10 980 000 HUF
+
Loan Amount
info
43 920 000 HUF
=
Monthly Installment
info
341 114 HUF/month

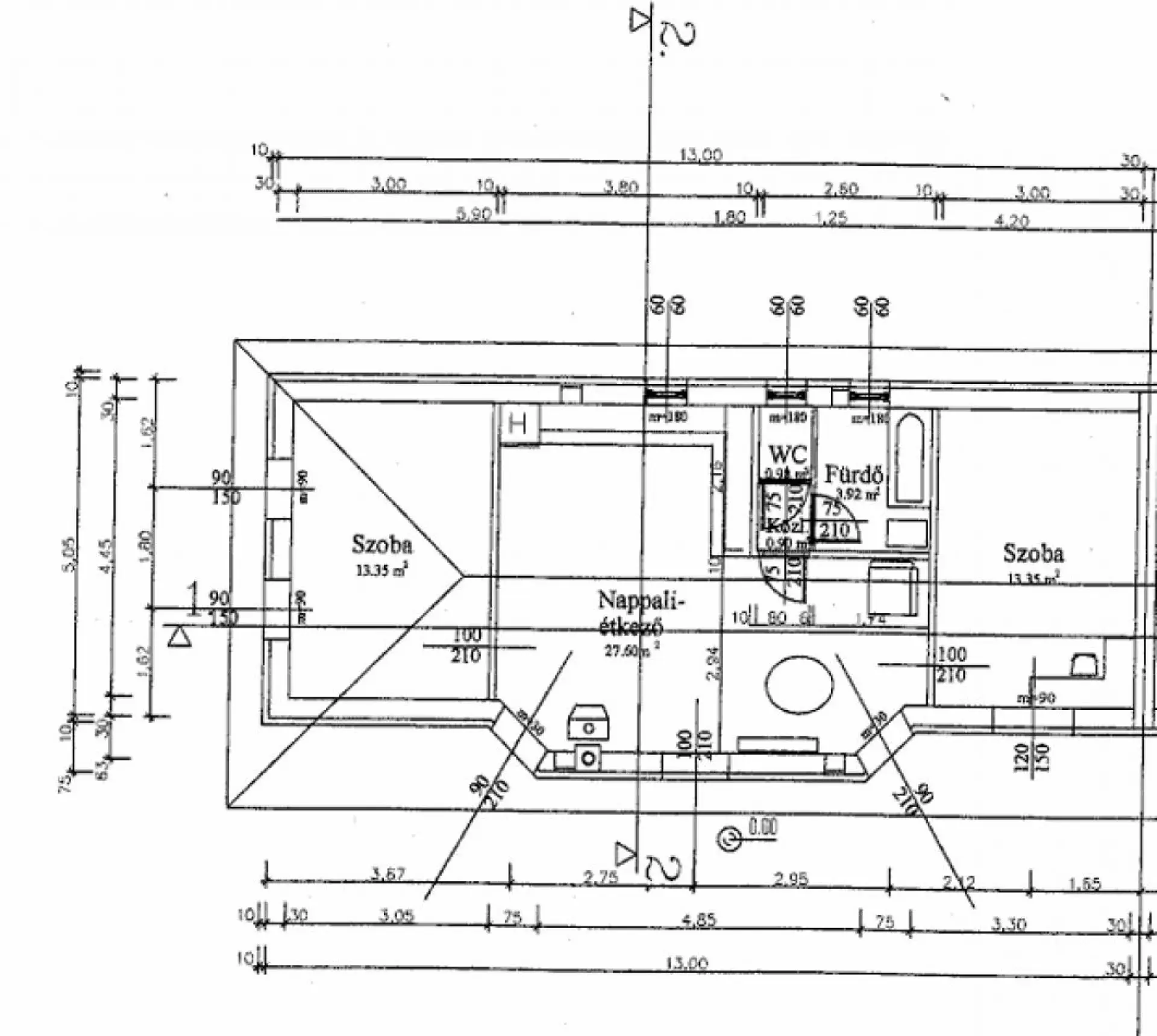
For sale house (twin house)

Floor Area
72 m²
Plot Area
234 m²
Has Garden
Yes
Number of Rooms
3
Heating
Gas Boiler
Property Condition
Good Condition
Year of Construction
2015
Building Floors
Single-story
Has Basement
No
Attic
property.house_attic.attic
Convertible Attic
Convertible
Elevator
No
Solar Panel
No
Insulation
Yes
Parking Space
Courtyard Parking
View
Courtyard View
Air Conditioned
No
Orientation
Southwest
Panel Program
No

Description

Gondolt már arra, hogy a városi nyüzsgést hátrahagyva vidéki hangulatban telepedjen le?

Mindössze 5 percnyi autóútra az osztrák határtól és 15 km-re Mosonmagyaróvártól.

- Csendes utcában található ugyanakkor a központhoz közel, így könnyen megközelíthető iskola, óvoda, rendelő intézet, boltok.

- praktikus belső elrendezés, külön nyíló komfortos szobák

- magas kopásálóságú járólap és parketta burkolatok

- Gáz cirkó fűtéses


A kínált családi ház helyiségei:

- előszoba
- nappali és étkező
- konyha
- 2 szoba
- fürdő
- wc



Vásárolna, de nincs meg rá a megfelelő keret ? Kollégám díjmentes, banksemleges hitelügyintézéssel áll rendelkezésére.

Amennyiben Irodánk által kínált CSALÁDI HÁZ vagy bármely, a kínálatunkban található LAKÁS vagy TELEK felkeltette érdeklődését, hívjon a hét minden napján a megadott telefonszámon.

Map

Jánossomorja

Crime Map

Albrecht Tibor Agent
Telefonszám +3670882
abcd