Budapest

96.9 million HUF
1 327 397 HUF/m²
Floor Area
73m2
Rooms
3

Premium Loan Offer

Down Payment
info
19 380 000 HUF
+
Loan Amount
info
77 520 000 HUF
=
Monthly Installment
info
602 076 HUF/month

For sale apartment (brick-built)

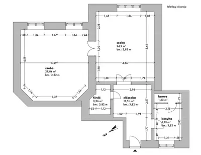
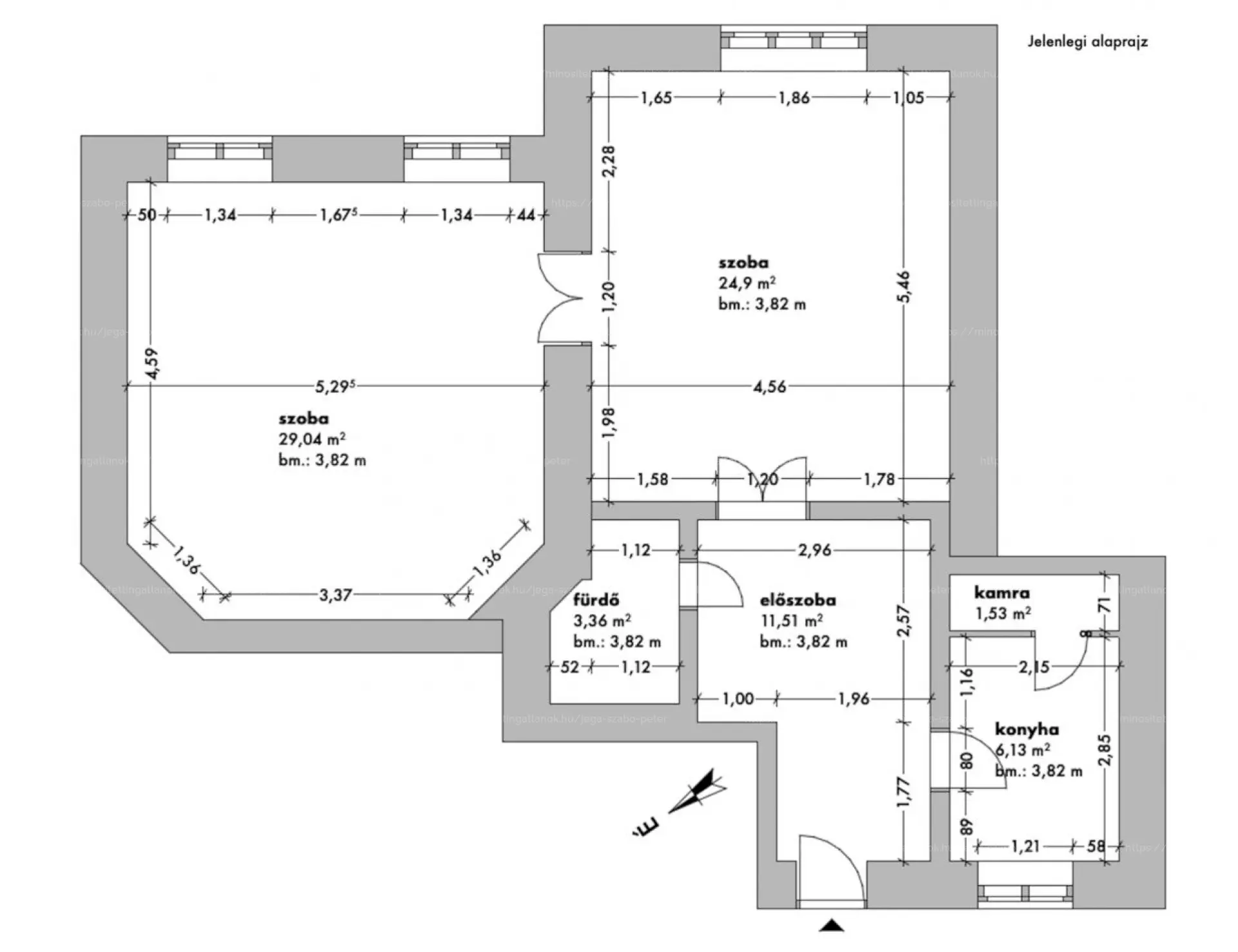
Floor Area
73 m²
Has Garden
No
Number of Rooms
3
Heating
Gas Convector
Property Condition
Good Condition
Year of Construction
1900
Building Floors
4 Stories
Floor
1st Floor
Has Basement
No
Elevator
Yes
Solar Panel
No
Insulation
No
Parking Space
Street Parking
View
Street View
Air Conditioned
Yes
Orientation
Southwest
Panel Program
No

Description

𝐌𝐞𝐠𝐯𝐞́𝐭𝐞𝐥𝐫𝐞 𝐤𝐢́𝐧𝐚́́𝐥𝐨𝐦 𝐞𝐳𝐭 𝐚𝐳 𝐢𝐠𝐚𝐳𝐚́́𝐧 𝐡𝐚𝐧𝐠𝐮𝐥𝐚𝐭𝐨𝐬, 1. 𝐞𝐦𝐞𝐥𝐞𝐭𝐢 𝐥𝐚𝐤𝐚́́𝐬𝐭 𝐚 𝐍𝐚𝐠𝐲𝐤𝐨̈𝐫𝐮́𝐭 𝐤𝐨̈𝐳𝐞𝐥𝐞́𝐛𝐞𝐧, 𝐩𝐚́́𝐫 𝐩𝐞𝐫𝐜 𝐬𝐞́𝐭𝐚́́𝐫𝐚 𝐚 𝐃𝐮𝐧𝐚́́𝐭𝐨́𝐥 𝐞́𝐬 𝐚 𝐉𝐚́́𝐬𝐳𝐚𝐢 𝐌𝐚𝐫𝐢 𝐭𝐞́𝐫𝐭𝐨̋𝐥.

A lakás jó állapotú, jelenleg 2 szobás, de 3 szobássá alakítható, világos, utcai kilátással – ideális választás mindazoknak, akik szeretik a belvárosi élet pezsgését, de értékelik a csendesebb utcák nyugalmát.

Az alaprajz kiválóan alakítható, így könnyen megvalósítható egy modern, saját igényekre szabott otthon. A környék kulturális és gasztronómiai szempontból is igazi kincs: színházak, galériák, éttermek és kávézók sora található a közelben.

A társasház rendezett, a lakóközösség barátságos és igényes – olyan hely, ahová jó hazatérni.

Ha egy jó adottságokkal rendelkező, belvárosi lakást keres, ami hangulatos, világos és tele van lehetőséggel, ez az ingatlan remek választás lehet.

További infók kérése, személyes megtekintés és ajánlattétel, Jéga-Szabó Péter kizárólagos megbízottnál lehetséges.

elérhetőségem:
+36 20 393 6693 - jega@jegaingatlan.hu

Kérem, hogy keressen bizalmmal a megadott telefonon vagy írásban.

We kindly ask our English-speaking clients to contact us in writing first and include their phone number. Thank you.

I am offering for sale this truly charming first-floor apartment located near the Grand Boulevard, just a few minutes’ walk from the Danube and Jászai Mari Square. The apartment is in good condition, bright, with street views – an ideal choice for those who enjoy the vibrant city life but appreciate the calm of quieter streets.
The layout offers great flexibility, allowing you to easily create a modern home tailored to your personal needs. The neighborhood is a real gem in terms of culture and gastronomy, with numerous theatres, galleries, restaurants, and cafés nearby.

The building is well-kept, with a friendly and considerate community – a place that truly feels like home.

If you are looking for a downtown apartment with great potential, full of light and character, this property is an excellent choice.

For further information, private viewing, or to make an offer, please contact Péter Jéga-Szabó, the exclusive agent.

jega@jegaingatlan.hu

Map

Budapest

Crime Map

Jéga-Szabó Péter Agent
Telefonszám +3620393
abcd